門外的繁華不是我的繁華,對於人潮擁擠的地方,如果你不喜歡,繞道便是,沒有那麼多是非曲直。如果你簡單,活的美妙之處在於懂得鬆弛有度。——木心
在人與物皆處在快節奏、形式化的年代,如何在焦慮的狀態中尋找內心的寧靜?
平靜,不是避開車馬喧囂,而是心中修籬種菊。這一特質亦是獨立設計師品牌MIGOCOO的追求,將服飾回歸使用者本身,時刻關注質感和細節。因此,其展廳的思考從空間的“純粹性”契入,強調體量與幾何,運用最基礎元素——體塊、板片與杆件完成空間構成。
體塊、板片與杆件
這三種要素所形成的空間具有不同的特點,相對於體塊,實體與虛空、圖與底處於平衡的關係,而空間具有明確的邊界。實體內部的空間,以及體塊之間的空間是一種互補的關係,是“勾勒空間”;相對於板片,界定出若幹相互重疊的空間關係,空間定位具有“模棱兩可”的特征;相對於杆件,在空間內做疏密或間隔的區分,具有“調節空間”的作用。
∇ 分析圖
對比與統一
兩個空間並未直接用兩種不同材料進行區分,而刻意統一了材質。
材料在視覺上令人愉悅的一致性,讓人感受到兩個空間的協調性,同時又使用了兩個對比性形體——圓柱與方體分別作為空間中心,以此強調人們在不同形體關係中的不同體驗感。
平衡與強調
麵積相似的兩個區域用玻璃隔斷分割,對稱平衡中具有相同的空間特征——周圍用藝術塗料,中心為穿孔不鏽鋼形體,圓柱形體中設置了6根圓柱,以此強調其縱向關係。方形形體中,長條的隔板與坐椅強調了其橫向關係,以此創建興趣中心和視覺焦點。
材質選擇上,整體以灰色為基調,諸如藝術塗料、發泡鋁、不鏽鋼等,以凸顯服飾本身的材質及色彩,並中和整體空間的冷色基調。
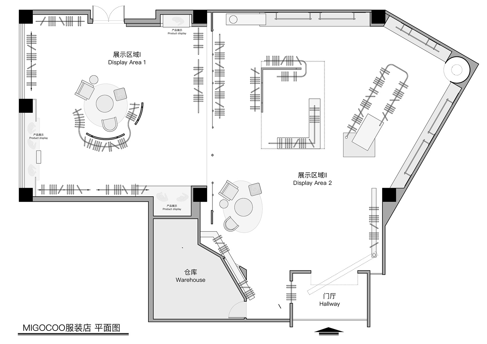
∇ 平麵圖
項目信息
項目名稱:MIGOCOO服裝店
項目類型:服裝店鋪
設計方:杭州哇哦設計有限公司
項目設計:2022.03
完成年份:2022.07
設計團隊:張靖琪 蔣冠航 曾亞芳
項目地址:浙江省嘉興市
建築麵積:320㎡
攝影版權:奧觀視覺 戚朔遷
客戶:MIGOCOO
材料:不鏽鋼、發泡鋁、藝術塗料




















