項目落成於古城西安,一個具有著厚重的曆史印記的城市。設計圍繞著這所城市最為鮮明的城市符號“城牆”就此展開。古與今的對話是此次設計的核心,提取‘箭樓’、‘角樓’、“宇牆”等傳統古建築製式為引導,結合具有工業造型感的金屬陳列貨架,將空間打造成具有話梅品牌獨特審美的新零售場景,以空間詮釋話梅對文化在地性的尊重。
室外部分,外立麵以黑色鋁板和Low-E玻璃組成鱗片狀模塊來打造出一種工業背景下的秩序感,同時也為室內提供充足的自然采光;室內部分,將回收的老青磚,陶土磚,玻璃磚作為主要材質,把不同特質的磚體設計整合。
∇ 分析圖
同時在砌築形式上進行深化處理,上下二層之間使用了不對稱鋼板樓梯營造出空間上的錯層感,並在樓梯延伸的終點處做了一處空間上的視覺回溯,在呼應古城牆中角樓的設計的同時使消費者的視覺重點回到一層琳琅滿目的貨品當中。在整個空間當中為消費者營造出一種全新的購物體驗。
項目在關注零售店的功能需求外,增加了對於店鋪落地城市文化在地性的探索。希望能在零售空間的基礎上,延展成一處能引起人們對所在城市產生共鳴的場所。
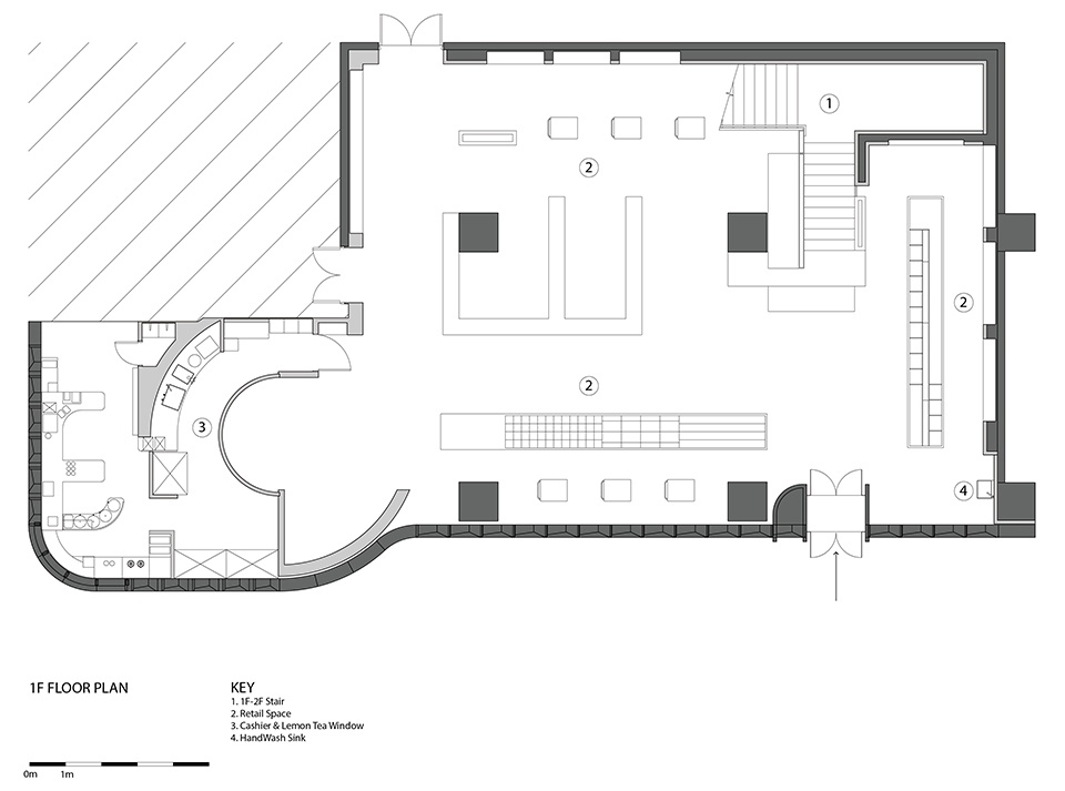
∇ 一層平麵圖
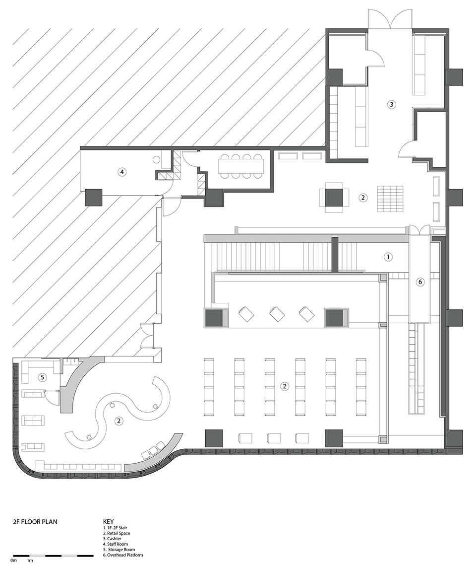
∇ 二層平麵圖
項目信息
項目名稱:HARMAY西安小寨店
項目類型:室內設計
設計方:上海無億藝術設計工作室
完成年份:2021
設計團隊:何福孜/楊揚
項目地址:西安雁塔區長安中路38號小寨·原力場
建築麵積:810㎡
攝影版權:Dirk Weiblen
客戶:北京話梅樂享科技有限公司
版權聲明:本站所有文章除投稿授權發布外,其他文字內容均為原創,享有著作權保護,未經許可不得以任何形式進行轉載(包括且不限於:媒體、網站、公眾號等)。所有項目照片/設計圖形版權歸原作者所有。本站部分內容源自網絡公開資源或用戶分享,如若侵犯了原作者的合法權益,可聯係我們進行處理。




























