最新60張咖啡廳平麵圖-no.007,PNG
【設計師必備】咖啡廳平麵布置參考,60張已建成咖啡廳平麵布置方案,以麵積大小整理標注,方便查閱。
∇ 文件內容預覽
整體涵蓋麵積大小:
9㎡–100㎡:
9㎡咖啡廳平麵方案1套、20㎡咖啡廳平麵方案1套、30㎡咖啡廳平麵方案1套、35㎡咖啡廳平麵方案1套、40㎡咖啡廳平麵方案2套、45㎡咖啡廳平麵方案2套、50㎡咖啡廳平麵方案1套、60㎡咖啡廳平麵方案1套、70㎡咖啡廳平麵方案3套、75㎡咖啡廳平麵方案1套;
100㎡–200㎡:
105㎡咖啡廳平麵方案2套、110㎡咖啡廳平麵方案1套、120㎡咖啡廳平麵方案1套、150㎡咖啡廳平麵方案2套、180㎡咖啡廳平麵方案2套、185㎡咖啡廳平麵方案1套、190㎡咖啡廳平麵方案1套、200㎡咖啡廳平麵方案1套;
200㎡–300㎡:
210㎡咖啡廳平麵方案1套、220㎡咖啡廳平麵方案1套、250㎡咖啡廳平麵方案1套、260㎡咖啡廳平麵方案1套、265㎡咖啡廳平麵方案1套、300㎡咖啡廳平麵方案1套;
300㎡–400㎡:
309㎡咖啡廳平麵方案1套、387㎡咖啡廳平麵方案1套;
400㎡–2100㎡:
460㎡咖啡廳平麵方案1套、500㎡咖啡廳平麵方案1套、510㎡咖啡廳平麵方案1套、650㎡咖啡廳平麵方案1套、740㎡咖啡廳平麵方案1套、760㎡咖啡廳平麵方案1套、800㎡咖啡廳平麵方案1套、1490㎡咖啡廳平麵方案1套;
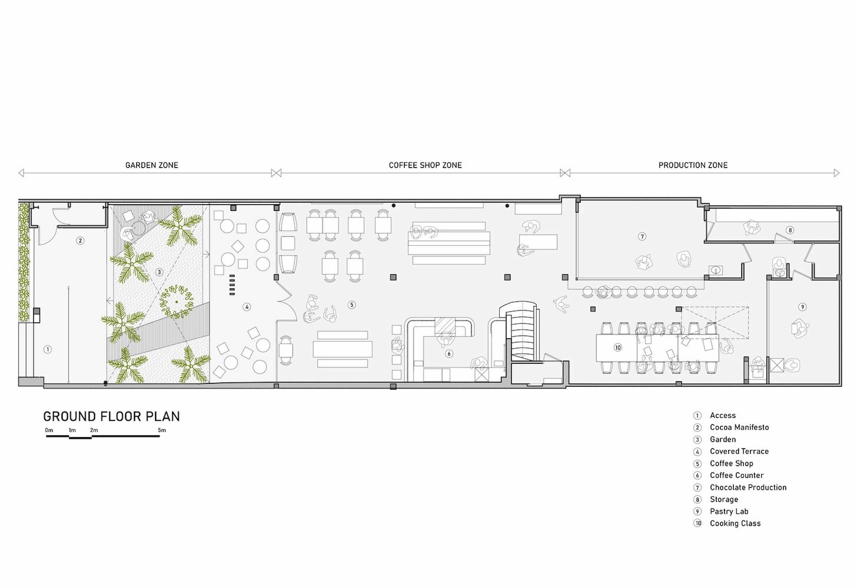
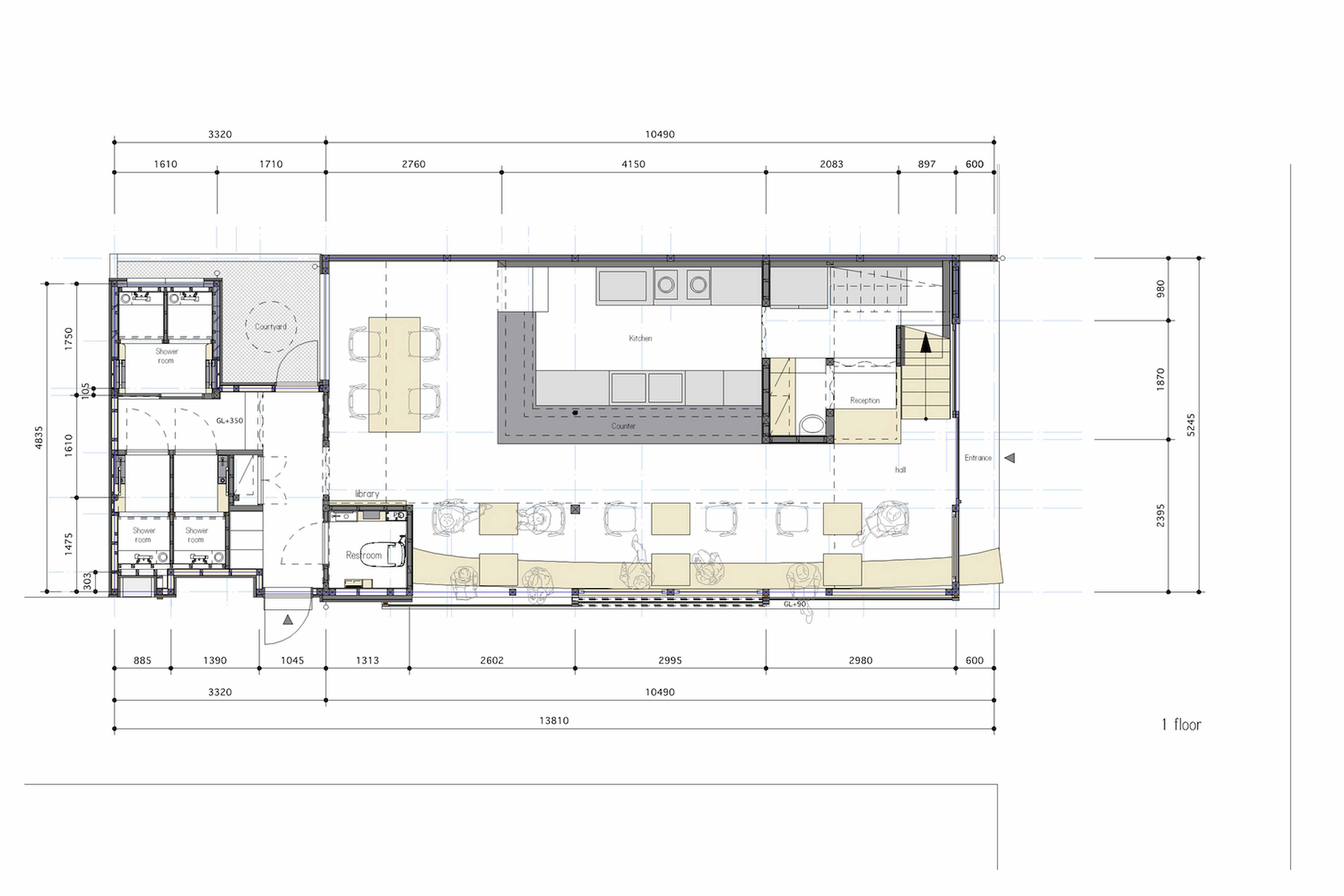
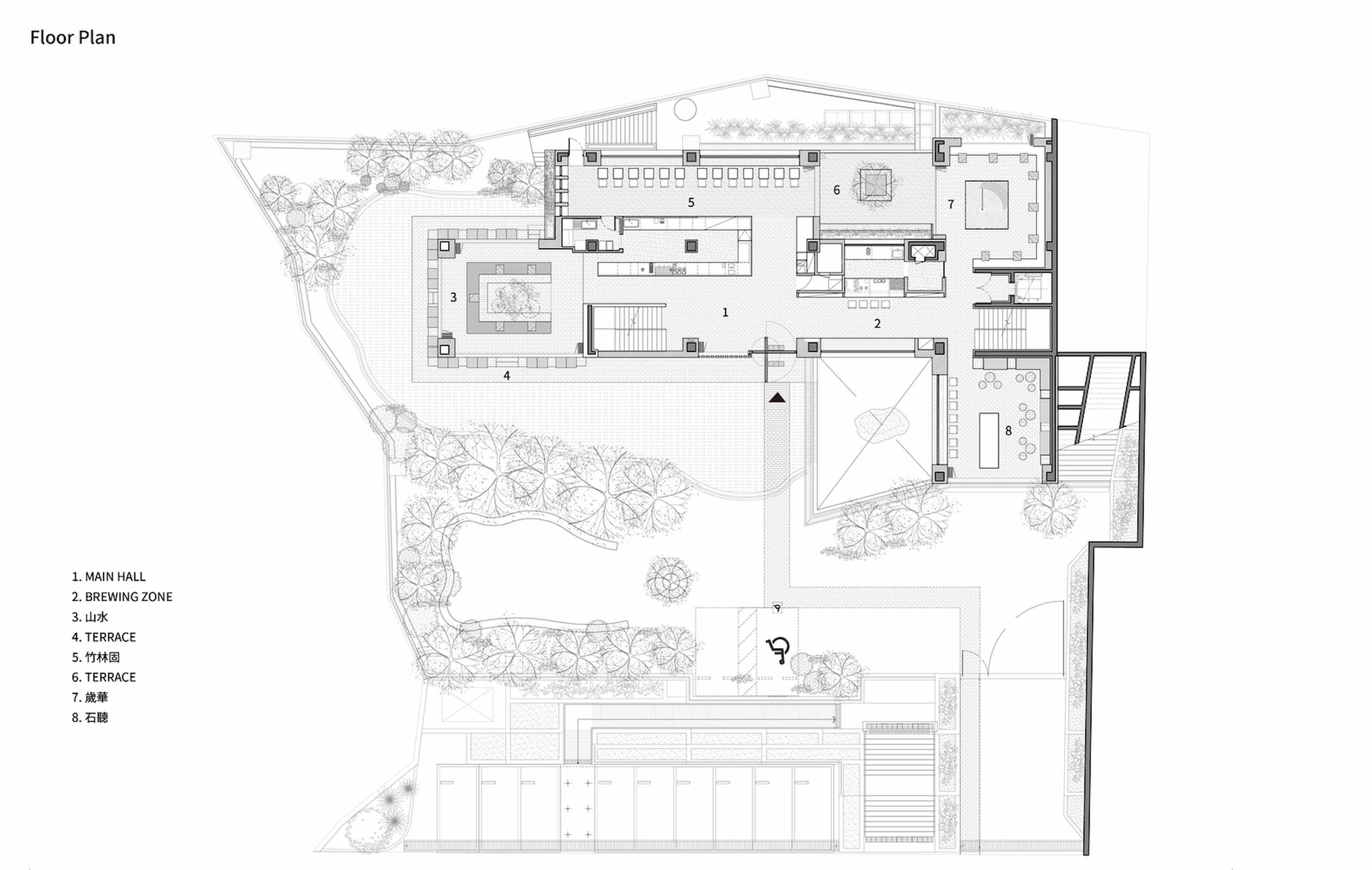
∇ 部分平麵圖預覽
版權聲明:本站所有文章除投稿授權發布外,其他文字內容均為原創,享有著作權保護,未經許可不得以任何形式進行轉載(包括且不限於:媒體、網站、公眾號等)。所有項目照片/設計圖形版權歸原作者所有。本站部分內容源自網絡公開資源或用戶分享,如若侵犯了原作者的合法權益,可聯係我們進行處理。














