Supmode,位於法國波爾多市中心的時裝學校,坐落在一座已經存在的建築的中心。這些教室必須考慮到學生在時裝設計、縫紉甚至攝影方麵的課程和研討會的使用情況。
這座建築幾乎沒有通往外麵的開口。因此,有必要對這一特性進行補償;這個想法是創造一個室內景觀,一個讓學生專注並沉浸在時尚世界中。
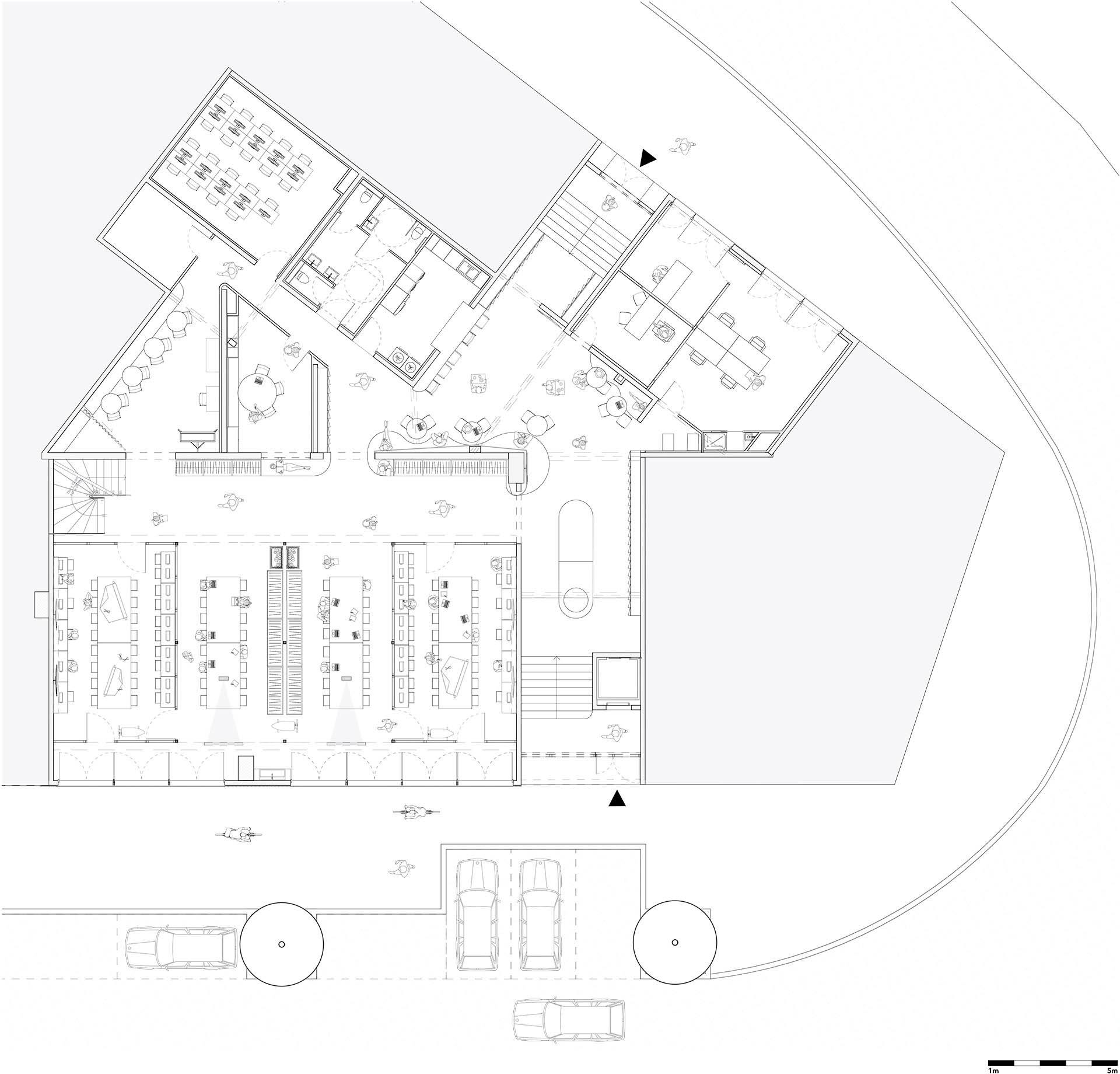
該項目是一個混凝土體積的一部分,設計師想象了一個木框架地板的創造。底層將成為一個帶有可移動隔板的模塊化空間,以允許該地方的可逆性並容納展覽、作品甚至時裝秀。該項目主要基於使用天然材料以升華它們。
∇ 平麵圖
版權聲明:本站所有文章除投稿授權發布外,其他文字內容均為原創,享有著作權保護,未經許可不得以任何形式進行轉載(包括且不限於:媒體、網站、公眾號等)。所有項目照片/設計圖形版權歸原作者所有。本站部分內容源自網絡公開資源或用戶分享,如若侵犯了原作者的合法權益,可聯係我們進行處理。





















