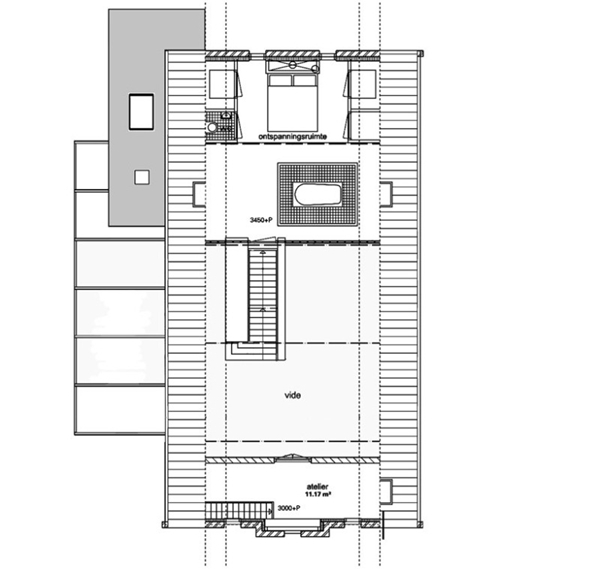
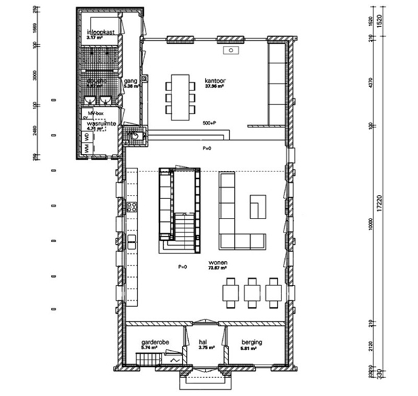
這是一間由舊教堂建築改造而成的住宅,整個住宅由教堂建築、庭院和一個長40英尺的海運集裝箱組成。建築的內部空間寬敞,格局通透光照充足,設計風格時尚簡約。室內的一層空間為客廳、餐廳、廚房和工作區,二層空間則為臥室、獨立浴缸和衛生間。
Photos © LKSVDD
Content Copyright © www.online4teile.com
版權聲明:本站所有文章除投稿授權發布外,其他文字內容均為原創,享有著作權保護,未經許可不得以任何形式進行轉載(包括且不限於:媒體、網站、公眾號等)。所有項目照片/設計圖形版權歸原作者所有。本站部分內容源自網絡公開資源或用戶分享,如若侵犯了原作者的合法權益,可聯係我們進行處理。






























評論(5)
喜歡他們的房頂
屋頂的結構會給人很輕巧的感覺,不像咱們建房子那麼複雜什麼梁、椽子之類的。
” />
北歐雪大,必須尖尖的屋頂
有此美宅, 簡直是人生樂園。