ANCHORET於2012年成立。在一片高廈叢林中,它選擇隱於老北京城的胡同之中,一如其名。“anchoret” 意為 “隱士”,嚴格遵循戒律之人。ANCHORET 以打造具備新意與質感的空間為使命,邀請顧客進入一方暫且歸隱的天地。
自始以來,ANCHORET 曆經幾次搬遷 —— 從僻靜到繁華,再從喧嚷到幽寂 —— 它並未摒棄自己的初衷。縱使身處北京堪稱最為熙攘的地段三裏屯,它仍盡力與塵囂隔絕,營造一處避世之所在。在這裏,你可以找到店主從全球各地搜尋而來的好物:或許是一雙手工縫製的皮鞋,或者是一件先鋒工匠精製的大衣,又或是出自新銳設計師之手的服裝。在這裏探索物件自身攜帶的設計,以及設計之外的故事和概念。如今,我們迎來與 ANCHORET 合作的第 9 個年頭。時光荏苒,潮流往複,ANCHORET 也擁有了自己的 “6.0 版本”,並將原本設立於三裏屯那裏花園的 I.O. 子店納為一體。它是新舊融合的載體:你依然能在此處發現它的精神,亦即我們的合作宗旨:大隱隱於鬧市,為本來繁雜的生活開辟出一道閑靜的罅隙。
設計理念
對了解 ANCHORET 的群體而言,過往的空間設計是自由的和不受拘束的。斑駁的水泥牆麵、老舊的木質工作台、紙漿製成的燈罩、黃銅質地的衣架等細節與店內陳列的選品相呼應。從廊柱到牆體立麵,粗野主義的美學貫穿整體,強調使用痕跡的基調遊蕩其間。
以過往 ANCHORET 店鋪室內空間設計的美學為基調,我們將以下幾點定為此次 ANCHORET 6.0 的設計理念:
· 隱蔽性
· 新舊融合的載體
· 建立獨特的空間探索動線
· 明暗空間的平衡
· 通過天井與室外的連接增加空間的延展性
· 新元素安置的隨機性
· 保留空間的靈活性
背景
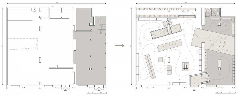
此次 ANCHORET 空間改造計劃以兩個獨立商鋪為原型:較大的一邊為水泥平頂,原是一家帶有天窗的健身工作室;另一邊的坡度屋頂則是老式木質結構,橫窄縱深,原為一家帶有二層的老麵館。計劃開始之初,我們就覺察到這兩個空間的不同特色在某種程度上可以為新的 ANCHORET 規劃出顧客的動線:由老舊、神秘的 “傳統麵館” 穿越到現代、亮堂的 “健身房”。這種動線也契合了 ANCHORET 如今的理念 —— 秉承低調、退隱的同時,不拒絕開放、入世的可能性。
∇ 空間生成
空間
顧客的探索動線與店鋪的零售路徑往往是整個空間設計概念成立的關鍵。最終的設計布局,回答了我們整個團隊在創造性思維過程中所提出的各種問題:如何帶給顧客驚喜、如何建立一個自然且開放式的環形動線,以及如何更好地實現明暗區域的過渡。
因此,我們決定完全封閉街道一側的外立麵,讓顧客由位於 “健身房” 外側的門廊進入 “老麵館” 的內部空間。來者甫一進入 I.O. 的區域,會看到高聳且裸露著的木質屋頂和原本保留的老地磚地麵。
兩個裝有滿滿飾品的木製貨櫃,是 3 年前我們為已經拆除的 I.O. 精品店設計的,現已搬至此處。
在該空間的中心區域,我們設立了一處在水平線上稍有傾斜的環抱中庭作為收銀處與接待處。事實上,這個斜置的區域還能將顧客引至店鋪的第二個區域 —— 帶有中央天井的混凝土 “地堡”。由此,顧客會瞬間體驗到一種開闊感。柔和的燈光下,幾處陳列隨性地點綴著這片 “開闊” 的區域。
人們還將在這裏看到聳立的多層板塔狀展示台、可移動的鞋架、低矮的立方體木櫃(可被拚接、組裝)以及 Dieter Rams 的複古沙發和半透明的更衣室。此外,通過自由流動的環形路徑,顧客可以在原始紋理的牆壁、天花板和地板下的每個區域探索不同的商品。
為了方便店員,我們在接待處、技術室、衛生間、辦公室和倉庫之間設立了一條隱秘的連接動線。這條通道極為隱蔽,並不會被顧客留意和發現。
材質
建築用料上,我們一方麵將 ANCHORET 偏好的材料和空間原本保留的材質相結合 —— 紅磚、舊木混凝土和水泥;另一方麵,我們在保留這些材質原貌的同時,將其與更整潔的自然材料形成對比:染色的膠合木板、柚木、條紋玻璃、穿孔刨花板、老石材地磚、塗層鋼和微水泥。
坐落在三裏屯幸福三村五巷的 ANCHORET 6.0 現已開放,期待您從鬧市的喧囂中脫身片刻,到訪這處歸於寧靜之地。
∇ 改造前後平麵圖
項目信息
項目名稱:ANCHORET 6.0
項目類型:服裝買手店室內設計
設計方:JANG studio
項目設計:2021
完成年份:2022
設計團隊:建築師Filip Galuszka & 宋資, 屈緯嶸
項目地址:北京市朝陽區幸福三村五巷西口
建築麵積:250㎡
攝影版權:劉思言
合作方:NOVO interiors
客戶:ANCHORET
材料:混凝土、膠合板、實木、玻璃、微水泥、刨花板、水泥
品牌:定製生產





























