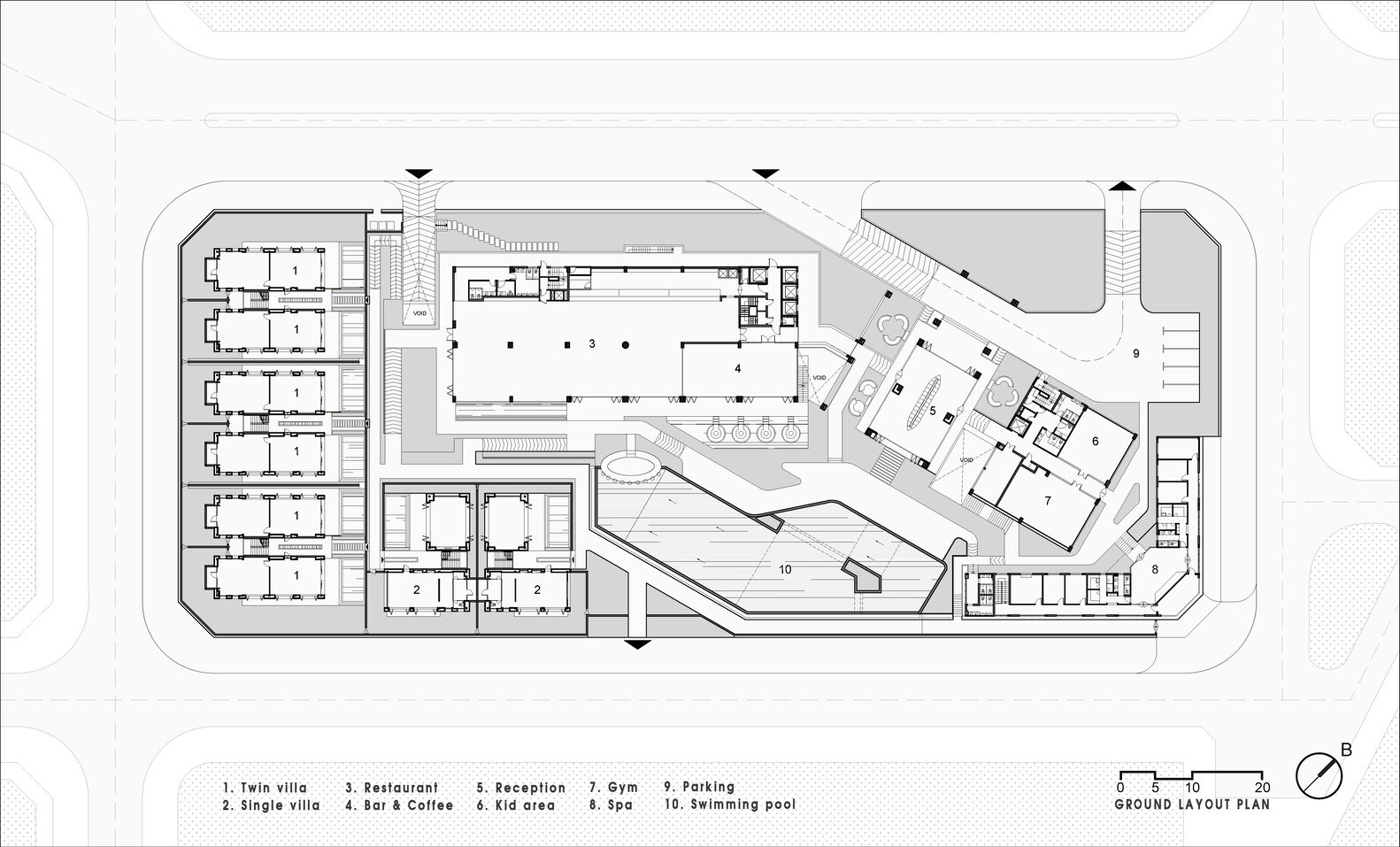
Bellerive 度假村位於越南會安,距離潮州華人會堂 6.1 公裏,四麵毗鄰道路,東麵是 De Vong 河,Bellerive 度假村 – 屬於 The Calico 的財產 – 擁有整個令人歎為觀止的寬敞景觀生態度假村建在占地 8700㎡的土地上,以會安古城的熱帶濕熱氣候為特征。從鳥瞰視角,Bellerive 分為兩個獨立的街區,包括一個 06 層高的酒店街區,可容納 178 間指定客房和豪華別墅街區,擁有 2 至 3 個臥室和一個獨立的遊泳池。
在設計度假空間時,創造一種實踐體驗感是 AVA 原則的核心要素。為此,從大堂、酒廊、休閑區、無邊泳池到餐廳、會議廳、水療中心、休閑區,度假村體驗的方方麵麵都科學地布置在一個統一的建築體上,確保內部和外部的便利性流通,同時確保建築的整體美感。
酒店街區位於主要交通方向。它向後傾斜以形成建築物的景觀,水平延伸穿過土地,不僅為 Bellerive 帶來宏偉的外觀,還為公共區域和酒店客房帶來河濱景觀。Bellerive 以南是專屬別墅區,設有私人泳池,周圍環繞著寧靜祥和的氛圍。無邊泳池位於這片土地的中心,麵向詩意的 De Vong 河岸。Bellerive 的亮點是在功能區之間交織種植的植物和花園,營造出環保的綠色空間,並確保整個度假村的美感。
從高處俯瞰,酒店街區和別墅街區的屋頂靈感來自船倒掛的形象,讓人聯想到De Vong 河沿岸漂浮的漁船形象。以長期使用和環境友好為準則,AVA優先選擇合適的材料,其顏色與現有建築相協調,並符合未來的現代發展趨勢。四周和內牆由生磚砌成,除此之外,還優化了石頭等當地常見材料,將會安古鎮的精神文化帶入Bellerive。結合鋼化玻璃的混凝土材料被用於適應熱帶氣候,以及天花板、牆壁、和確保空氣流通和交替的屋頂,塗上簡單的白色調,點綴米色的木質內飾,為空間提供優雅而別致的外觀。特別是休閑吧區,交織網狀吊頂的設計靈感特別來自於Quang漁民捕魚的形象,增加了質樸、親切和地方精神,仍然保留了Bellerive所追求的奢華和現代之美。
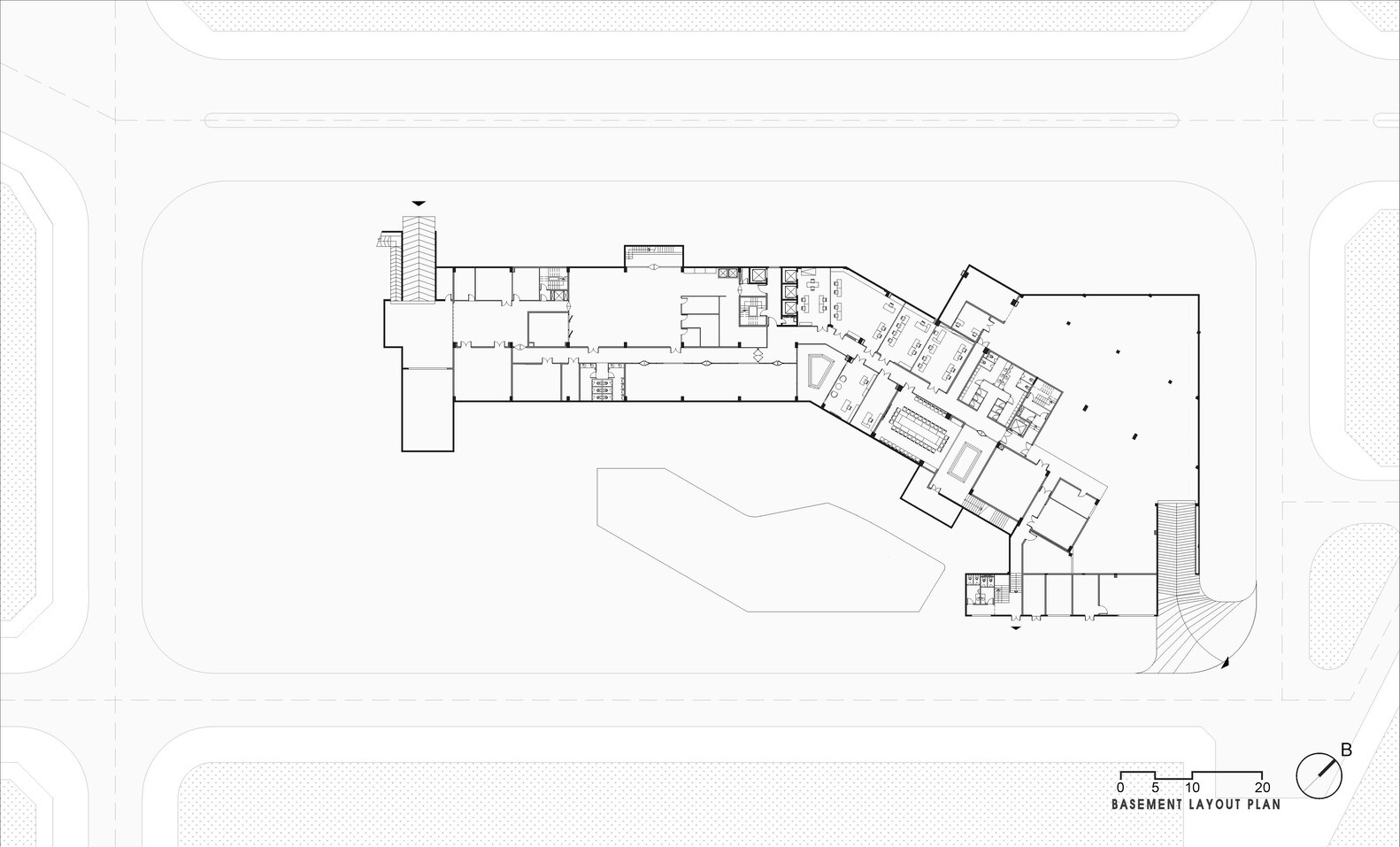
∇ 技術圖紙










































