場地環境:“山景如畫”
麗林維育學校,是香港維多利亞教育集團擇址深圳的第一所分校,位於南山區大南山北側,背靠荔林公園和大南山公園,戶外活動空間有足球場、籃球場、網球場和田徑場及跑道等,周圍山景自然而親切,學生走出教室,就可以與大自然親密接觸。原建築是由兩棟紅磚砌成的體育館組成,AG在設計改造中保留了原建築結構,包括坡屋頂的優美形體。
∇ 建築與環境現狀
地緣優勢賦予場地靈動美好的基調,設計回歸自然,還原空間溫度,將關注放回到學生和老師身上。新校園的設計希望構建和啟發學生對自我的認知、促進群體社交與協作、建立與自然的無縫鏈接。
剖麵策略:“藍色山廊”
AG彙創在垂直關係與組織單元上創造了一條形如流水般的“藍色山廊”,也是貫穿所有室內活動的路徑。像生生不息的知識長河,連接沙龍講座、大台階區域和中庭景觀三大區域,起伏有致,以“自然、開放、人文”的姿態串聯建築各功能,實現綠色自然的滲透、山之四季的共融及與趣味教學的探索。
∇ 剖麵策略:引導式“藍色山廊”是串聯建築各功能的核心
功能布局按不同年齡層,分為啟蒙、學習和自主三種空間特質,輔以水之動靜、生態共享組織閱讀、演講、學習、娛樂和交流等單元,如視為創客中心的藝術交流平台逐夢雲梯,課間自由活動天地荔庭,頭腦風暴區的喳喳小廣場,夾縫中衍生的藝術展廳達芬奇奇境,以及自由社交地趣味交流角。
通過靈活多樣的功能設置以及多維度的建築空間設計,讓孩子們在每一個角落都能得到更多的互動與啟發。
∇ 剖麵圖
空間設計:“自然的滲透”
在這裏,既是孩子們的“學園”,也是“樂園”。空間的設計與教學相輔相成,室內的改造基於小尺度考量,引入陽光、空氣,創造與自然的無縫鏈接。從通透開敞、將陽光引入的中庭,到入口區兼備多媒體學習及休閑社交的多功能沙龍區,再從一層的藝術長廊到二層的特色閱讀區等,設計提供了綠色自然的滲透、空間色彩的斑斕、四時天光的變幻、四季交替的洞察。
入口處的教學中庭保留原坡屋頂結構,並進行了穿透天空的鏤空處理,引入充沛的陽光、空氣,陽光在內部自由折射穿行,營造的是真實感知“自然”的日常。大台階的雲梯連接二層,交通與功能一體,是整個校園的中心,它包容了所有功能的集合,如由自然原木鋪設的台階可席地而坐,可進行半戶外演講、頭腦風暴、或老師和學生的短暫溝通交流,甚至孩子們可以在台階上快樂地跑跳玩耍。
頂部為通透光亮的舞蹈室,與階梯之間的天花頂部設可懸掛功能,是小型自由的藝術展覽地。同時入門品宣大屏及一側的樓梯,為進入學校提供了一個視覺與功能上的聯動。
∇ 逐夢雲梯
∇ 鏤空處理後,室內與室外無縫鏈接,可自由感受四時天光
∇ 大台階連接中庭,空間開闊,木質與石材交替營造溫暖,學生可在大台階快樂玩耍
原建築改成36班製,整個校園充分發揮尺度優勢,我們把大小空間尺度、階梯、欄杆都計量好。比如在大台階兩側立麵做了鏤空處理,為教室引入光。甚至學生可以從一側的圖書室把書帶到這裏,放在3公分寬度的原木欄杆上,營造了隨處可閱讀的氛圍。
∇ 格柵式欄杆讓外立麵更加規整,光的灑落帶來校園生活的律動與光陰質感
∇ 連接大台階,可隨時取書的閱讀室
荔庭是位於教學區的中庭景觀,是學生課間10分鍾的活動場地,鋪設藍色混凝土和種植四時綠植,連接中庭、呈現錯層格局。整個庭院沐浴著陽光,營造出自由、共融的空間氛圍,設計以建築的語言構建了一個如同從室內生長出來的“樂園”。
從庭院可看到二層半開放式的“閱讀盒子”,木質與通透玻璃互為交替呈現建築的純粹。
∇ 荔庭
∇ 孩子們的“快樂10分鍾”,與自由流動的陽光和空氣同享一片藍天
設計有效利用大台階底部的閑置空間,重新規劃了一個接待區水吧。整個設計以通透的玻璃為介質,結合戶外庭院形成一個動靜結合的休閑空間。透過玻璃觀察戶外的嘻哈玩樂,“小廣場”的熱鬧和休息區的安靜,無不識是一個有趣的“觀察”。
∇ 庭院內的接待區水吧,也是家長交流的地方
圖書館利用樓板處空間增加了隔層空間,有效增加了藏書量。並做了有趣的組合,兼具閱讀和小型演講功能,是一個集中布置、提供更多學習和引導機會的圖書館。還增加了自然原木質感的地板麵積,學生可以拿一本書隨處席地而坐閱讀,或臨時組織小型讀書會。
∇ 同時把光線、采光結合進來的圖書館,書架高處設展示功能,低區放置便於
包括音樂室、舞蹈室、美術教室也是聯動整個大空間,在小尺度上創造出新的單元,每個班都可以變成學生展示作品的地方。教室的設計,亦根據不同年級及課程,布置更加靈活、呈多元組合,如采用可移動的家具以滿足低年級孩子的使用;或針對高年級可發揮小組討論的分組式;或為了增加班級競賽及文娛活動的圍合式等。所有的教室以智能化教學,設備的使用更加適配。
∇ 教室的多元組合,滿足不同使用需求
∇ 標準教室、美術教室、音樂教室等
∇ 激發孩子思考與探索的多功能報告廳
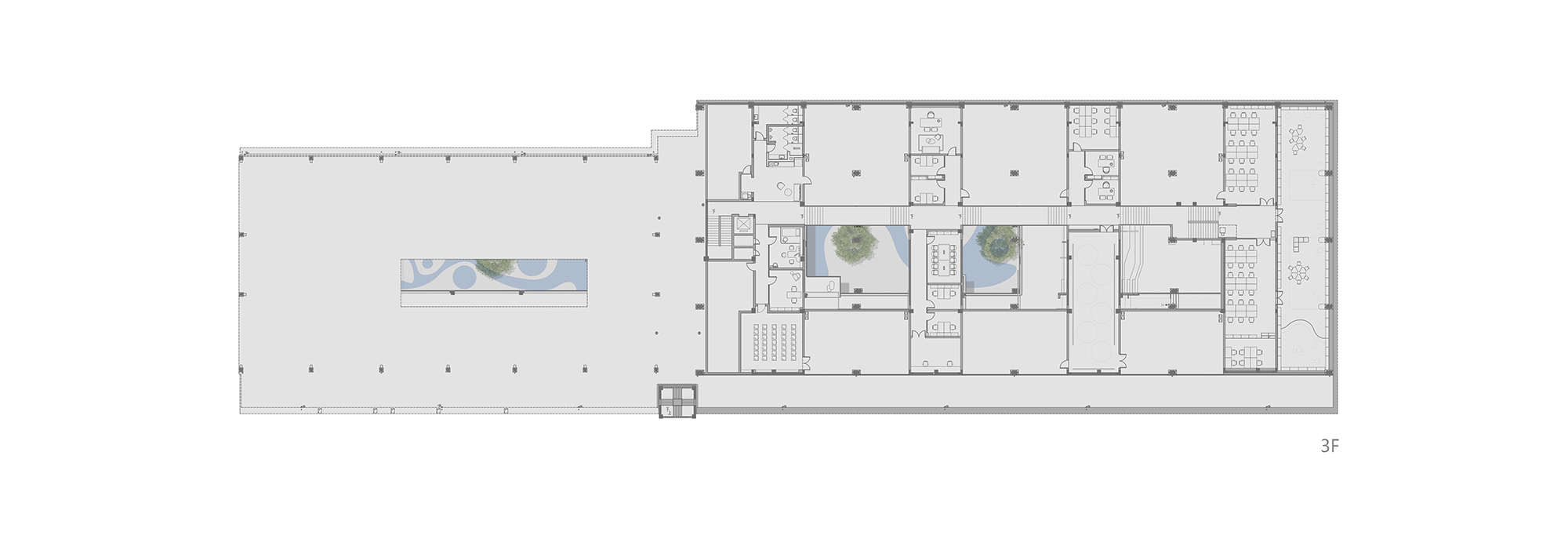
∇ 平麵圖
項目信息
項目名稱:深圳市南山區麗林維育學校(Victoria Park Academy)
項目地址:深圳市南山區南山街道荔林社區東濱路龍船塘街8號
項目類型:九年一貫製學校
項目規模:36班
室內麵積:8621㎡
完成時間:2022年
甲方單位:香港維多利亞教育集團
室內改造&中庭景觀設計:AG彙創
設計主創:呂達文
設計團隊: 蘇曉媚、鍾英豪、潘兆峰、王淑晨、曾謝澤、劉夢雨、王玨、黃為騰
空間攝影:鄭航天
圖文&視頻版權:AG彙創
建築改造&結構設計:廣東華鼎新維設計工程有限公司


































