在 Avenidas Novas 的裏斯本街區,公寓 AP 位於一棟可追溯至 00 年代初的建築中,其設計華麗,但公寓空間特征一般。低矮的天花板高度和細長的黑色窗框定下了幹預的基調,這導致了將空間包含在統一、溫暖和柔軟的外殼中的操作。
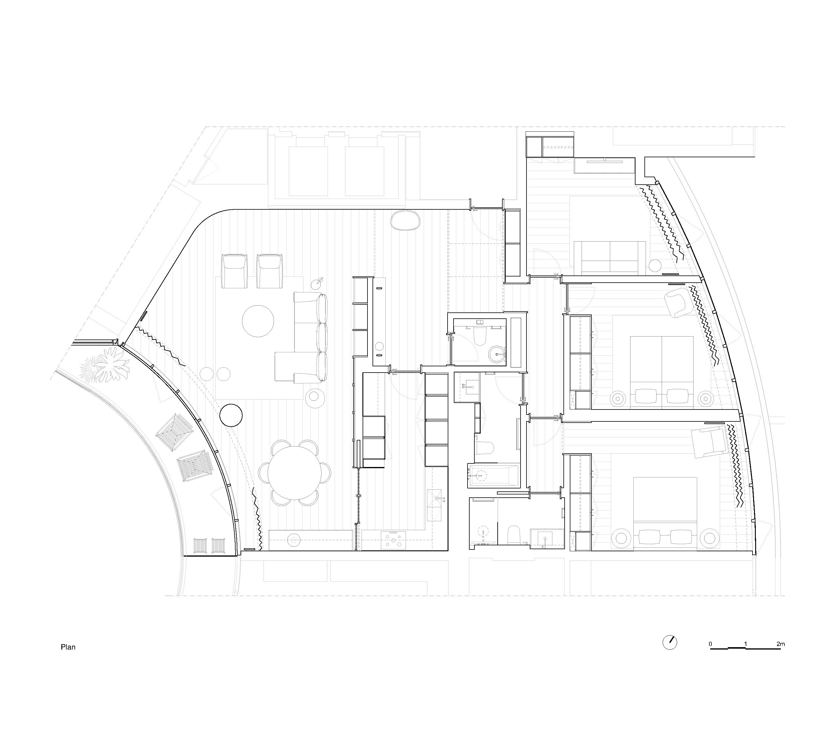
空間結構發生了決定性的變化,客廳區域的擴展—現在占據了整個西立麵—以及通過半透明的推拉門擴大了與廚房的聯係。設計師重新安排了天花板高度、全高門洞、新的天花板飾麵,以及完全重新設計和更換木製品:拆除踢腳板、新地板、門、框架、櫥櫃、和鑲板,橡木。
∇ 平麵圖
版權聲明:本站所有文章除投稿授權發布外,其他文字內容均為原創,享有著作權保護,未經許可不得以任何形式進行轉載(包括且不限於:媒體、網站、公眾號等)。所有項目照片/設計圖形版權歸原作者所有。本站部分內容源自網絡公開資源或用戶分享,如若侵犯了原作者的合法權益,可聯係我們進行處理。


































