MEUNIER科技美容再邀DOMANI東倉建設執筆,開啟中國區第三家旗艦概念店【時間的本質】。該項目為繼MEUNIER【烏有山水】,MEUNIER【亮如白晝的夜及溫和的肢解】之後DOMANI貢獻的第三家醫美業界殿堂級美術館概念店。
場一/前室
沙漏:一種計時儀器,又有沙鍾、沙壺等別稱。沙漏通常由兩個連在一起的流沙池組合而成,而內裏則視乎計算的時間密封裝有一定的流沙。沙漏最早被發現於中國、希臘、意大利等地,被使用於航海,澳洲國會使用沙漏作為會議議程計時之用。其工作原理為通過流沙由一個流沙池流到另一個流沙池,直至流光,因為內裏密封,所以流完的時間每次都會相同,流沙池上繪有刻度,從而得知時間。
重力擺:一個由質量和長度一定的單擺組成的物理係統,通過重力作用下擺動的運動。在重力作用下,擺球沿著弧線運動,達到最高點時速度為零,最低點時速度最大。這種運動有固有的頻率,稱為擺頻,與單擺的長度和重力加速度有關。重力擺被廣泛應用於物理學和科學教育中,可用於測量時間、驗證牛頓運動定律等。
重力擺的軌跡:是一個周期性變化的隨圓形。這是由於重力擺運動的特性,即在一個周期內,擺球不斷地在弧線上往返擺動。在擺球擺到最高點時,它的速度為零,但由於地球引力的作用,它將開始加速下落。在下落的過程中,擺球所受的重力與速度方向之間的夾角將逐漸變小,使得下落的速度逐漸減慢.當擺球達到最低點時,它的速度最大。然後,擺球開始沿著相反的方向運動,並逐漸減速直到再次到達最高點,這個過程就形成了一個周期性變化的橢圓形軌跡。
場二/中庭
雨棍:又名雨聲器,有可能是源自南美洲的智利或秘魯傳統部落祭天求雨的一種法器。傳統雨棍外型如長棒,中間部份為空腔,多以植物的樹幹或莖部(竹,仙人掌等)為材料,在其管身內會加設複雜橫置的分隔物,再通過填入的細粒狀物質,如植物種子、細鐵珠、膠珠、砂粒等。通過晃動使充填物在管內通過分割物流動時所發出的摩擦聲音,如雨點落地之聲,因而得名。
粒子:(particle)為占有微小局域的物體,其可以被賦予若幹物理性質或化學性質,如體積、密度或質量。它們在大小或數量上差別很大,從亞原子粒子如電子,到微觀粒子如原子和分子,再到宏觀粒子如粉末和其他顆粒材料。
聲波:是一種在介質中傳播的能量,通過絕熱過程增壓與減壓。用於描述聲波的重要物理量有聲壓、粒子速度、粒子位移和音強。聲波以特定的速度傳播,這一速度取決於其通過的介質。
場三/暗部
明暗對照法:(意大利語:chiaroscuro),源於意大利語的“明”(chiaro)與“暗”(scuro),是文藝複興時期發展出的繪畫技法,通過強烈明暗對比的基調以塑造三維立體的效果。傳統上,運用明暗對照法的繪畫會使用白色水粉畫亮部,而用畫紙本色或墨水等畫暗部。[2][3]達芬奇、卡拉瓦喬、倫勃朗等畫家都以此技法見長。明暗對照法這一概念後來還被攝影領域及空間領域所借用。
感質:的定義是主觀意識經驗的獨立存在性和唯一性。Qualia這個詞源自拉丁語中的形容詞quālis’的中性複數形式,意為“of what sort”或“of what kind”(大致意為“…性”,例如紅色性、有香味性等)。感質是‘一個我們不熟悉的詞彙’,用以描述再熟悉不過的東西與事物在我們眼中的樣子。
場四/流動
流動空間:不把空間作為一種消極靜止地存在,空間在水平和垂直方向都采用象征性地分隔,而保持最大限度的交融和連續,實現通透、交通無阻隔性或極小阻隔性。為了增強流動感,往往借助流暢的、動態的、有方向引導性的形式。流動空間是現代建築的重要特點之一,主要表現為空間內外的相互穿插滲透與內外借景。更本質的流動性則指建築空間內部動線的通達,貫穿及節奏。
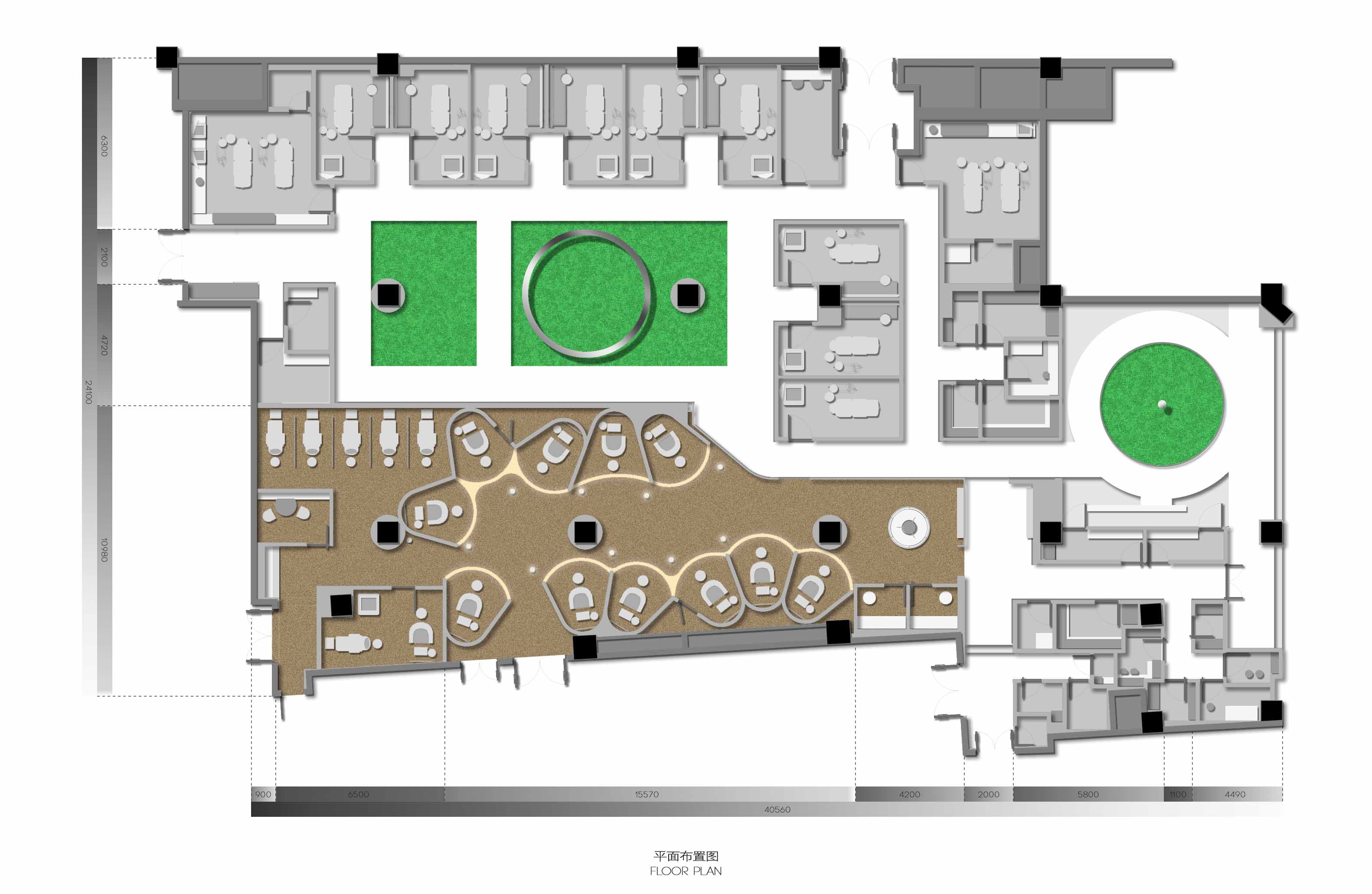
∇ 平麵圖
項目信息
項目名稱|時間的本質.CHRONONEN | MEUNIER 3概念旗艦店
項目地址|中國 深圳
項目麵積|800㎡
項目業主|Meunier曼妮雅科技美容中心
室內設計|餘霖 / DOMANI東倉建設
裝置設計 | 餘霖 / DOMANI東倉建設
項目經理|王曉君 / DOMANI東倉建設
軟裝陳設|A&V 桉和韋森
項目工程|池飛鴻 / 深圳博韜建設有限公司
裝置工程 | 伍聖雄/ 廣東建藝公共藝術設計院有限公司
傳媒管理|黎穎欣 / DOMANI東倉建設
項目攝影|吳鑒泉
DOMANI東倉建設成立於2005年,坐落於中國廣州。致力為不同行業的前瞻性客戶提供頂級的建築、室內及產品的創意與設計。並為市場貢獻完整的高水準商業設計作品,來幫助眾多企業獲得全新的空間體驗。及通過高溢價的空間作品帶來卓越的市場反饋。東倉建設作品已囊括諸多國際權威賽事殊榮,並成為亞洲地區頂級設計機構之一。
DOMANI東倉建設秉持嚴謹的職業態度、卓越的設計團隊與全麵的項目控管模式,並結合龐大的項目顧問資源係統,通過多元化的空間作品呈現更具國際視野的企業態度。



















































