項目背景與城市脈絡
2022年初,工作室受邀為三家生活方式品牌共同設計位於南京的集合店鋪。兩層600平方米左右的麵積,經過商定,一層為戶外生活方式品牌ABC CAMPING COUNTRY,二層則為失物招領×三十六鷗生活提案店。
場地選址於南京碑亭巷62號美術大廈,這裏是長江路和碑亭巷的交彙處。“一條長江路,半部南京史”,不論是六朝還是民國時期,這兩條路都見證了南京曆史上的興衰繁榮。悠久的曆史必然會在不同時期塑造出城市的不同肌理,我們希望通過此次改造設計,能夠捕捉城市的脈絡與肌理,讓這裏不但成為包容各種商品的店鋪,也能幫助街道和建築再次煥發活力,成為居民和來往的顧客聚集、交流的場所。
∇ 區位圖
思考街道與店鋪的關係
碑亭巷是一條南北走向不足千米,麵寬狹窄的街道,中間設有機動車單行通道和自行車道,道路兩側是人行步道,曆史的沉積加上窄街區的舒適尺度讓這裏如今成為煙火氣十足巷子。美術大廈這棟建築物坐東朝西,主入口大麵積的窗戶麵向街道。對麵是第一個國家美術館,由中國第一代建築師楊廷寶先生設計建造,透過低矮的圍牆我們能看到美術館的建築和院子。西側並沒有近距離的高大建築物作為遮擋,因此夏天西曬的問題不得不需要正麵的去麵對,我們還注意到街道兩側的大部分建築物緊鄰著人行步道,一些店鋪一旦排起長隊勢必會擠占人行道,這種情況不但影響了道路的交通而且雨天沒有遮蔽則更為狼狽。關於店鋪與街道關係的思考也由此展開。
如果能給建築安裝上大屋簷既能解決兩層空間的西曬問題,一層還可以為來往的顧客和居民提供排隊避雨的場所。顯然向外部做加法是行不通的,隻能把問題轉移到內部思考。傳統古建築坡屋頂出挑的簷廊給我們提供了一個很好的思路,因此兩層空間同時向內退讓形成對外開放的簷廊方案就此確定。
既是街道,也是客廳
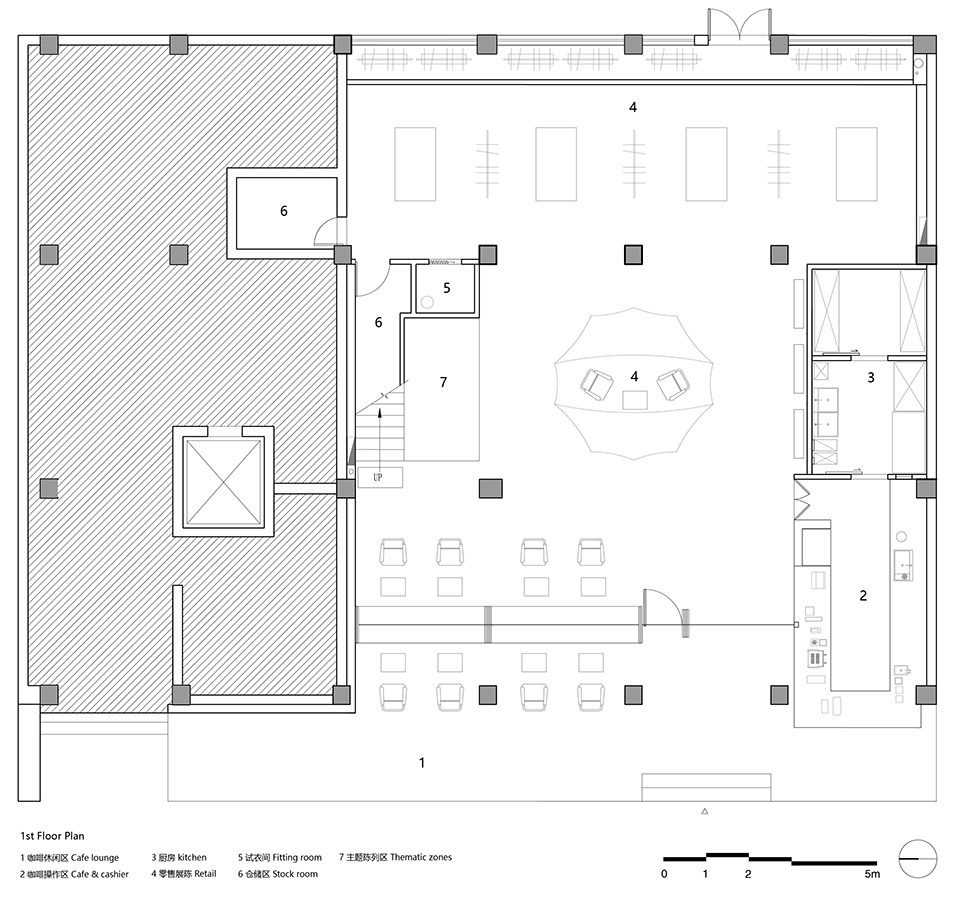
第一次去場地勘查,一層中央盤踞著巨大的樓梯,格外顯眼。空間也因此被切割成前後兩大片區。後麵的片區完全被樓梯所遮擋。一層的空間業主希望能夠滿足接近日常的咖啡、服裝、戶外裝備的展陳和零售等功能。隨後我們決定拆除樓梯,設置新的樓梯連接兩層空間。新的樓梯以最小體積和視覺遮擋被設置在入口最左側的位置,以便創造出行人從街道上就可以一眼洞穿的城市客廳。
展陳布置主要利用了牆麵空間,避免造成中間區域視覺上的障礙,我們不對所有的功能設限,將中間核心區域的靈活使用機製交給店鋪的經營者。內部空間和外部簷廊之間通過玻璃折疊門係統的啟闔,與外部街道融為一體,歡迎任何人的進入,向城市和街道釋放出一種善意與友好。
日常與平等
一個城市的街巷裏讓人印象深刻的可能就是每天都熱氣騰騰的包子店,師傅們嫻熟忙碌的身影總是會給人帶來活力。一杯咖啡需要經過多種工序製作完成最後送到顧客手中。我們也想將這些動作麵向街道,讓道路上來往的行人也能注意到這個完整過程。因此決定在兩柱之間置入貫穿於內外的“亭”,作為同時對內和街道的窗口,滿足日常的咖啡操作與售賣。咖啡“亭”內外的地坪高度的設置是一致的,我們希望店員和顧客之間的視線建立在同一個高度上。
一層地坪使用混凝土磚塊鋪貼覆蓋在原始水泥地麵上,一直延伸至室外與人行道相接,來往的行人和顧客可以坐在用磚塊壘起來的路牙子上攀談。凸起的部分則成為展台和長凳。外立麵改造采取了低幹預、和而不同的策略。大部分店鋪都想要追求高大的門頭,這次我們卻主動將立麵和門頭高度同時降低至離地2.6米,被壓低後形成的特殊視線關係,成為簷廊下喝咖啡,休閑的人們的庇護所,和對麵的國立美術陳列館保持著相對平等的對話視線。
方庭與曲庭
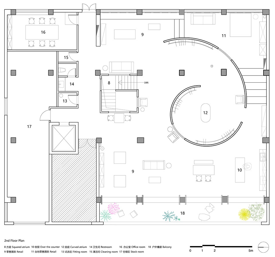
二層的空間客戶希望能滿足家具、服飾、家居選品的展陳與售賣;日常辦公;洽談;倉儲等功能,以及能夠應對活動布展的靈活性。一層空間具備高度的透明性,歡迎人們走進來,那麼到了二層我們非常希望人們能深入的走進去,並帶著繼續探索的心情。場地是由梁柱撐起的製式空間,我們需要做的第一步就是打破這種初始狀態下的均質,創造出讓人具有探索性,慢慢逛的店鋪印象。
樓梯洞口上方本身就是空出來無法涉足利用的區域,與其做一圈常規高度的護欄,不如把護欄轉換為到頂的牆體,因為牆體在分割空間的同時還能作為視覺的遮掩,於是方庭的雛形得以形成。但是在大而空的場地內隻有一個方庭還不足以營造出複雜性和趣味性,況且方庭我們隻能圍繞在它的四周,不能真正意義上的身在其中,於是思考收納進另一個抽象化的庭院。
但是這個庭又將是什麼樣的庭,如何的抽象才能在滿足功能的同時和方庭共同組織起新的空間係統。最簡單的切入方式還是以基本幾何形來建構,最先覺得圓形和方形的組合是較為合適的,不過圓形又難免會讓人覺得古典而具有象征性。我們希望營造的場所不帶有任何的風格和個人主義傾向,不中不西,能夠含蓄包容各種產品和來此的各色人等。因此我們將這個圓剪開一個口子然後拉拽成類似鏡像後的“6”字形態,與方庭之間拉開一定的距離,並在其內部又開了一個門洞,通過半高的曲形牆體圍合成,我們將之稱為曲庭。其他的對應功能也在兩庭格局的基礎上被一一填入其中。就這樣在兩庭之間形成了或寬或窄,或直或曲的多條路徑。
失物招領的產品主要是家具、家居類別,而三十六鷗的產品是以服飾、生活用品為主。我們需要思考兩個品牌一大一小的產品如何布局規劃放在同一個空間裏。如果兩個品牌全部都獨立展陳,雖然看似直觀但略為單薄無趣。因此我們選擇將兩個品牌的產品相互融合,這樣所營造出的居家生活也更為生動飽滿。失物招領的家具有客廳、餐廳、臥室、書房等應用於不同家庭場景類型的,如果場景展陳過於集中,或許就會成為常規家庭房間功能的複製堆疊,不如借用交通路徑分而化之。
曲庭內側的牆體用於服裝的展陳,宛如一個巨大的半開放衣帽間。曲庭外圍臨近街道一側,我們選擇將這裏作為一個靈活性的功能區,平時可以作為LDK生活場景展陳,也可以應對各種活動和展覽的舉辦。
風景與身體
從樓梯上到二層,顧客探索的路徑具有選擇性和迷路性,可以根據自己的感覺和喜好而定。方庭和曲庭的牆壁上沒有任何的裝飾,卻有著讓人感到意外且具有穿透性的洞口,空氣和陽光也能夠自然流動,我們希望透過洞口所窺探到的風景,能夠驅使身體漫遊其中,偶遇到自己心儀的物品。
在曲庭的東南角,我們將平坦的地勢向上隆起,形成一段台地。台地匍匐在這個角落,相對具有一些私密性,未來可以作為臥室的場景展示。在台地兩個方向上的進入方式雖然都利用了台階,但是為了能給身體和心理帶來節奏上的變化,我們設置了不同高度和踏數的台階。站在台地上,也將帶來特殊的視野。
場地東側的窗外是學校的建築物,幾乎要逼近窗邊,絲毫沒有美感,同時還分散了內部的注意力。麵對風景,佳則收之,俗則屏之。翠玲瓏的花窗,確實是點睛之筆。我們也試圖通過構建一層花窗,讓兩者之間保持著曖昧的距離感,花窗也給空間增加的序列感。
靠近西側原來的窗戶臨近街道,隔著玻璃可以看到城市的街景,內退後形成的簷廊,可以讓來此的人每個人都能走出去感受到城市和自然的風景。在這個開放包容的場地內,我們希望能給大家帶來可行、可望、可遊的樂趣,期待未來的多種生活形態在此發生。
∇ 一層平麵布置圖
∇ 二層平麵布置圖
項目信息
項目地址:南京市玄武區碑亭巷62號美術大廈1-2層
設計單位:MOU建築工社
完成時間:2022年10月
項目麵積:600平方米
主創設計:吳狀
設計團隊:付仕玉、陳靜、李逸雯
項目管理:方文康、吳靚
施工支持:南京柏泉裝飾工程有限公司
燈光配合:維光照明
地坪配合:南京邦喜建材有限公司
品牌方:ABC CAMPING COUNTRY、失物招領、三十六鷗
攝影:吳昂
撰文:吳狀
主要材料:混凝土磚、水泥、石頭、柳桉木膠合板










































