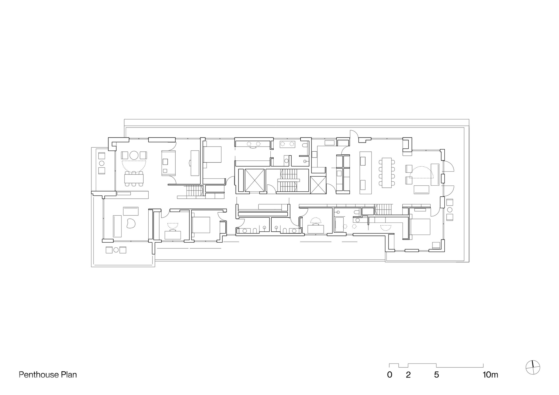
在設計客戶的夢想家園時,建築師收到不尋常的設計需求簡報並不罕見。在Office Alex Nicholls的案例中,熟悉的客戶委托該事務所合並墨爾本的兩套頂層公寓,由建築師將兩個大空間合並為一個豪華的代際家庭住宅。 Elsternwick 公寓分布在三個樓層,是兩個最初單獨規劃的頂層公寓的組合空間。
客戶的設計要求是為代際家庭留出足夠的空間,同時在需要時提供獨立空間的選擇。公寓的可見分隔已經由位於中心的現有電梯豎井和逃生樓梯劃定。電梯對麵是書架——設計師在整個公寓中采用的主要概念之一。 一個令人印象深刻的木架子,毫不費力地橫跨整個內部空間,裏麵陳列著多年來收集的藝術品、書籍和手工藝品。用於存儲的材料出現在其他房間以保持一致性,同時為整個公寓帶來溫暖——突破通常與公寓相關的冷白色美學。
∇ 設計草圖
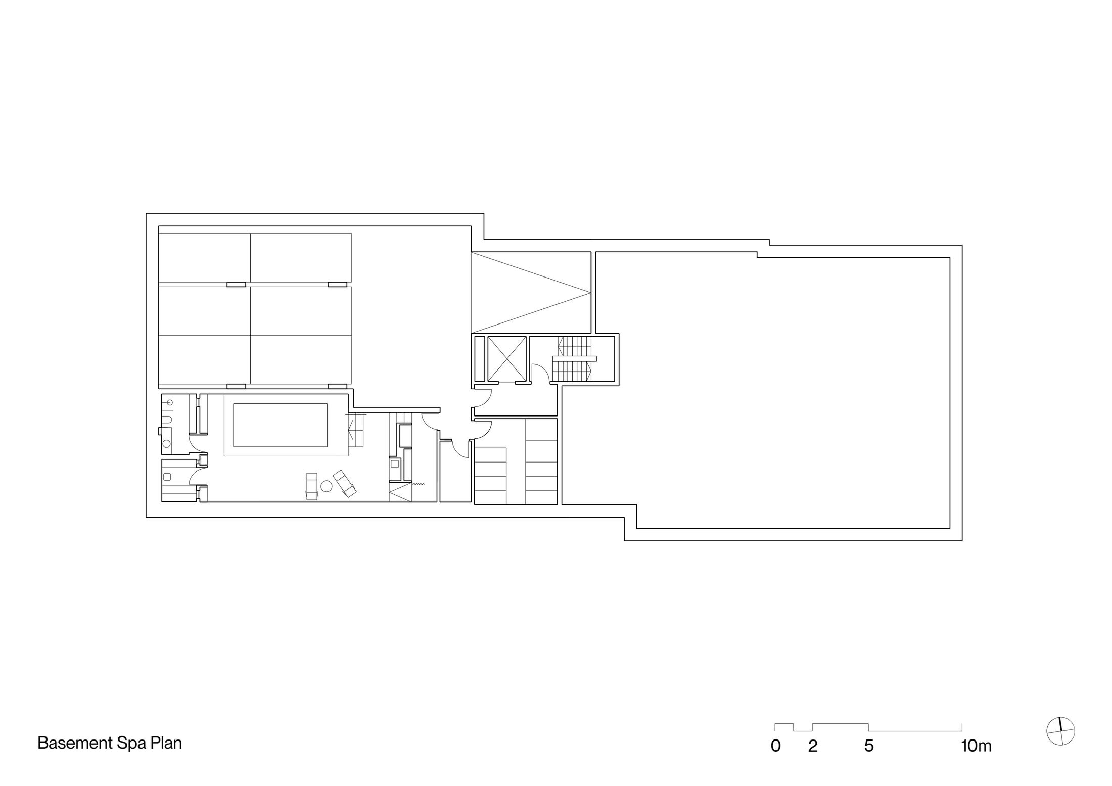
∇ 平麵圖
版權聲明:本站所有文章除投稿授權發布外,其他文字內容均為原創,享有著作權保護,未經許可不得以任何形式進行轉載(包括且不限於:媒體、網站、公眾號等)。所有項目照片/設計圖形版權歸原作者所有。本站部分內容源自網絡公開資源或用戶分享,如若侵犯了原作者的合法權益,可聯係我們進行處理。


































