Casa Mille 公寓現代風格區分了幹預,除了浴室外,整個表麵都是橡木條,鋪設成意大利人字形圖案,並帶有啞光飾麵。
淺色和橡木主導著與波爾多漆木內飾的對話。對於家具的選擇,Breuer 的 Cesca 椅子等標誌性元素與 Flos 的 Noctambule 等現代元素形成鮮明對比。
主房間設有帶 Pianca 方桌的用餐區和 Rubinacci 的實木餐具櫃以及起居區。這裏有 Molteni 的紅色天鵝絨 Chelsea 沙發、Baxter 的 Godard 深棕色皮革沙發和 Poltrona Frau 的綠色皮革 Arcibald 扶手椅,呈 U 型排列,周圍環繞著 Molteni 的真絲地毯。
從起居區,穿過 ADL 滑動玻璃門隱藏的勃艮第漆門,進入由灰色漆柱和中央島組成的廚房。
在主臥室裏,有帶玻璃門的 Molteni Gliss Master system 7 衣櫃和兩盞 Tooy Nastro 壁燈之間的綠色織物絲帶床。
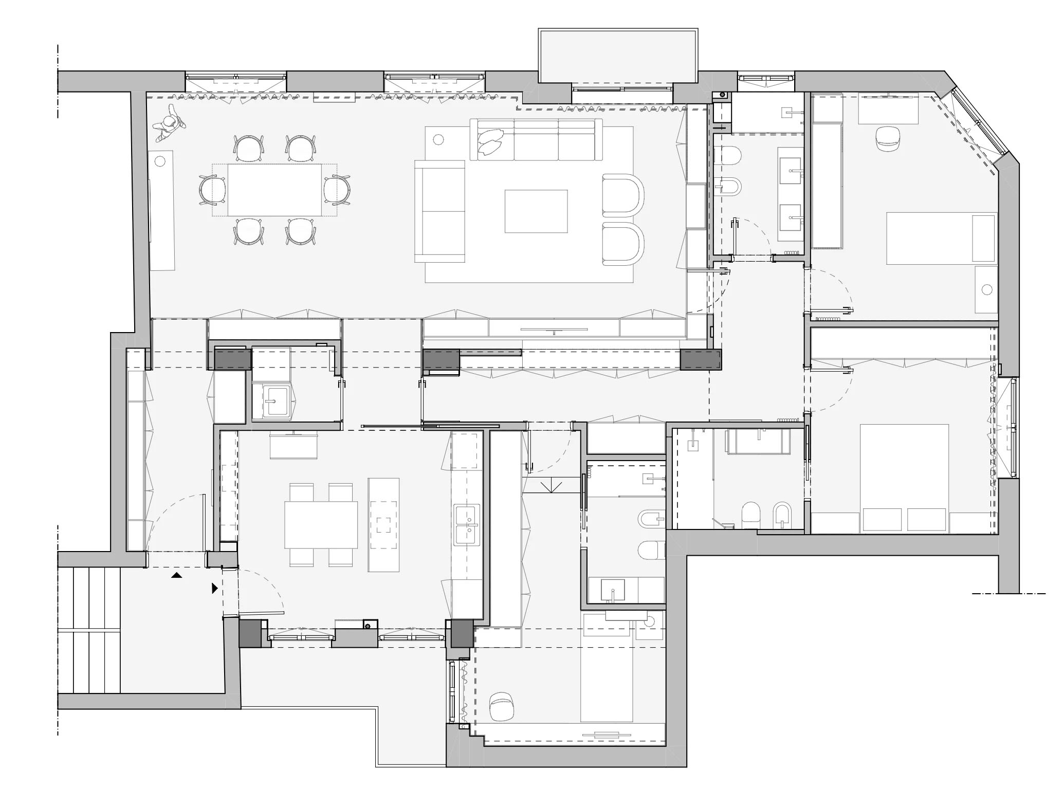
∇ 平麵圖
版權聲明:本站所有文章除投稿授權發布外,其他文字內容均為原創,享有著作權保護,未經許可不得以任何形式進行轉載(包括且不限於:媒體、網站、公眾號等)。所有項目照片/設計圖形版權歸原作者所有。本站部分內容源自網絡公開資源或用戶分享,如若侵犯了原作者的合法權益,可聯係我們進行處理。






















