OY 零售店位於首爾麻浦 Seogyo-dong,擁有幾何線條和形狀。這是一個以現代方式重新詮釋和表達自我的時尚品牌。OY SEOUL 有一個兩層樓的陳列室。
當顧客推開門,經過入口,會看到一條敞開的通道和一個似乎與一個看不見卻無限的世界相連的區域。入口處顯示的區域與圓頂形天花板一起呈過道狀。 通過放置一個彎曲的衣架,COV Studio創造了一個空間,顧客可以在其中看到事物,例如生長的植物,並專注於以一定角度反射在鏡子中的事物。如果走直樓梯,就擺脫了單調的形式。最大限度發揮三維效果的各種物理特性的家具展開。
COV Studio 受到追求品牌的用戶的重視,因為COV Studio規劃了一個可以體驗的空間。COV Studio希望通過每個元素的細節來傳達品牌形象。
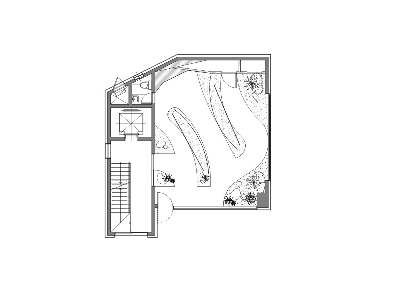
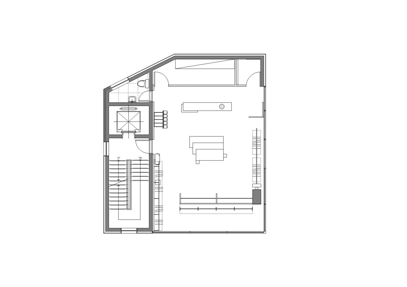
∇ 平麵圖
版權聲明:本站所有文章除投稿授權發布外,其他文字內容均為原創,享有著作權保護,未經許可不得以任何形式進行轉載(包括且不限於:媒體、網站、公眾號等)。所有項目照片/設計圖形版權歸原作者所有。本站部分內容源自網絡公開資源或用戶分享,如若侵犯了原作者的合法權益,可聯係我們進行處理。
































