2023年4月29日,位於上海的超大型城市改造項目“蟠龍天地”正式開業。TOPOS & MEEM聯合設計的MINGSI主力店也在這座都市古鎮中正式對外營業,並創造了日營業額破8萬的銷售記錄。
MINGSI,品牌進化論
品牌主理人Lee在去年初就籌劃在上海青浦的蟠龍天地開設門店,這將是一次品牌露出的絕佳機遇。然而,由於偏遠的地理位置和嶄新的商業類型,他同時也非常擔心業績,我們開始思考品牌基因在開放式街區的進化形態。
MINGSI是一個不斷挑戰常識的“進行時”品牌。如果品牌一致性(Brand Consistency)是一種常識,千店千麵則是對常識的挑戰。這是我們與MINGSI合作的第三年:2021年,MINGSI是卡爾維諾書中,一座座看不見的城市;2022年,MINGSI是博爾赫斯筆下,一個個小徑分叉的花園;2023年伊始,源自古典精神的新典雅主義成為MINGSI在後疫情時代的空間宣言。
在設計中尋找治愈感(looking for a sense of healing in design),是TOPOS & MEEM為MINGSI定義的品牌態度。基於“溫暖,不止於家”的品牌內核,我們希望MINGSI HOUSE能夠在不同的時空和場所,營造出似曾相識並具有溫度的詩意場景。
∇ 看不見的城市
∇ 小徑分岔的花園
∇ 標識設計
屋簷之下、大地之上
作為上海32個曆史風貌保護區之一,蟠龍天地也是上海首批完工“城中村”改造項目,曆史可追溯至隋朝。蟠龍天地是未來之「市」,「市」是城市,也是街市,一種全新的商業聚落樣本和城市生活形態。相較位於城區的傳統商場,麵對迥然不同的速度與能量,MINGSI作為商業聚落的獨立單元,需要“此刻,可以慢一點”。隔壁既有行業競品,又有獨立賣手,柔情似水的江南古鎮暗湧著物競天擇的殘酷商業法則。
基地位於蟠龍天地南市的主步行街區,這是一片源於水鄉民居類型學,基於當代建造技術的新建築群。三麵沿街的單層獨棟,擁有六米挑高的坡屋頂,在水平和垂直維度都擁有得天獨厚的空間品質。“屋簷之下、大地之上”,一個具有體積感的鋼筋混凝土盒子,如何填空和留白是破題所在。
∇ 項目位置
∇ 建築軸測
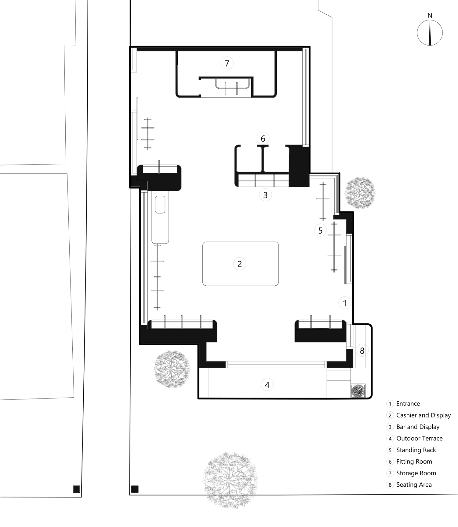
首先,我們用光來抽象體量。擁有坡屋頂的前廳最高點淨高6米,而後場因為設備平台的存在卻隻有3米的淨高,我們為落差3米的連續空間提供了不同的剖麵設計與照明係統。暗藏機電設備的坡屋頂天花由8組平行的巨大透光軟膜組成,讓前廳充滿均質而柔軟的白晝之光;後場平屋頂天花呈矩陣布置了20個定製水晶吸頂燈,3000K的色溫模擬溫暖的暮色之光。
明暗對高低,讓時間平行於空間中。
∇ 剖透視圖
沿襲西方古典建築設計的布紮體係(Beaux-Arts)有一套關於整體與局部的設計方法,即parti et poche。其中,parti可以理解為空間類型或範式,poche可以解釋為實牆內的空間和功能。我們從古老的設計方法中獲取靈感:延續現狀結構,我們擴充了五道牆體為體塊,用柚木包裹導圓角的矩形體,分別容納了4個發光的衣架,2個膠囊狀的更衣間,以及鑲嵌手工磚的壁龕和儲物間。坡屋頂下安置了一個集收納、收銀、展示於一體的巨型中島,源自MINGSI“去收銀台”的銷售策略。5米長,3米寬的非常規尺寸,猶如他山之石,陌生卻不突兀的溫潤體塊漂浮在大地之上。
由此,承重的牆體消失了,取而代之的是容納功能的柚木體,猶如溫暖而堅實的島嶼,留白到恰到好處的空間由此流動起來。
∇ 牆體生成圖解
∇ 室內軸測圖
場景製造家
“商業的本質是交易,一切的商業起點是讓消費者獲益。消費者買我們的而不買其他家的,是因為在我們這裏獲益更多。”搭建恰到好處的場景,乃至讓場景成為產品的一部分,是設計讓消費者獲益的價值所在。TOPOS & MEEM為品牌設計的三條原則,成為了MINGSI建立視覺與空間體係的底層邏輯:
1.城市建築學:室內空間是城市肌理的內膽,我們提供一個與城市公共空間對話的私域空間。
2.形式即媒體:立麵作為麵向消費者的主界麵,我們建造一個品牌至上,宣言式的媒體立麵。
3.空間敘事性:空間需要基於品牌的劇本和故事,我們構建一個具有傳播記憶點的敘事性空間。
在試運營期間,我們設計團隊邀請攝影師Kelvin到剛竣工的現場拍定妝照,本以為會是空場,沒想到人來人往,熱鬧非凡。店長甚至打趣說:“本來以為試運營期沒啥人流,但是出乎意料的是,我們的試衣間不夠用了……”
夜幕降臨,古鎮靜臥,“屋簷之下、大地之上”的MINGSI HOUSE,沐光而行。
∇ 平麵布局圖
項目信息
項目名稱:MINGSI@蟠龍天地
項目地址:中國,上海市,青浦區
項目麵積:150平方米
業主單位:The Mingsi House
空間設計:TOPOS DESIGN
視覺設計:MEEM DESIGN
品牌主理人:陳禮斌
主創設計師:季浩天
空間設計團隊:呂傑,張丹嫚,鄭宏婧,林晨
視覺設計團隊:秀子,陳思雨,吳淩豔
機電設計:王必虎
施工單位: 杭州紅豐裝飾工程有限公司
照明供應商:集巨照明
道具供應商:中擎店裝
建築攝影:Kelvin Li
設計時間:2023.02至2023.03
施工時間:2023.03至2023.04
項目主材:柚木貼皮,手工瓷磚,透光膜,微水泥,水洗石
































