本案以簡約卻細膩的筆觸,給居住者塑造了一個現代風的家,擁有當下設計的舒適便捷,卻沒有快節奏的氛圍。一切都以居住者的心境為出發點,創造適合的功能,以精巧的細節賦予空間儀式感,讓生活簡單卻精彩。
木飾麵的溫潤細膩與奶油色的溫柔相互融合,花磚清新典雅,讓人從視覺、觸覺感受到回家的儀式感。鏡麵打破空間的限製,在實用之外,予人寬廣的視野。
科技聯動人與世界,卻也讓人在複雜紛繁裏迷失。家剝除這些複雜的關係,令人回歸到自我和身邊人。
小書架代替電視,開辟一方尋找自我的獨處空間;沙發相對而立,布藝的材質舒適放鬆,足夠一家人對坐。
寶藍的色調沉靜優雅,用色彩賦予空間活力。沙發的邊幾別具巧思,由台階延伸而來,充滿想象力的設計不僅實用,還富有讓人會心一笑的趣味性。
在家裏建造一個自由的空間,容納最真實的自我,隨心所欲地生活,享受家的歸屬。
用矮牆圍合出一片幽靜卻不封閉的空間,自然光可以傾灑至每一個角落,氛圍舒緩而放鬆;清淺的藍與細碎的色塊點綴出清新明朗的靈動感,空間沉靜卻不乏活力。
空間真正的生命力並源於浮華的外表,而在於豐富的生活。
長桌與操作台簡單質樸,卻實用,演繹著空間裏的不同場景。是書房,是水吧區,是親子活動的場域……簡約的空間因可塑性而活了起來。
天花板的造型美化空間的結構,拉高層高,配合明朗的色調,提升空間居住體驗。自然光由明及暗,形成對比,燈光描畫重點,暈染空間的情緒。
黑白的線條塑造出漫畫般的感覺,將空間從現實抽離,以獨特方式塑造世外之地般的寧靜,讓休息時光充滿趣味。金屬的色調與質感為黑白的優雅增添一分高調的華麗,演繹平衡的哲學。
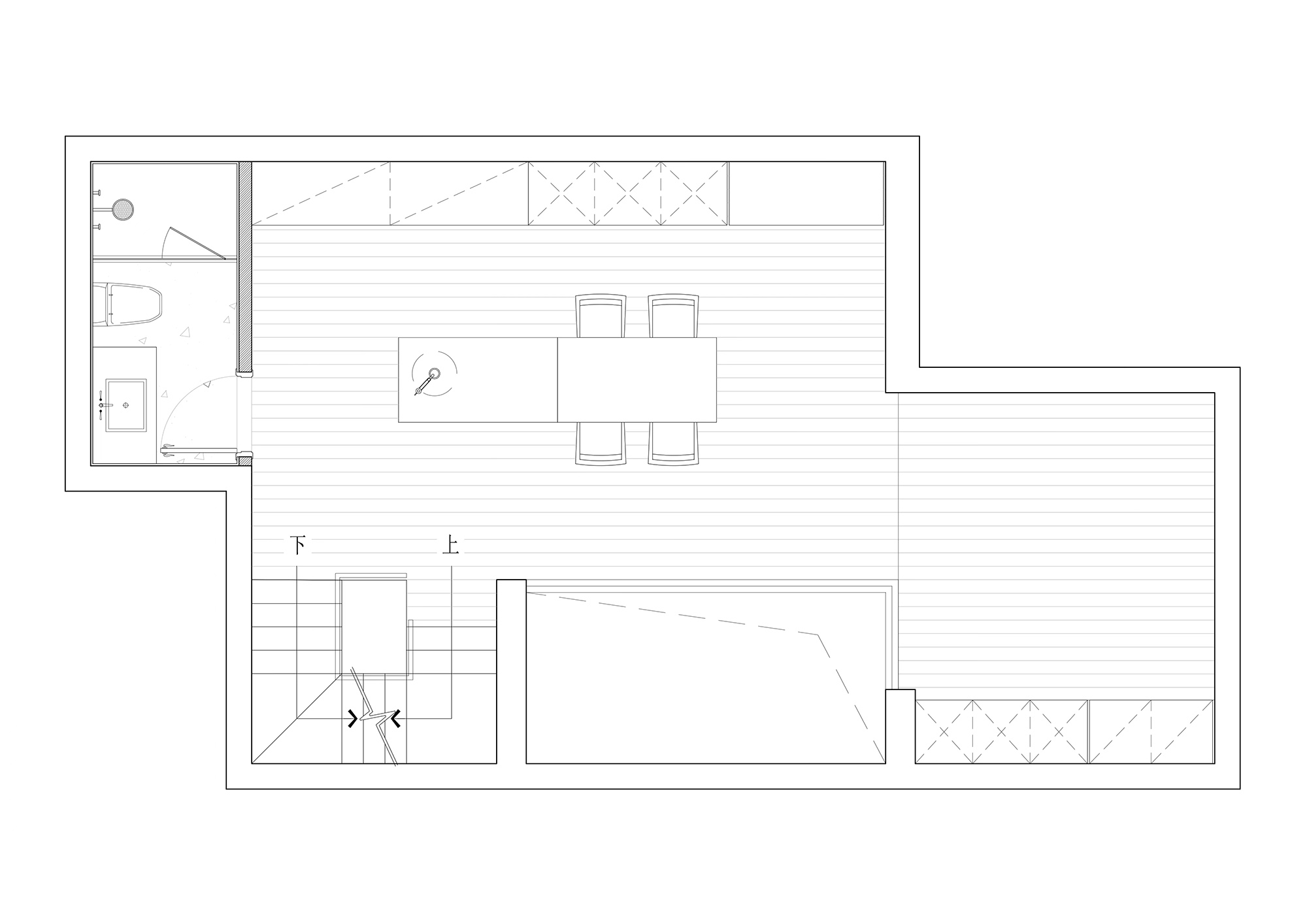
∇ 負二層平麵圖
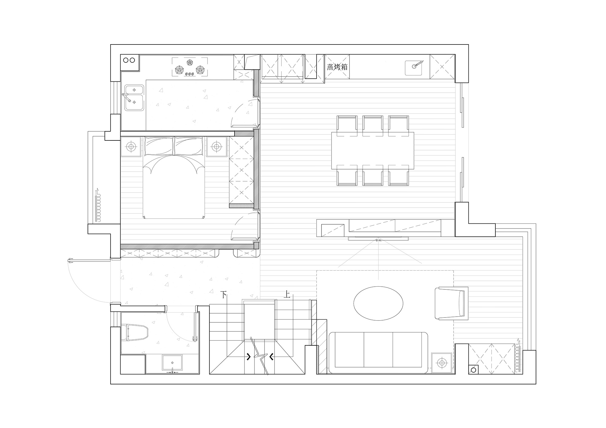
∇ 負一層平麵圖
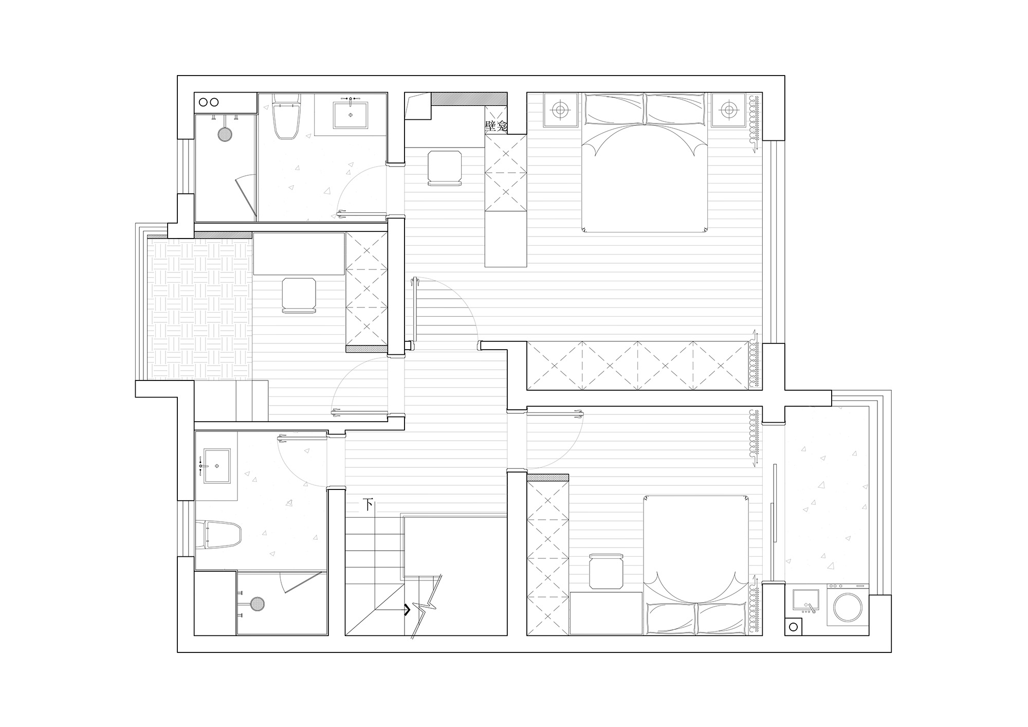
∇ 一層平麵圖
∇ 二層平麵圖
項目信息
項目地址|江蘇蘇州
項目麵積|350㎡
設計單位|一野設計
設計主創|朱震熙、石倩
攝影|馬利仁
一野設計
蘇州一野室內設計工程有限公司創立於2006年,是一家專門從事家裝、軟裝、商業空間設計的設計公司。17年來,憑借一批高水準的設計師,以良好的服務獨特的經營理念,在蘇州及周邊地區,乃至全國室內設計行業中贏得了很高的知名度和美譽度。










































