這次選址在深圳超級總部睿印中心的二層,是商場入口外立麵便可見的一個半開放鋪麵。
糖水作為廣東一帶的本土飲食方式,大多以市井街邊的售賣方式為主。“彬媽糖水”以獨立品牌身份在深圳超級總部睿印中心開設可以容納更多顧客的旗艦店,並提供更豐富的產品選擇。麵對更大的場地空間,結合品牌“如初的甜”的理念,我們提出“在院落裏,在甜裏”作為設計概念,以空間形態表達品牌獨特的氣質。
將室內空間當作一處聚合的自然院落展開布局,仿佛鄉野間的微型聚落高低有致。交疊的小房子自然形成外立麵的形態,通過轉角行至店前便可見院落重疊的全貌。
∇ 概念草圖
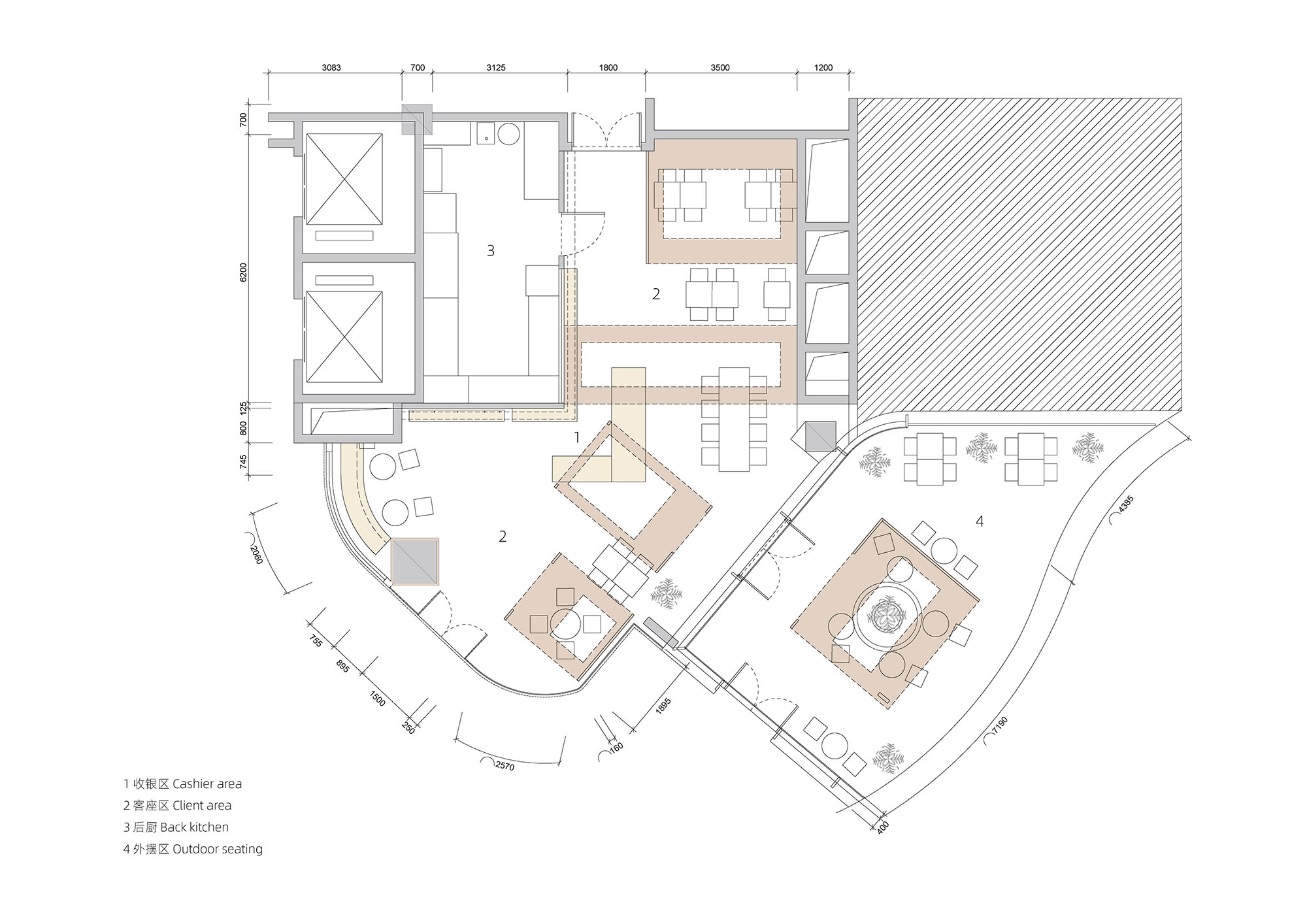
我們在室內空間中一共置入了四個開放的小屋,以形成聚集的院落組合。人的動線也隨之自然擺動。每個小屋下麵都布置有可座的區域:有圓桌、方桌、長桌等多樣的就餐選擇方式。
∇ 概念草圖
貫穿的小屋都是開放的抽象幾何形態,讓人在室內可以穿梭遊走。駐足停下每個角度都是不同的景觀。我們將每個小屋都結合功能性進行開窗與開洞處理,讓溫暖的燈進來、讓綠植進來,自然也吸引著顧客進來。
∇ 結構圖
室外的露台擁有更多的陽光和對流,因此在露台處也搭建出一個開放的小屋,布置更多的綠植讓人放鬆下來。小屋的中心營造出一個圓形花壇可賞可憩,背向而坐既可品甜亦可眺遠。
整體空間設計運用大量木材配暖色燈光與留白,旨在營造充滿溫度的空間感受與舒適的聚餐體驗。一方麵大麵積使用木材,另一方麵也引入了具有局部裝飾性的木格扇提升整體空間品質和細膩溫潤的感受。
人與空間相融成為流轉的風景,美好的體驗成為溫存的記憶。希望這處空間提供一份新的體驗:讓顧客在院落裏,在甜裏。
∇ 平麵圖
項目信息
項目名稱:彬媽糖水 超級總部店
項目時間:2023.03—2023.06
項目地點:廣東省深圳市南山區深灣一路與白石三路交彙處睿印中心2F
項目麵積:150㎡
設計方:勉強設計事務所
項目設計:黎俊波 唐文琦 餘思靜
空間攝影:日野攝影工作室

































