自由,是一種充滿偶得趣意的空間體驗
Central City Apartment, Shenzhen
“開闊的空間總會有一股野蠻生長的張力,提供更多變換的可能,那是一種無需刻意強調隻要身處其中便能體會得到的生命自由”,這是設計師Margie和Xinru關於“自由”在空間定義裏的理解,她們也恰如其分地將其詮釋於深圳中心區的一棟高層公寓中。
“Open space provides freedom of growth and opportunity for new possibilities. One immersed in the space should experience the freedom of living through creatively interacting with it.” This is what designers Margie and Xinru said in regards to the idea of “freedom” in space. They implemented this idea in a high-rise apartment in the central area of Shenzhen.
公寓主人身兼藝術家與企業家雙重身份,浸身於藝術的同時在事業上也頗有成就。公寓在她的計劃中應該是一個可以靈活多變的空間,既可以滿足團隊在此辦公的需求,也能成為團隊聚會娛樂的場所,以及主人自己的工作休閑空間。
The owner of the apartment has dual identity of being an artist and an successful entrepreneur in medical field. In her ideal world, she imagined the apartment being a flexible space that not only meets the needs of the team working, but also a place for business gatherings and entertainment, individual work and leisure.
因此,設計師在兼顧鬆弛感與辦公需求的前提下,削弱了公寓場景功能的邊界感,將其打造成一個可以隨意切換使用模式的自由空間,正如公寓主人在多重身份轉變間的遊刃有餘。
Therefore, on the premise of satisfying both leisure and work function, Margie and Xinru weakened the sense of boundaries defining a specific function. Transformed the space into one that switches modes at will, just like how the owner of the apartment change between multiple identities.
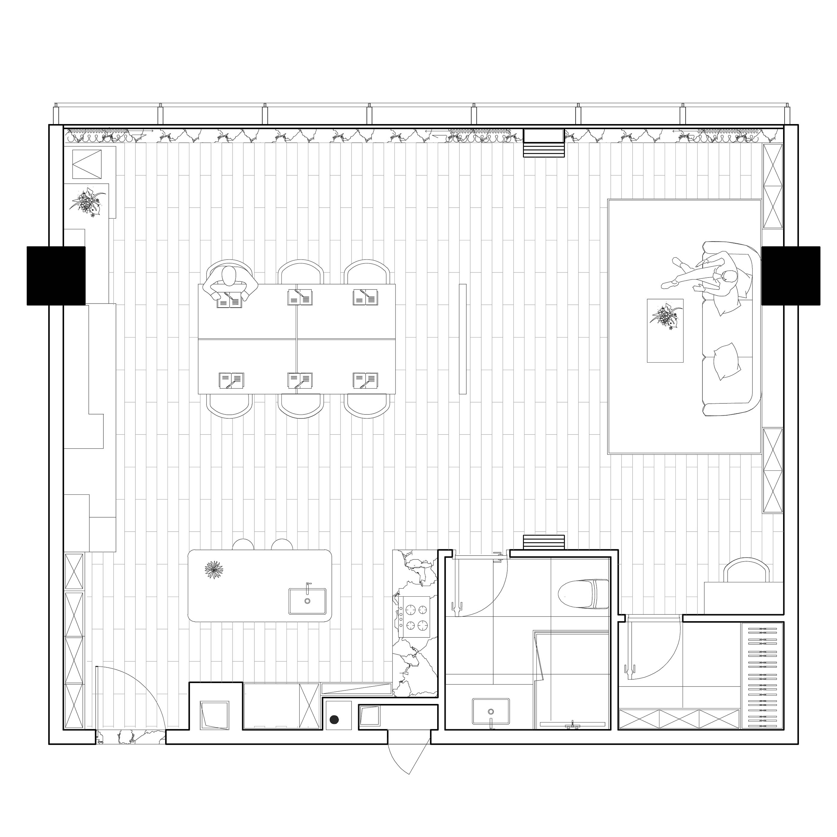
公寓總麵積為80平方米,設計師將空間全部打通,輕盈無障,自然光順著整麵落地窗延伸進來,營造了絕佳的光影氛圍也提亮了整體布局的開闊度。空間底色簡約基調柔和,暖色成為主角,承載著日常生活的溫柔平和,淺藍色的木飾與金屬軟裝作為點綴,為空間添加了一分靈動俏皮,宛如生命中那些不期而遇的小驚喜。
The total area of the apartment is 80 square meters. The designer opened up all the walls, setting the space free and light. Natural light extends along the entire floor-to-ceiling windows, creating an excellent light to shadow atmosphere, extending the openness of the overall layout. The background tone of the space is simple and soft, pastel colors with tints of blue carry out the gentleness and peace of daily life. The natural wood texture and metal decorations adds a touch of playfulness to the space, just like those unexpected encounter and surprises in life.
01 空間的自由
Freedom of space
設計師通過幾塊可自由拉伸的木板劃分空間場景,原本的空間秩序在推拉之間得到重組,生活與辦公的場域既能完全相融也能被明確分隔。暖白色與淺藍色的木飾麵成為了能在空間中穿梭的色彩,化作整個空間的氣口,公寓在各種變換之中吞吐出屬於自己的氣息。為了維持空間的呼吸感,設計師在幾個牆麵上都下足了功夫。以牆體為畫板,沿牆而設的休閑區以疏密有秩的結構分布著,通過立柱的隔擋自然地將區域劃分出多人與單人的休憩空間,布局不疾不徐讓整體節奏從單麵蔓延至整個辦公空間,選用淺色金屬材質製作的幾何體塊底座有效的減輕了該區域視覺上的堆積感,厚重消散於光影反射之中。
Scenarios are divided using flexible wood partitions. Original space is reorganized and defined as partition slides back and forth separating and joining living and work needs. Cozy white and blue becomes colors that shuffles in the space, giving the apartment unique vitality.
02 軟裝的自由
Transformable furnishing
想在一個收放平衡的空間中實現交互性,提筆落墨前既要顧全硬裝與軟裝間色彩情緒的呼應,還需遵循空間整體靈活性的主題,因此能自由行走的軟裝也是主角。公寓內的大部分軟裝配飾都是設計師基於空間整體的和諧性和便於移動為出發點精心挑選甚至專門為該空間設計定製的。
軟裝中的最大亮點是設計師根據客戶運動喜好和實際需求而設計的乒乓球桌。色彩和紋理獨特的木質台麵、乳白色的皮質網格、配色清新的桌腳,共同構成了這個獨一無二的專屬於客戶的多功能運動器械。
Flexibility and interaction between space and its user is considered throughout the design. Putting emphasis on vitality of space, the designer creates mobile furnishings that adapts to user’s different needs. Wheels, adjustable parts, switch and springs are customarily inserted in places to maximize mobility and surprises. The biggest highlight is a customized ping-pong table designed to match the user’s dual identity. Designer selects unique wood veneer with special dyed leather net to constitute this multifunctional “toy”.
乒乓球桌的滾輪和特殊環扣設計可以讓球台輕鬆地一分為二,搭配皮質網格,球台隨即變成兩張可供四人工作的辦公桌,以滿足小團隊的臨時辦公需求。
Custom ordered metal components allows the table to be easily separated and combined together. Specially crafted leather net transforms the table into ping-pong table, meeting and individual work desk.
公寓最裏麵被設計成舒適的生活區,隨手就能夠著的收納櫃,可以任意移動的邊幾和茶台,還有可供留宿的高級沙發床,隱藏於牆後的洗漱空間,每一處細節都是設計師從美學視角出發為客戶所勾勒的生活軌跡,都彰顯了生活的輕鬆自如。
The innermost part of the apartment is designed as a comfortable living area, with storage cabinets that can be easily accessed, side tables and tea tables that can be moved arbitrarily, transformable sofa beds for overnight stays, and washrooms hidden behind the wall. These details are the life trajectory outlined by the designer for the client to showcase the excitements and surprises in life.
工作、娛樂和生活,肆意間足以填滿這曠而不空的公寓。
Work, entertainment and living fulfills this apartment.
“在這裏,有一種像兒時進入遊樂場的放鬆自在,樂此不疲於各種趣味的擺弄之間”是客戶對這個空間的讚譽。這種自由多變宛如置身樂園的空間氛圍,能讓工作都變得充滿期待,場景的切換和交流之間靈感也在慢慢萌芽。
“Here, there is a kind of relaxation and joy like entering a playground when you were a child. You are never tired of playing with various toys and rides”. This free and changeable space, like childhood playground, enriches work full of excitement. Switching between scenes, the space inspires creativity, motivates communication and interaction with colleague, friends and furnishings.
整個空間的規劃,設計師從一開始就從空間的整體性和交互性作思考,去賦予空間生命力。結合建築本身的采光優勢和高層景觀,視線的通透讓整個場域有了比實際麵積更大的感官體驗,兼顧客戶對空間的需求和期待,空間內舍棄了大部分的固定軟裝搭配,通過人與物件之間的互動完成了生活、工作、娛樂各場景間的相互補充,不僅為居住者們提供了充滿偶得趣意的空間體驗,也為生活留出了更多塑造美的可能。
Designer tried to endow the space with life. Utilizing site advantage of high-rise scenery and abundant natural light. Transparency and boundless setting allows the entire apartment to have a larger sensory experience than its actual square footage. Taking into account the lifestyle of the user, designer abandoned the use of traditional fixed furnishings. The interaction between people and objects provides the occupants with an interesting space experience, and also leaves more possibilities for shaping a plentiful life.
∇ 項目設計概念圖 © X-ZOO Design
Conceptual diagrams © X-ZOO Design
項目信息
項目名稱|深圳深業中城6A公寓
項目麵積|80平方米
設計時間|2022
完工時間|2023
項目地點|中國 深圳
設計團隊|物托邦設計(深圳) X-ZOO Design
Instagram|xzoo_design
設計主創|魏心儒&趙夢笛
項目攝影|隋思聰
Project Name|Central City Apartment, Shenzhen
Area: 80 square meters
Design Time|2022
Completion Time|2023
Location: Shenzhen, China
Design team|X-ZOO Design
Instagram|xzoo_design
Chief designers|Xinru Wei, Margie Zhao
Photography|Sui Sicong































