該公寓位於加裏寧格勒地區皮奧涅爾斯基市一棟多層建築的一樓。公寓的主人專業從事空手道,ATM Interior 的設計師Tatyana Voevodina希望通過明亮的色彩來傳達這種情緒。
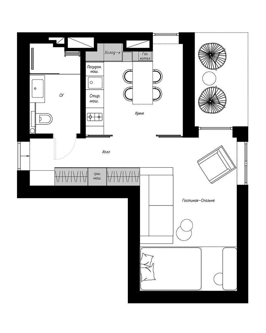
公寓麵積為30㎡,衛生間占地4.9㎡,狹窄而長的大廳為5.6㎡。由於房間本身的配置,這種布局幾乎不可能改變。隻能把大廳和臥室、廚房和大廳之間的隔斷拆掉。這樣可以提供更多的空氣流通,並可以擺脫狹窄的走廊。
另一個細微差別是公寓位於角落,有必要找到適合一切的解決方案。“對我們來說,將客戶的願望與場地的可能性結合起來非常重要。畢竟,設計師的任務不僅是畫出一幅美麗的設計圖,而且還要正確規劃一切,為每件事物找到合適的位置。”Tatyana Voevodina 說道。
牆壁選擇了耐磨油漆,地麵為工程橡木板。這一決定使得放棄暖氣片成為可能,浴室裏隻留下一個加熱毛巾架。延續這一主題,睡眠區由橡木貼麵膠合板製成。該項目的作者表示,自然色調使室內更加舒適。
∇ 平麵圖
版權聲明:本站所有文章除投稿授權發布外,其他文字內容均為原創,享有著作權保護,未經許可不得以任何形式進行轉載(包括且不限於:媒體、網站、公眾號等)。所有項目照片/設計圖形版權歸原作者所有。本站部分內容源自網絡公開資源或用戶分享,如若侵犯了原作者的合法權益,可聯係我們進行處理。























