內向推拿的沈陽店,選址於一棟底商裙房的三層,一層僅有一突出門頭,而三層近3000㎡的室內是“整齊”的大柱網空間,規則、空曠、限製條件少,如何將三層的空間“內向”設計,成為設計的難點。
The Shenyang Store of the Nissage SPA is located on the third floor of a business skirt house, the first floor has only a doorway, and the interior of the three floors of nearly 3000 square meters is a “neat” large column network space, rules, empty and fewer restrictions. How to design the “inward” space of the three floors has become the difficulty of this project.
∇ 中庭,atrium©張雷
縮影城市 Epitome city
我們希望客人在這個空間中有更豐富的空間體驗,除了進出相對私密的房間以外,還能夠在這個“縮影城市”裏麵遊覽。就像在城市中漫遊,除了功能各異的建築,還擁有豐富且有趣的公共空間。
We hope our guests to have a richer spatial experience in the three-level space, not only entering and leaving the relatively private rooms, but also to be able to visit the “microcosm of the city”. It is like walking through the city, in addition to the architectures with different functions, there are also rich and interesting public spaces.
∇ 設計概念分析,Design concept analysis©素造建築
於是我們將規則的室內空間重新規劃,讓體驗變得有“節奏”。從入口的“前院”,到中心的柱廊“廣場”,穿過連通空間的“巷道”,或是進入私人的“宅院”或是走進城市中的“公共建築”。在強調空間私密性的同時,又創造出開放互動的“公共空間”。
So, we rearranged the regular interior space to make the experience “rhythmic”. From the “front yard” at the entrance, to the “square” at the center of the colonnade, through the “laneway” connecting the Spaces, either into the private “house yard” or into the “public building” in the city. While emphasizing the privacy of the space, it also creates an open and interactive “public space”.
空間秩序 Spatial order
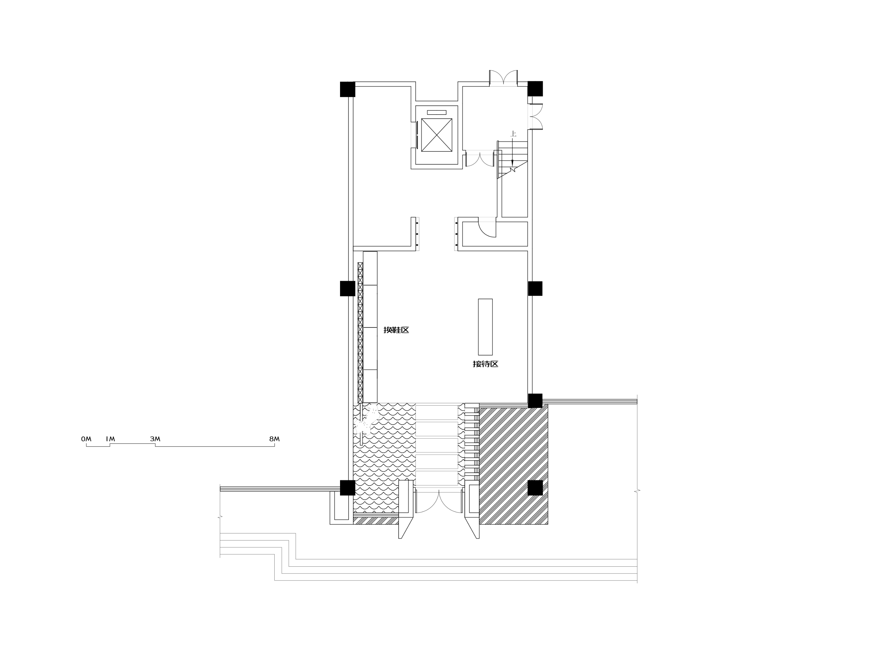
門廳:一層的空間分為內外兩個部分,外部空間用作接待,客人進入門廳後在左側換鞋,內部空間暨電梯候梯前室,顧客乘坐電梯上三樓。
Foyer: The space on the first floor is divided into two parts, the outer space is used as a reception, guests enter the foyer to change shoes on the left side, the inner space is the elevator waiting room, guests take the elevator to the third floor.
∇ 入口門廳,Entrance hall©張雷
∇ 換鞋休息區,Changing shoes lounge area©張雷
∇ 前台接待,Reception©張雷
過廊:像古羅馬的浴場那樣,沐浴者過拱廊,然後揭開金色空間的神秘麵紗。在這個空間外,黑暗被點亮,一個“洗禮池”正在等待遊客的到來,並在這裏享受全新的時光。
Corridor: Like the baths of ancient Rome, bathers pass through the arcades and uncover the mysteries of the golden space. Outside this space, darkness is lit and a “baptismal font” is waiting for visitors to arrive and enjoy a whole new time here.
∇ 走廊,Corridor©張雷
廣場:柱網空間的單一空間語彙被重新組織,在一係列的空間曲折與序列之上,創造了若幹新的空間節點。
Square: The single spatial vocabulary of the column network space is reorganized to create several new spatial nodes on top of a series of spatial twists and sequences.
∇ 小品,nodes©張雷
“巴西利卡”:三層的中庭,我們將其作為純粹的社交空間,外側用可放下的紗簾,增強空間的私密性,同時營造一種若隱若現的神秘感。
“Basilica”: The three-story atrium, which we use as a purely social space, has a curtain on the outside to enhance the privacy of the space, while creating a sense of looming mystery.
∇ 中庭空間,Atrium space©張雷
浴場:三層空間的南北向中軸線,端頭設淋浴室和衛生間,並將公共空間置於軸線兩側,讓體驗變得有“節奏”。
Baths: The north-south central axis of the three-story space, with a shower room and a toilet at the end, and the public space is placed on both sides of the axis, so that the experience becomes “rhythmic”.
∇ 淋浴間,Shower cubicle©張雷
∇ 衛生間,rest room©張雷
餐廳:客人洗浴放鬆後便可前往餐廳,飽餐一頓以滿足口腹之歡。
Restaurant: After taking a bath and relaxing, guests can go to the restaurant and have a full meal to satisfy their appetite.
∇ 餐廳,restaurant©張雷
“禮拜堂”:後勤空間原本有一樓梯間,拆除後形成一個天然的拔高空間,我們將其預留出來並作為冥想空間。為整個按摩空間增添一絲神性的光輝。
“Church”: The logistics space originally had a stairwell, which was removed to create a natural elevated space, which we used as a meditation space. Add a divine luster to the whole massage space.
∇ 冥想空間,Meditation space©張雷
氛圍營造 Atmosphere creation
按摩室內部猶如一個個山洞,這是室內空間設計與拓撲學結合的產物,使人產生獨特的“洞穴式”空間體驗。人們在這樣的室內空間中,可以遠離城市喧囂和壓力,享受當下。
The massage room is like a cave, which is the product of the combination of interior space design and topology, so that people have a unique “cave-like” space experience. In this indoor space, people can get away from the noise and pressure of the city and enjoy the moment.
∇ 客房,Guest room©張雷
按摩室內的牆壁上設置透光格柵,將走廊和室外的陽光透過牆壁灑向室內,作為裝飾和引導。
The walls of the massage room are equipped with light transmission grille, which sprinkle the corridor and outdoor sunlight through the walls to the interior as decoration and guidance.
∇ 燈光氛圍細部,Lighting atmosphere details©張雷
暖黃的燈光在腳下延伸,氤氳平緩舒適的氛圍,圓潤的曲麵,像是被擁抱、包裹、放鬆,在這裏避世片刻,身心被治愈。
The warm yellow light extends at the foot, the dense and comfortable atmosphere, the rounded surface, like being embraced, wrapped, relaxed, here to escape for a moment, the body and mind are cured.
∇ 建築細部,Architectural details©張雷
踏入店內,仿佛穿越回了古老的時空。昏暗的燈光、磚石牆壁、木質家具,所有元素共同構成了古羅馬浴場般的神秘氛圍。這裏沒有城市喧囂的聲音,隻有輕柔的樂曲和滋潤的茶香,帶來無與倫比的沉浸體驗。
Step into the store, as if through the ancient time and space. Dim lighting, brick walls and wooden furniture all elements add up to a mysterious atmosphere like an ancient Roman bath. There is no noise of the city, only soft music and moist tea smell, bring unparalleled immersion experience.
我們在繁雜的塵世中,辟出一塊淨土的同時,也創造了一個窗口,在卸去滿身的乏憊的同時,還可以從這裏窺視你熟悉的城市的尋常巷陌。走出了純粹的按摩推拿空間,真正融入沈陽的日常生活。
When we create a pure land in the complicated world, we also create a window, from which you can peek into the ordinary alleys of the city you are familiar with while unwearing your tired body. Out of the pure massage space, really into the daily life of Shenyang.
∇ 一層建築平麵,The first floor building plan©素造建築
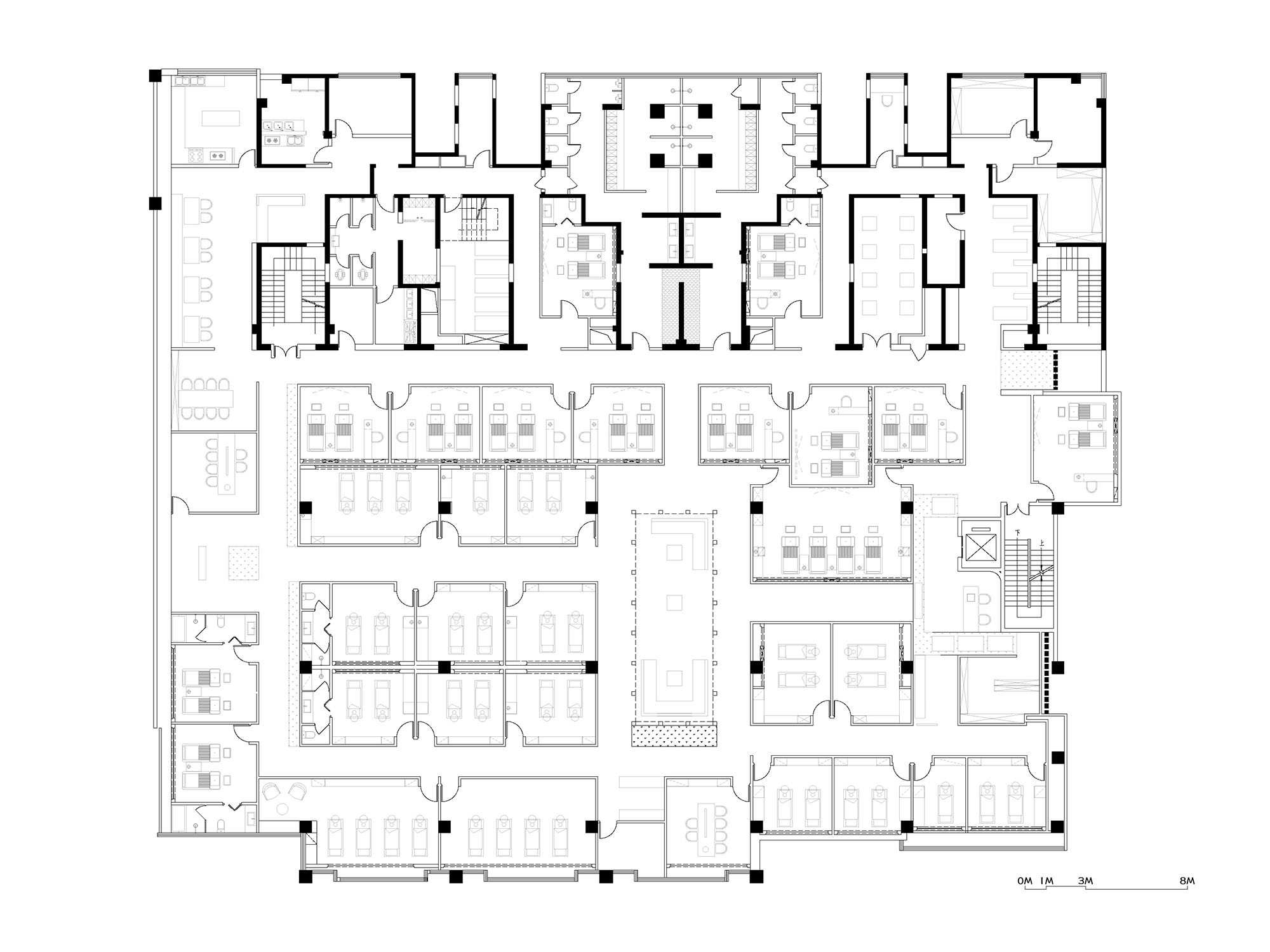
∇ 三層建築平麵,The third floor building plan©素造建築
∇ 建築立麵,Building elevation©素造建築
項目信息
項目名稱:內向推拿 沈陽店
項目類型:室內設計,建築改造
項目地點:遼寧省沈陽市和平區長白東路23號
設計單位:素造建築
設計團隊完整名單:尹曉文 董文 杜傑 崔瑩 郭旌 張雯 趙陽 馬麗娜 趙勝超 王思君 俞淏文 楊宇航
業主:內向推拿
建成狀態:建成
設計時間(起迄年月):2021.07——2021.10
建設時間(起迄年月):2021.11——2022.09
建築麵積(平方米):2184.27㎡
攝影師:張雷





































