Nukak 是一個將廢棄橫幅、風箏衝浪帆、輪胎內胎回收製成包袋和配飾的品牌。自然而然地就變成了具有各種圖案和圖形的產品,一個獨特的設計產品就誕生了。
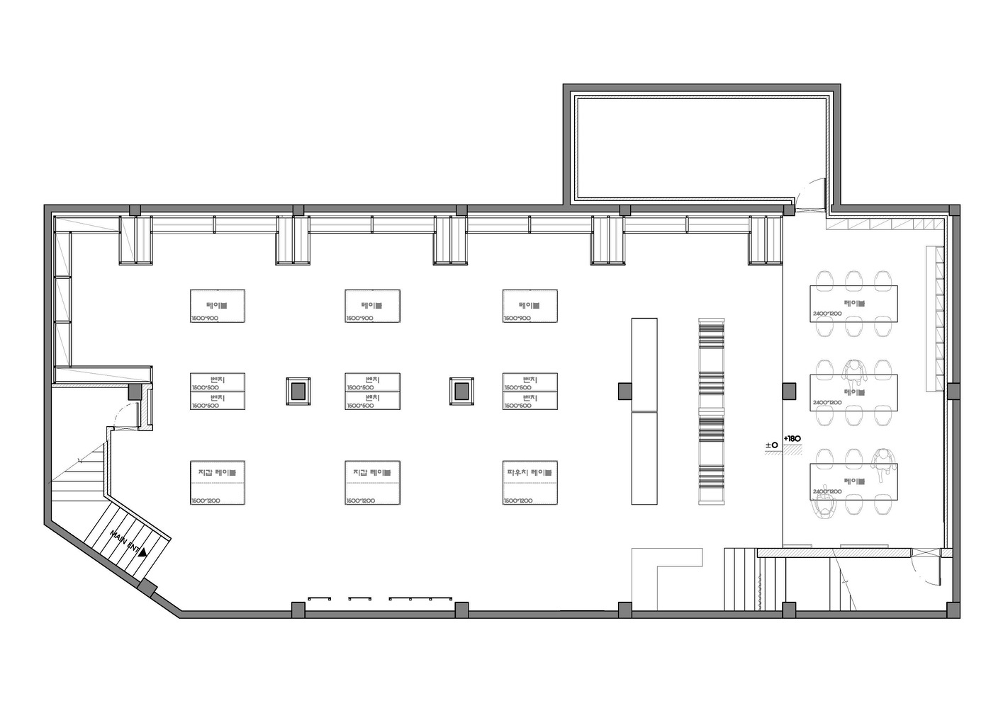
由於產品的材質多種多樣,尺寸也多種多樣,所以展架的形狀是設計的出發點。鋁型材是工業現場廣泛使用的材料,根據用途有多種類型的零件和尺寸可供使用。利用這一點,根據產品展示方式和商店經營行為來配置家具。通過對木材的適當組合,結合型材的機械感來接近家具。牆壁還采用可調節高度的型材建造,以便根據產品組的展示做出反應。
Nukak的特色之一是可以用從商店直接挑選的材料製作配件。由於定製區是它區別於其他商店的地方,因此通過麵光增強了空間的力量。家具可以選擇材料,也可以利用這些特性來設計功能性的家具。
∇ 平麵圖
版權聲明:本站所有文章除投稿授權發布外,其他文字內容均為原創,享有著作權保護,未經許可不得以任何形式進行轉載(包括且不限於:媒體、網站、公眾號等)。所有項目照片/設計圖形版權歸原作者所有。本站部分內容源自網絡公開資源或用戶分享,如若侵犯了原作者的合法權益,可聯係我們進行處理。

































