疊加生成的係統性
SomeThoughs認為品牌的大量展陳與設計師的創意表達不一定是對立麵。當設計師正視品牌的運營需求,展陳的商品也可以被理解為“裝飾材料”,而被設計過的型材則成為某種規格。通過對規格的疊加將局部間的關聯性與商品的展陳進行整合,在有序、係統的規格中滿足品牌零售所須的靈活性與豐富性。
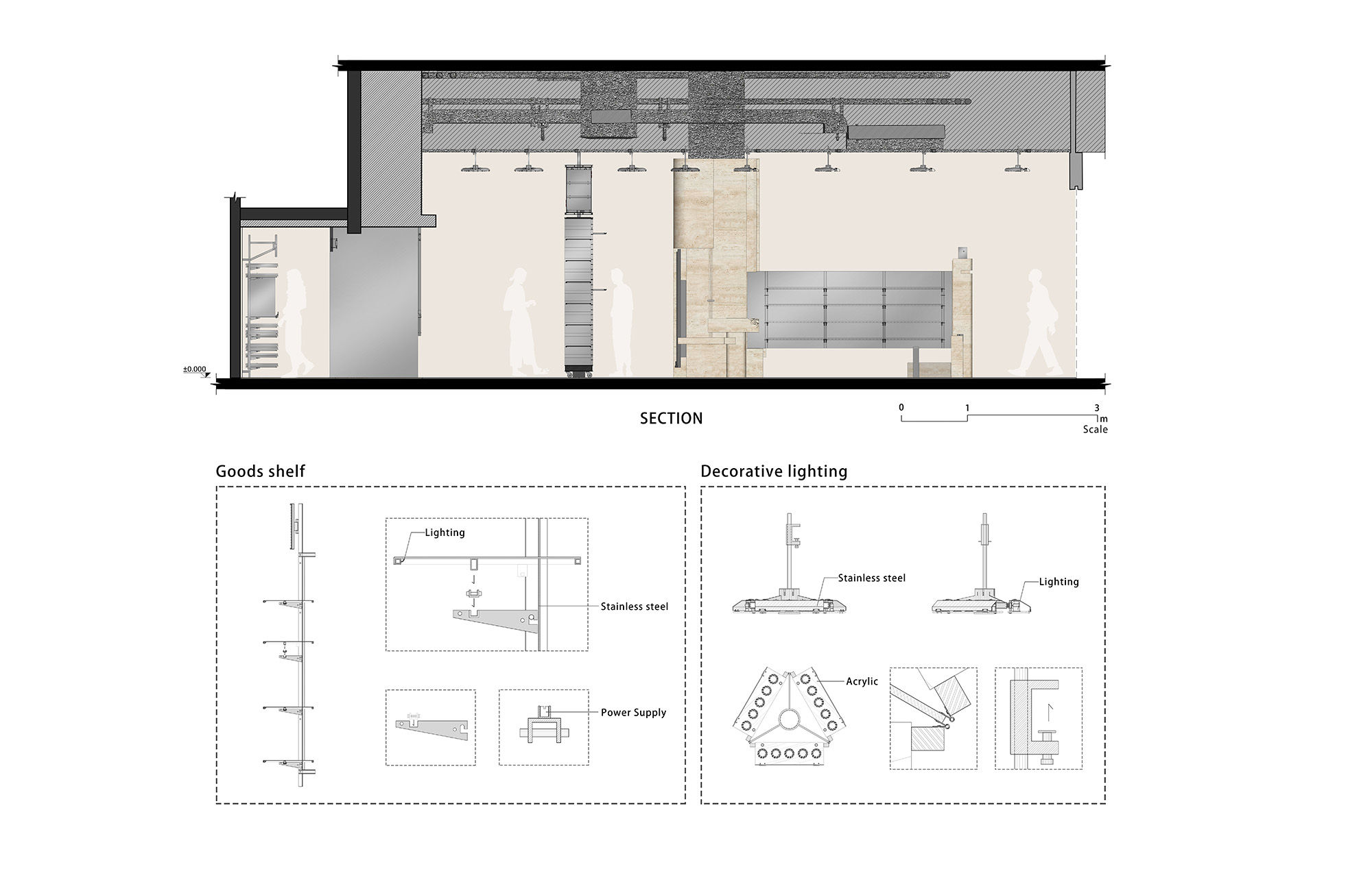
∇ 陳列道具、貨架的使用細節
∇ 不同展示情景下,貨櫃可根據應季需求轉動
∇ 概念店入口
∇ 入口處空間及室內陳列區域
∇ 空間圖解|Some Thoughts
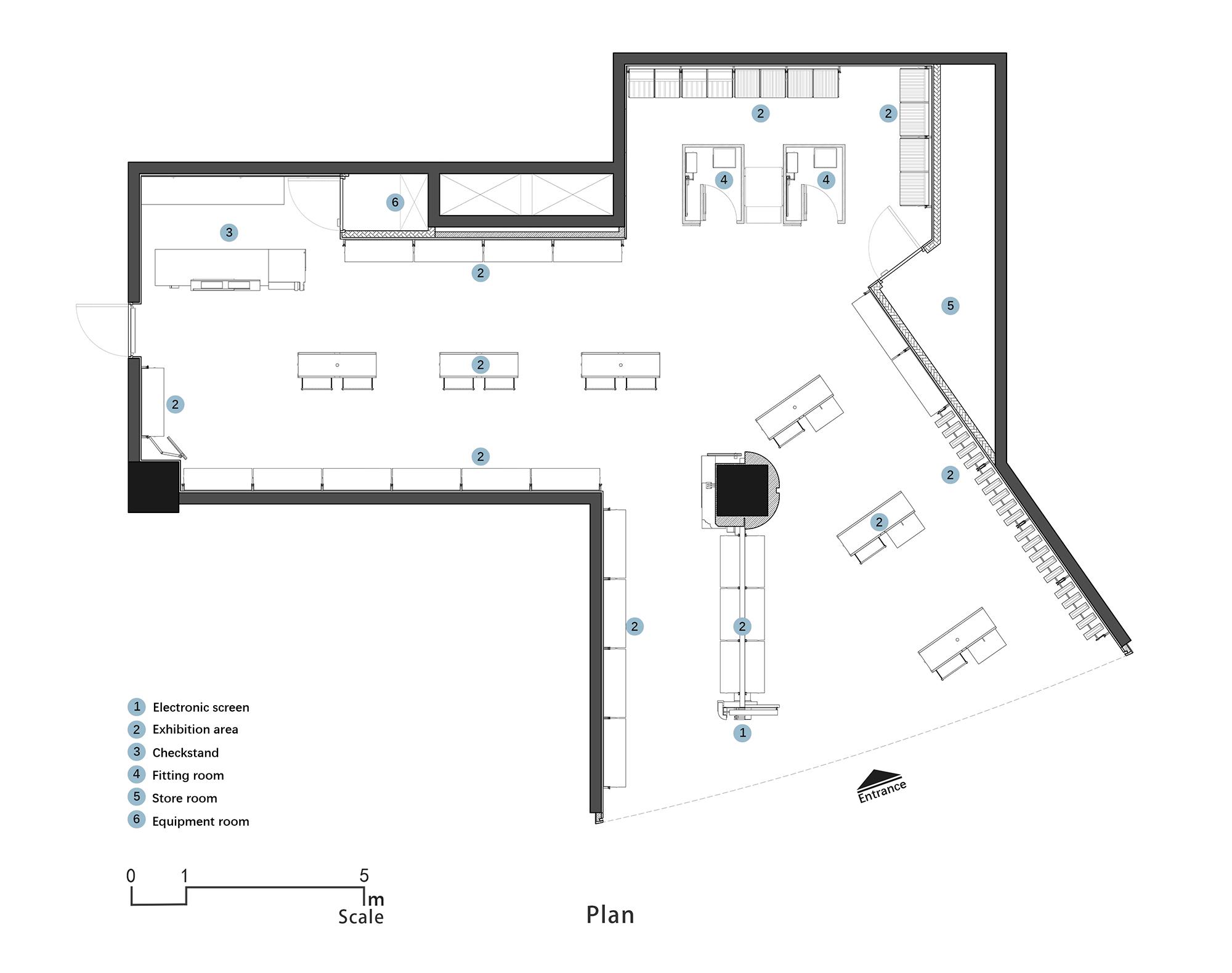
設計這個項目時,我們將兩條直線交錯,在空間中等分出六個重複的單元。而它的正反麵為兩種不同的切換模型,通過角度旋轉,為季節性產品的陳列提供了最優的展陳方案。我們希望以最簡單的單元,對空間做最少的幹預,去達成大眾、場地、陳列的有效互動。
∇ 貨架圖解|Some Thoughts
∇ 貨架轉動使用情景
∇ 室內空間
∇ 試衣間
∇ 貨架及材料細節
∇ 室內空間
將工作的重心從整體空間的大秩序轉移到局部之間的小秩序,通過對小秩序的疊加構建出新的設計形式。將局部之間的相關性保持著嚴格的秩序,從空間的視角觀察卻又無序可循。在包含各種矛盾的協同性中,一種類似“社區”一樣具有某種接納能力的場所就此應運而生。
∇ 收銀區域及局部細節
∇ 貨架材料細節
∇ 局部陳列道具材料細節
∇ 貨架材料
∇ 軸測圖|Some Thoughts
∇ 平麵圖|Some Thoughts
∇ 剖麵圖|Some Thoughts
項目信息
項目名稱:Bananain-蕉內概念店
項目地點:上海市靜安區嘉裏中心南區SB1層21號
空間與陳列設計:Some Thoughts空間設計工作室
工作室網站:somethoughts.cn
媒體問詢:press@somethoughts.cn
主持設計師:李京澤
設計師:劉金瑋、金強
項目業主:江西蕉內科技有限公司
主要用材:肌理漆,亂紋不鏽鋼,U型鋼,不鏽鋼格柵,洞石,微孔水泥板(主要用材均由上海進朋建設工程有限公司提供)
室內麵積:90㎡
設計時間:07/2022-10/2022
建造時間:10/2022-12/2022
施工單位:上海進朋建設工程有限公司(硬裝+道具)
攝影:SFAP
撰文及圖紙由Some Thoughts提供








































