這間36㎡的公寓其用途長期以來一直不確定。顧客不知道他是否會將其出租、修理後轉售,或者其中一名家庭成員會居住其中。Planka 事務所的Alexey Sergeev 表示:“我們的任務是創造一個中性、時尚的室內,適合任何追求舒適感的人,並且可以輕鬆通過裝飾進行翻新。“
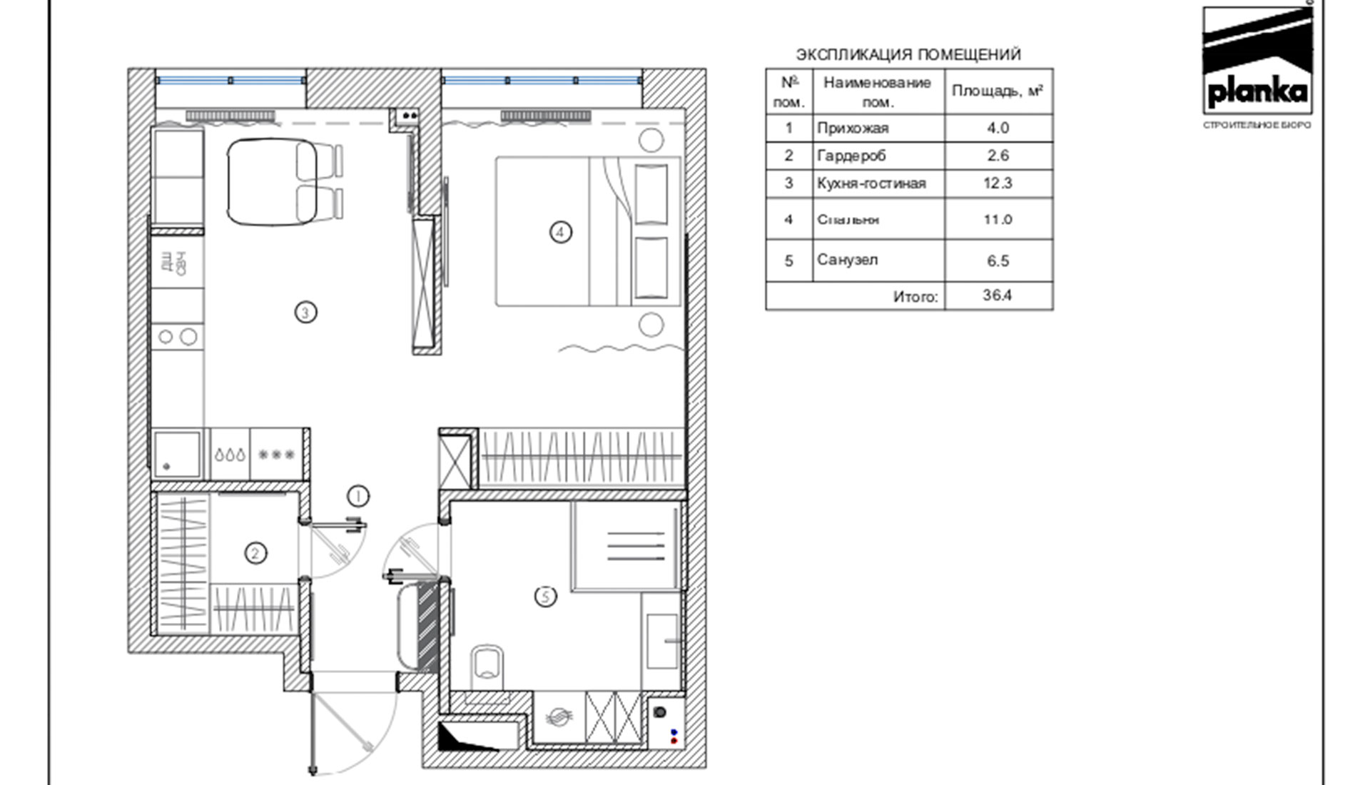
公寓布局方正,麵積僅36㎡。規劃有入口大廳、浴室、廚房-餐廳、臥室,甚至在入口處還可以安排一個單獨的更衣室。創建一個單獨的更衣室後,設計師去掉了這個區域的櫥櫃,隱藏了儲藏室。將壁龕中的內置架子保持開放狀態。
∇ 平麵圖
版權聲明:本站所有文章除投稿授權發布外,其他文字內容均為原創,享有著作權保護,未經許可不得以任何形式進行轉載(包括且不限於:媒體、網站、公眾號等)。所有項目照片/設計圖形版權歸原作者所有。本站部分內容源自網絡公開資源或用戶分享,如若侵犯了原作者的合法權益,可聯係我們進行處理。
























