Bronte項目是一次獨特的合作,J Corp Constructions、客戶和建築商委托 Matters + Made 來完成他們的住宅。該工作室的任務是為年輕家庭創造一個實用且優雅的住宅,同時確保它與周圍環境相關並且足夠中立,以吸引未來的潛在買家。憑借所有相關方之間的高度信任、通力合作,取得了令人驚歎的成果。
在整個項目中,Matters & Made優先考慮年輕家庭的需求,同時也牢記該房產的潛在轉售價值。最終的結果是一個與周圍環境無縫融合的住宅,為家庭提供舒適且實用的生活空間。
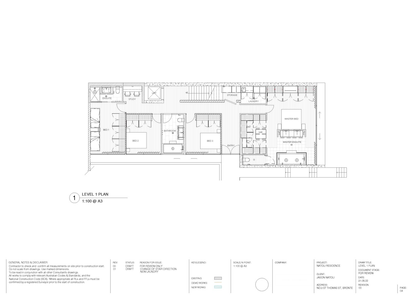
∇ 平麵圖
版權聲明:本站所有文章除投稿授權發布外,其他文字內容均為原創,享有著作權保護,未經許可不得以任何形式進行轉載(包括且不限於:媒體、網站、公眾號等)。所有項目照片/設計圖形版權歸原作者所有。本站部分內容源自網絡公開資源或用戶分享,如若侵犯了原作者的合法權益,可聯係我們進行處理。
































