新酒店位於第比利斯老城區的曆史區域內,占據著重要的空間。這條蜿蜒曲折的道路被稱為“街道廣場”,是這座城市最古老的遺跡之一。它是眾多曆史悠久的商隊和手工藝街道的重要通道。
同時,它也是繁華的交通動脈和公共聚集區。在其範圍內,一係列公共職能結合在一起,形成了種族、宗教和跨文化的多樣性。這種錯綜複雜的馬賽克作為一個標誌性特征,巧妙地融入了建築的核心,而建築本身也采用了讓人想起 20 世紀 70 年代的馬賽克風格。
指導酒店建築和室內設計的核心目標是為這一曆史引入新的維度,無縫地融入和反映充滿活力的環境。新的建築取代了 20 世紀 80 年代的行政大樓。拆除前建築的理由源於這樣的認識:將其改造成一家成熟的酒店需要擴建,這可能會破壞曆史環境的規模。相比之下,新建築延續了老城的建築遺產。它呼應了反映古代街道交叉處尖角的結構傳統。從這些有利位置,人們可以同時欣賞麵向街道的雄偉外觀和傳統裝飾的內部庭院。
∇ 區位圖
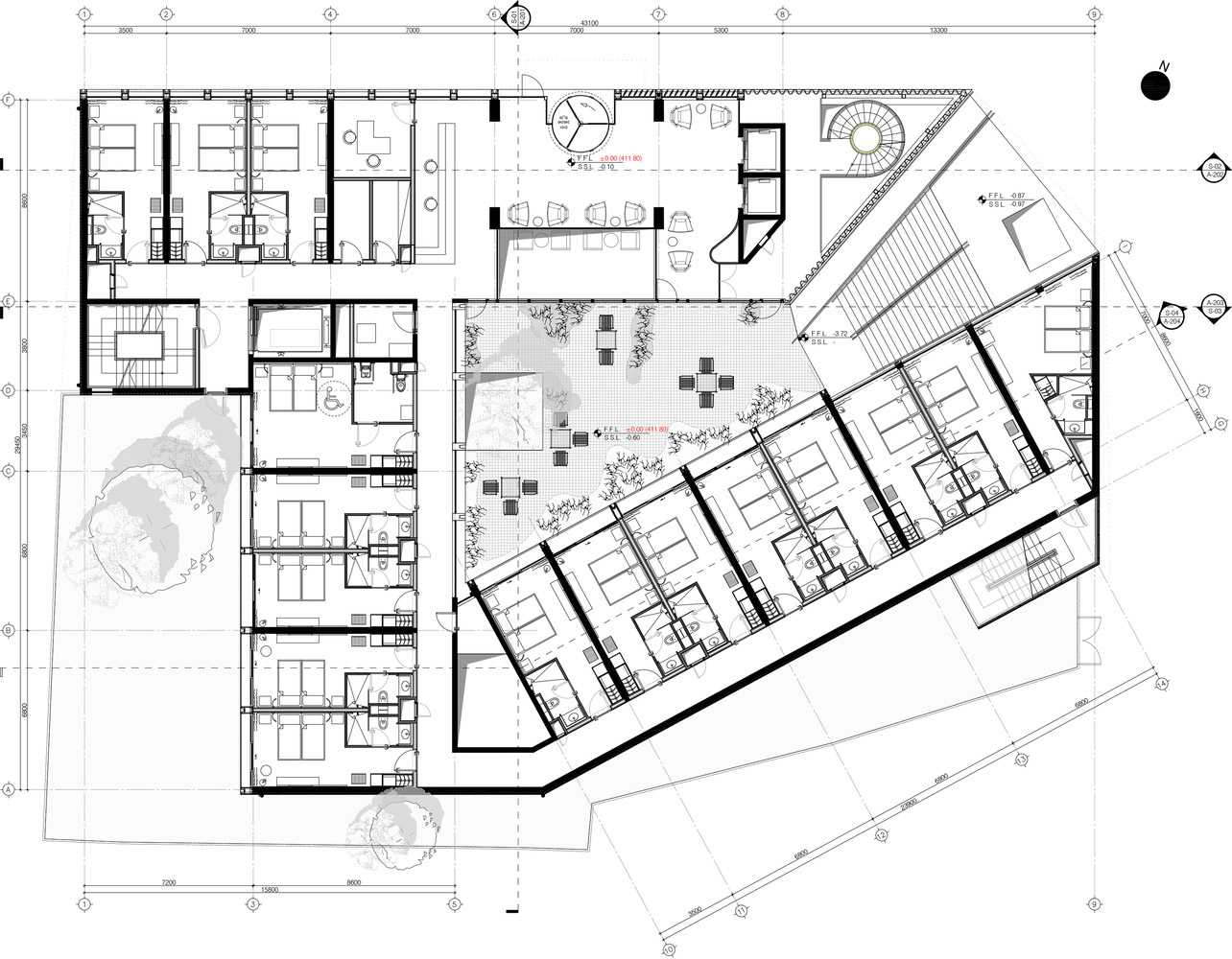
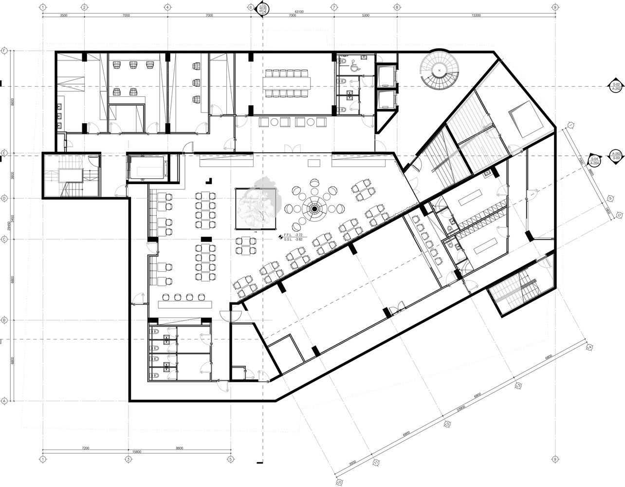
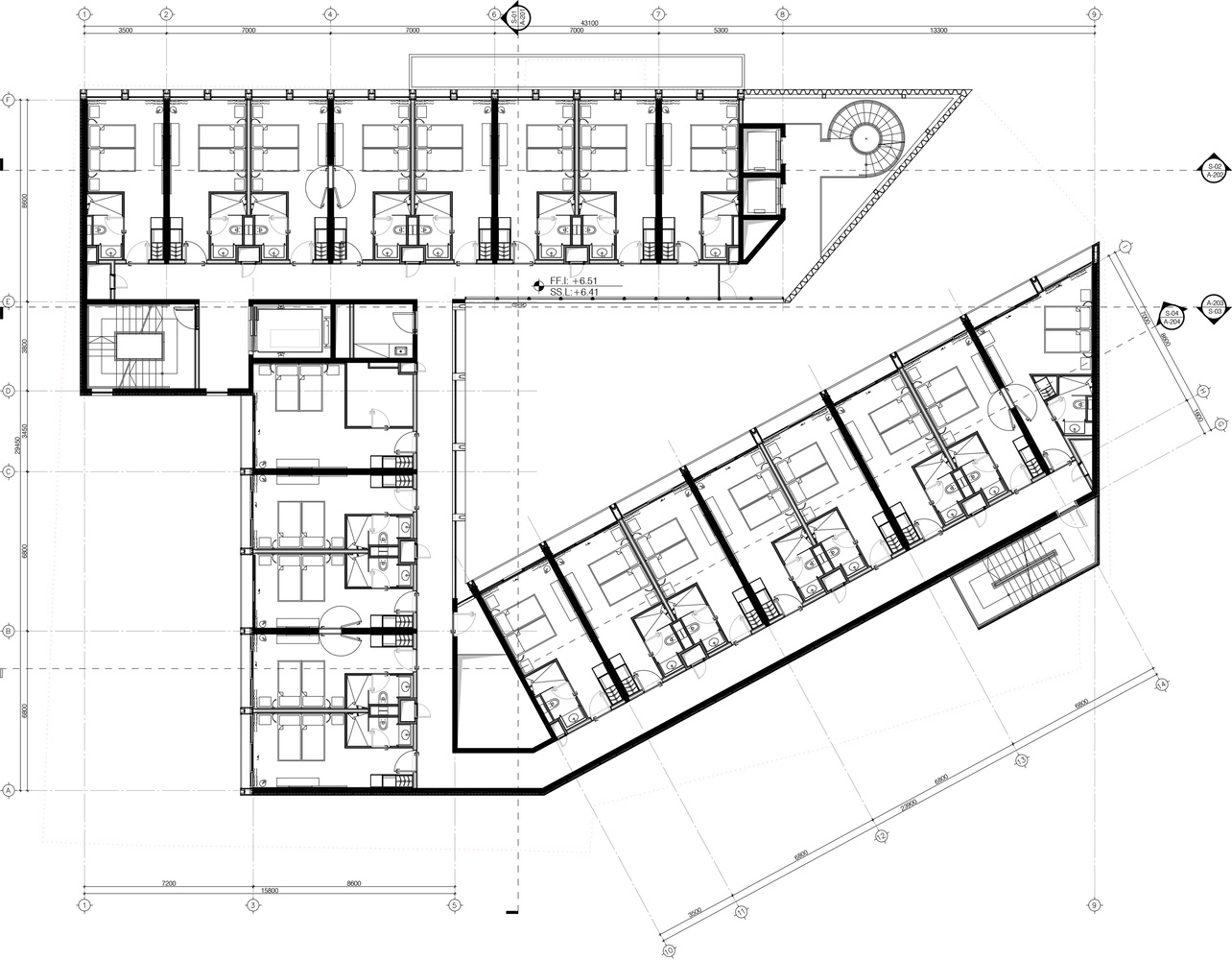
∇ 平麵圖
∇ 分析圖
版權聲明:本站所有文章除投稿授權發布外,其他文字內容均為原創,享有著作權保護,未經許可不得以任何形式進行轉載(包括且不限於:媒體、網站、公眾號等)。所有項目照片/設計圖形版權歸原作者所有。本站部分內容源自網絡公開資源或用戶分享,如若侵犯了原作者的合法權益,可聯係我們進行處理。






































