該住宅位於上海陸家嘴,是一個公寓房改造項目,建築套內麵積42㎡。設計的主要目的是在有限的空間裏解決委托人對居住、音樂和辦公的需求等。在空間設計上,去除多餘的裝飾,專注在空間的功能上,最大化地提升動線和增加采光。材質上主要用胡桃木,結合自然的光線打造自由舒適的空間體驗。利用極簡而又具有秩序感的設計手法,滿足功能的同時更突出空間的美感。
∇ 軸測圖
界定空間的牆
設計師在空間內置入了兩麵疊放的牆體,臥室區和活動區在空間上就被區分出來了,臥室區保留了一定的隱私,同時也提高了空間的開放感和流動性。
陽光透過百葉簾灑進房間,灑到書桌上,房間的主人可以在這裏看書、製作音樂和撫琴,不受外界幹擾,擁有專屬的音樂創作空間。
空間內統一選擇了黑胡桃材質,與古琴的深邃呼應,為空間增添了一份古樸雅致。
開放式廚房、餐桌和卡座式沙發的一體化設計,更加節省空間,也讓整體空間更加和諧。
洗漱區左側牆體采用弧形,弱化了牆體的尖銳感,視覺上也達到了延伸空間的效果。對應弧形牆體上方設置開窗,增加衛生間采光。
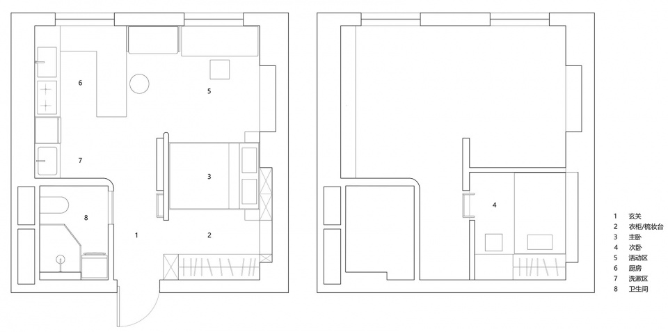
∇ 一層與夾層平麵圖
項目信息
項目名稱:古琴之家
項目設計:申成
項目地址:上海陸家嘴
建築麵積:42㎡
項目設計:2022.12-2023.1
項目施工:2023.2-2023.7
項目攝影:立明
施工單位:上海讚歌建築工程有限公司
版權聲明:本站所有文章除投稿授權發布外,其他文字內容均為原創,享有著作權保護,未經許可不得以任何形式進行轉載(包括且不限於:媒體、網站、公眾號等)。所有項目照片/設計圖形版權歸原作者所有。本站部分內容源自網絡公開資源或用戶分享,如若侵犯了原作者的合法權益,可聯係我們進行處理。


























