DI_Telegraph是建築師Ivan Rerberg 在1927年建造的,隻使用了幾十年就變成了建築紀念碑。中央電報不同尋常的周邊結構帶有構成主義者和現代主義者特色,斯大林時代的產物。建築最初是用來發送、接受電報和提供其他模擬電信服務。當時滿屋子都是設備,運行的設備散發出大量的熱量,所以建築的天花板足有7米高。在建築師改造之前,這棟建築已經被廢棄8年,所以首要任務並不是翻新,而是恢複。在房子中間的空間內沒有牆,隻有少數支柱,窗戶失修多年,木質框架漆了幾遍,貼滿了廢紙。
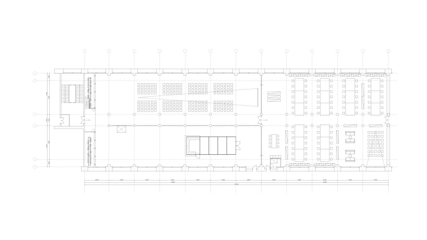
這個項目的主要概念就是將空間恢複到原來的狀態,磚柱、混凝土柱、天花板和粗糙的木質外殼痕跡都是1920年代的元素,80年的木質結構就是這座建築的曆史印證。空間氛圍幾個部分,第一部分是毗鄰入口的的教育研討室、會議室、展示區和其他公共活動區。大廳內有良好的收音效果,能同時容納500人;還有一部分就是小型咖啡廳,緊鄰著的就是玻璃和金屬簡單組成的涼亭;另一部分就是帶有單獨入口的透明會議室;最後的區域是用玻璃隔斷獨立出來的,留作聯合辦公的區域,在500平方米的空間內有100個桌子。靈活性是這個空間的關鍵優勢,這就是為什麼所有的家具都是可拆卸的,而且大部分都帶有輪子。
Photos © Ilya Ivanov
版權聲明:本站所有文章除投稿授權發布外,其他文字內容均為原創,享有著作權保護,未經許可不得以任何形式進行轉載(包括且不限於:媒體、網站、公眾號等)。所有項目照片/設計圖形版權歸原作者所有。本站部分內容源自網絡公開資源或用戶分享,如若侵犯了原作者的合法權益,可聯係我們進行處理。



























