Doronina Design Studio設計了這間75㎡的小公寓。供一位年輕人使用,他是公司的高級經理。該項目的整個概念是在與客戶密切合作的基礎上建立起來,他們欣賞空間的美感和清潔度。
這間公寓的優點之一是大浴室。沿著牆壁的整個長度的鏡櫃在視覺上擴大了這個空間,並在立麵後麵隱藏了一個存放家用化學品、運動服、活動梯子和熨燙係統的地方。來自ASKO品牌的布草護理係統也擺放在這裏:洗幹一體機、衣物烘幹櫃。公寓的內部是一個平靜的島嶼,您可以在這裏躲避大都市的喧囂。這個想法反映在藝術家Dmitry Kalistratov的畫作《獨白》中,立方體象征著不願意或不可能交流。通過在整個公寓中使用相同的裝飾材料來實現單色和極簡主義的內飾。在地板上 – 清漆下的微水泥,以及在牆壁和天花板上 – 類似質地的石膏。
大多數家具都是根據Yuliana Doronina的草圖定製。例如,由人造石製成的帶有三層玻璃腿的吧台和咖啡桌。公寓的亮點是一張石椅,專為客戶打造。為了舒適,設計師製作了一個測試框架,嚐試了不同直徑的彎曲。椅子旁邊有一個來自俄羅斯品牌Concretika 的花盆,裏麵裝滿了石頭和幹樹枝。
客戶的完美主義使得在項目中使用透明櫃成為可能。它們的填充物經過深思熟慮,所有西裝和襯衫都可以整齊地掛起來,而且可以隨意取用。單獨提供了一個用於放置褲子、領帶和鞋子的隔層。客戶喜歡摩托車,所以客廳的部分壁櫥裏裝飾著摩托車頭盔。另一個年輕人彈鋼琴很有天賦,他們也在室內找到了合適的位置。
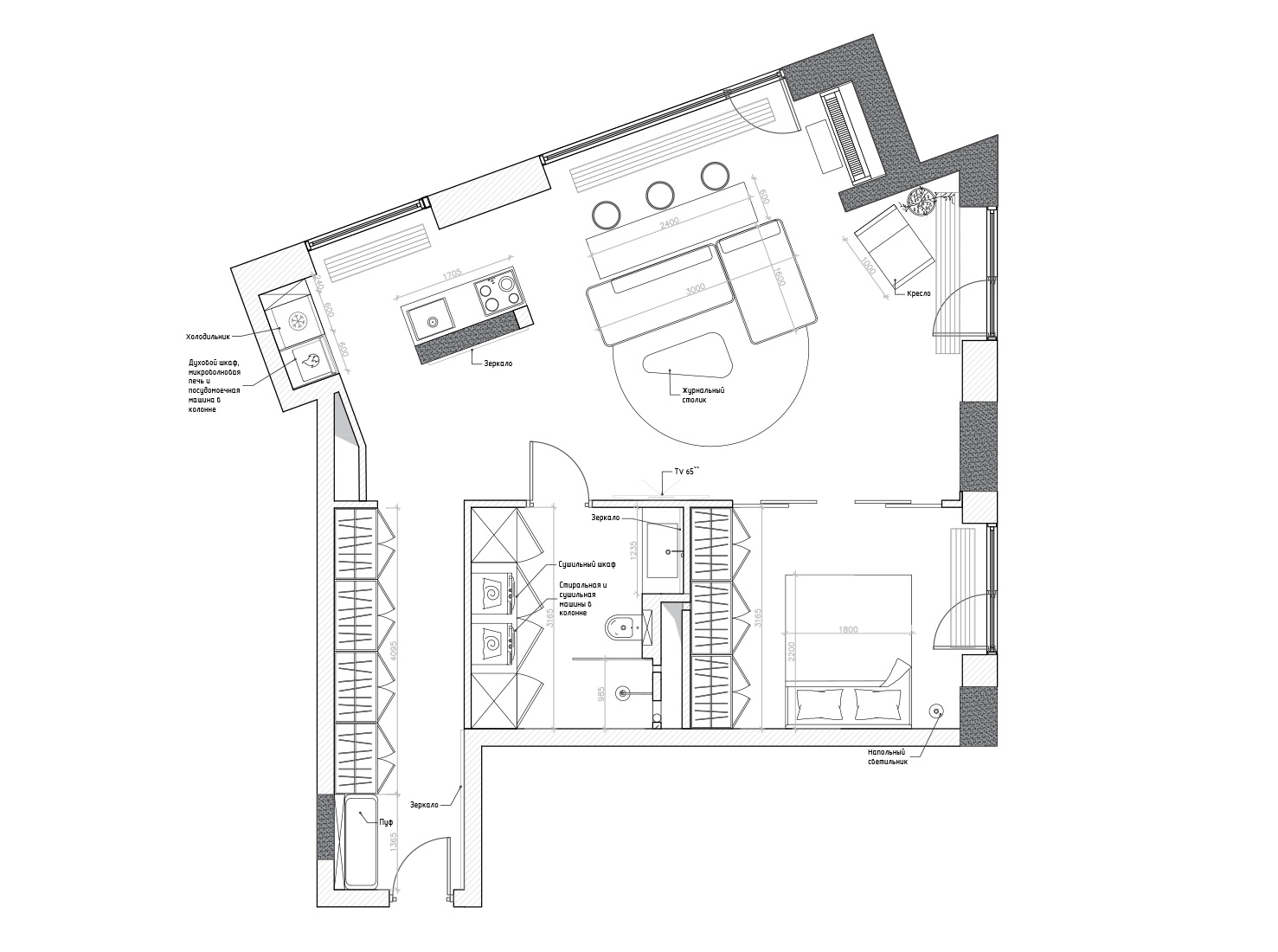
∇ 平麵圖
版權聲明:本站所有文章除投稿授權發布外,其他文字內容均為原創,享有著作權保護,未經許可不得以任何形式進行轉載(包括且不限於:媒體、網站、公眾號等)。所有項目照片/設計圖形版權歸原作者所有。本站部分內容源自網絡公開資源或用戶分享,如若侵犯了原作者的合法權益,可聯係我們進行處理。


























