在上海,生活化的街道更具有社交屬性。3½的新店坐落於太原路上,對於SomeThoughts來說,這是我們明顯地尋求平衡性表達的項目。在我們的想象中,3½應該具備包容性的同時又具備商業的多樣性。
3½的外立麵在街道擁有相當大尺度的展麵,但對於材料、入口以及店招的設計,我們選擇了最為克製的表達。希望將建築隱匿於街道,以一種近乎自然的狀態迎接每一位訪客。
入口處的空間,我們將其設置為“稍作停頓”的狀態。希望訪客在產品體驗之前有一個情緒的停留,並預示著接下來全新的感官體驗。
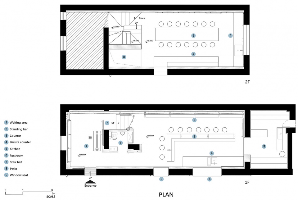
所有的功能組織及動線都將圍繞“對談”而展開。L型吧台橫穿整個空間,產品與服務的感官體驗成為了空間探討的主體。SomeThoughts將商業設計中對“符號性”的探索,轉化為對“感官維度”的一種理解。而這便是通過設計語言的保留與行為模式的便利性來賦予的。
∇ 軸測
順著旋梯拾級而上,二樓是功能性更複合的空間。參與其中的訪客仿佛能體驗到“主廚廚房”的專業性與鬆弛感。而這也是客觀、真實的存在,因為除了日常的營業外,產品的研發、業內的分享以及不定期的活動都將在這裏進行。
∇ 靈活的空間形態
“有機樹脂”與“玻璃纖維”反複的混合、凝固、打磨,肌理所透出的是隨機而交織的狀態。利用自然與人工之間的相互作用激活著自然。在改造過程中,我們目的性的對原建築狀態進行了保留,嚐試利用材料對結構的“滲透”來實現建築與自然的平衡。
∇ 材料嚐試
3½表示,3分代表“好的咖啡”,而3½,寓意著想要追求比好更好一點的咖啡品質。在此,SomeThoughts認為在“內容輸出性”的差異化產品麵前,空間無須討論流行,更無須成為眾人的焦點,通過時間慢慢地傳播開來就好。
∇ 保存與再利用
∇ 平麵圖
項目信息
項目名稱:3½coffee
項目地點:上海市徐彙區太原路305弄1號
空間與陳列設計:Some Thoughts空間設計工作室
主持設計師:李京澤
設計師:謝朕、金強
項目業主:上海歐普思餐飲管理有限公司
主要用材:微水泥,碳化軟木,玻璃鋼,透明蜂窩陽光板、花崗岩、啞光抗指紋亂紋不鏽鋼、木飾麵
室內麵積:100㎡
設計時間:08/2022-10/2022
建造時間:11/2022-4/2023
攝影:SFAP
撰文及圖紙由Some Thoughts提供




































