我60多歲父母的住所。 雖然該地塊南麵有一條公路,但周圍都是房屋,單純依靠道路南側並不能提供安全感。該場地缺乏物理規模,所以我想知道如何才能創造一個小型的居住空間。
我想創造一個有深度和安全感的環境,就像一個洞穴,通過在一個簡單而寬敞的建築中精心積累小的空間體驗,隻有一個大屋頂。雖然總建築麵積不到77㎡,但花園和LDK通過一個大屋頂連接起來,營造出一種永不局促的寬敞感。
日常生活中必不可少的汽車空間也很寬敞。從內置車庫到入口的流線通過屋簷將為日常生活帶來寬敞感。關於房子各個部分使用的材料,它們必須質樸、溫暖和“可觸摸”。這聽起來像是陳詞濫調,但我們壓倒性地強調“質量勝於數量”。這是一個機會,讓我們深入思考“質量”對他們最終住所的生活意味著什麼。
我的父母仍然活躍,但逐漸變老。 我希望他們一生都活躍起來,我希望他們能度過他們平凡生活中豐富的時光。
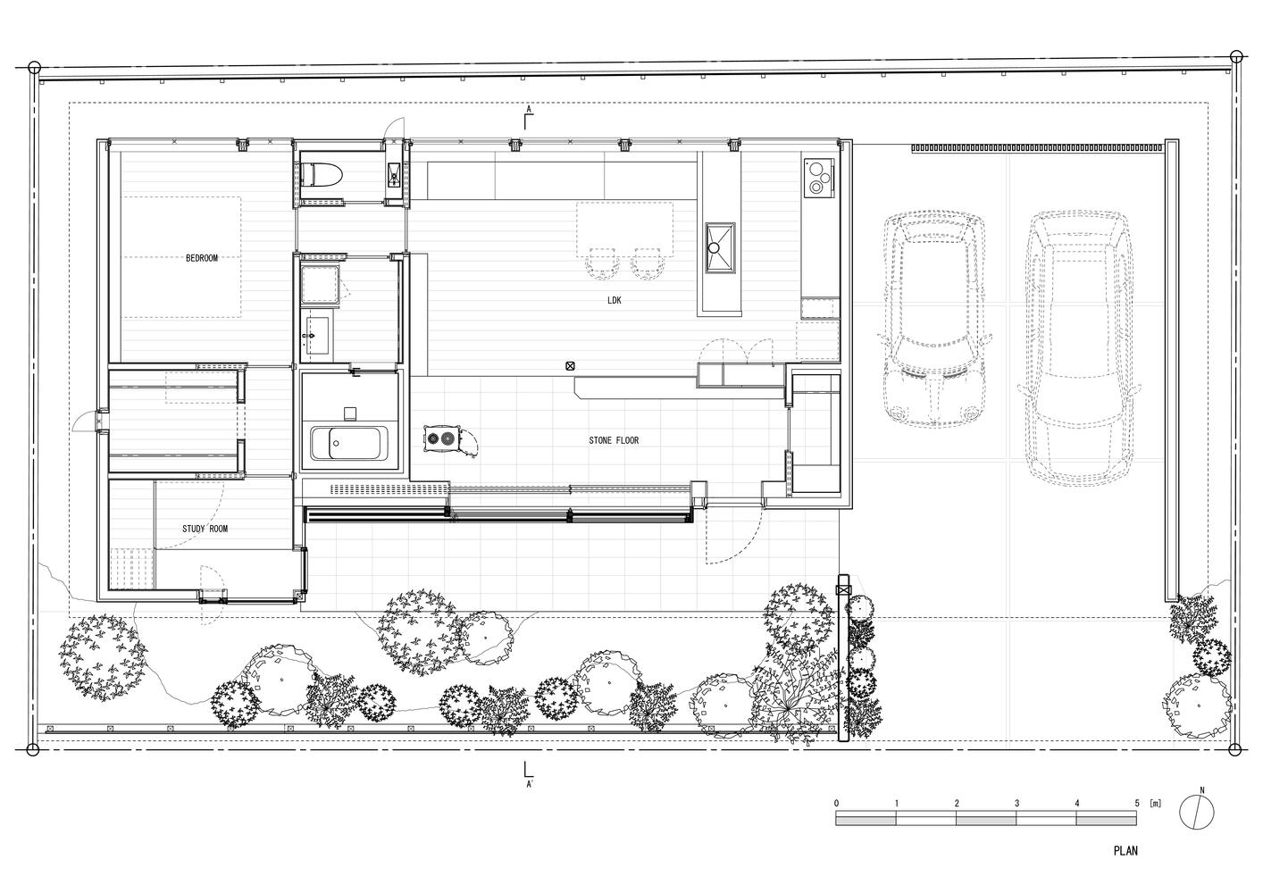
∇ 平麵圖
版權聲明:本站所有文章除投稿授權發布外,其他文字內容均為原創,享有著作權保護,未經許可不得以任何形式進行轉載(包括且不限於:媒體、網站、公眾號等)。所有項目照片/設計圖形版權歸原作者所有。本站部分內容源自網絡公開資源或用戶分享,如若侵犯了原作者的合法權益,可聯係我們進行處理。




























