一室的奶油色調仿如置身在書本扉頁
以留白篇幅揭開生活故事
思維設計Thinking Design筆下屋宅,正是愛書人的理想家景,不受習以為常的居家景色所限,正是因為理解生活樣貌的各種可能性。這座親子書屋不同於多數住宅形式,電視的存在不再是重心,而是擴大閱讀樂趣,沉浸在各種文學風景裏頭,從而展開頂天書牆、或坐或臥的閱讀姿勢,建構獨樹一幟的居家畫麵,成就一家四口漫遊書海的自由。
屋主一家都非常喜歡看書,擁有極為豐富的藏書,且他們對於書籍擺放自有一套歸納方式,因而在討論整體規劃時,書牆是他們首要關注的項目。此外,看電影、聽音樂也是他們的家庭活動,尤其男主人格外重視音響設備。
取消了傳統客廳的電視牆,以一麵書牆作為視覺重點,讓書本成為焦點。櫃內分層也以繪本及音響為基礎,梳理出整齊且平衡的結構表現。
有鑒於屋主每周都會替孩子們選書,藉由局部加入門片,搭配橫式把手打造書櫃上的展示巧思,櫃體更滿足了音響走線、散熱需求,也置入投影機、可收納的投影幕等,成功地在客廳結集了一切所愛!當空間機能性越高,也會提升領域凝聚力,促進親子互動,關係也將更加親密。
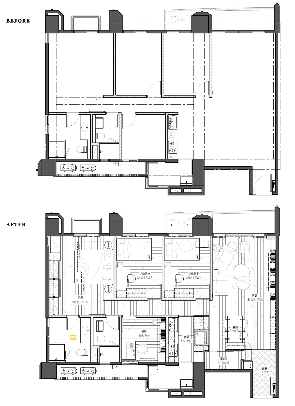
本案格局方正、采光良好,並無太大問題,唯獨玄關狹窄緊湊,沒有放置任何櫃體的餘地。團隊在全盤了解起居習慣後,取1/3 餐廳占地,為親子家庭拓出儲藏室,收放大型的生活雜物,此舉同時延伸出落塵區範圍,騰出置入電子衣櫥和鞋櫃的空間。
顧及屋主的料理習慣,和對日常清潔的擔憂,這回把開放式廚房改為半開放,以電器櫃為隔間,完善烹飪區的收納機能,並透過穿透感玻璃和彈性靈活的滑門,係起領域之間獨立又緊密的關係。
∇ 平麵圖
版權聲明:本站所有文章除投稿授權發布外,其他文字內容均為原創,享有著作權保護,未經許可不得以任何形式進行轉載(包括且不限於:媒體、網站、公眾號等)。所有項目照片/設計圖形版權歸原作者所有。本站部分內容源自網絡公開資源或用戶分享,如若侵犯了原作者的合法權益,可聯係我們進行處理。




























