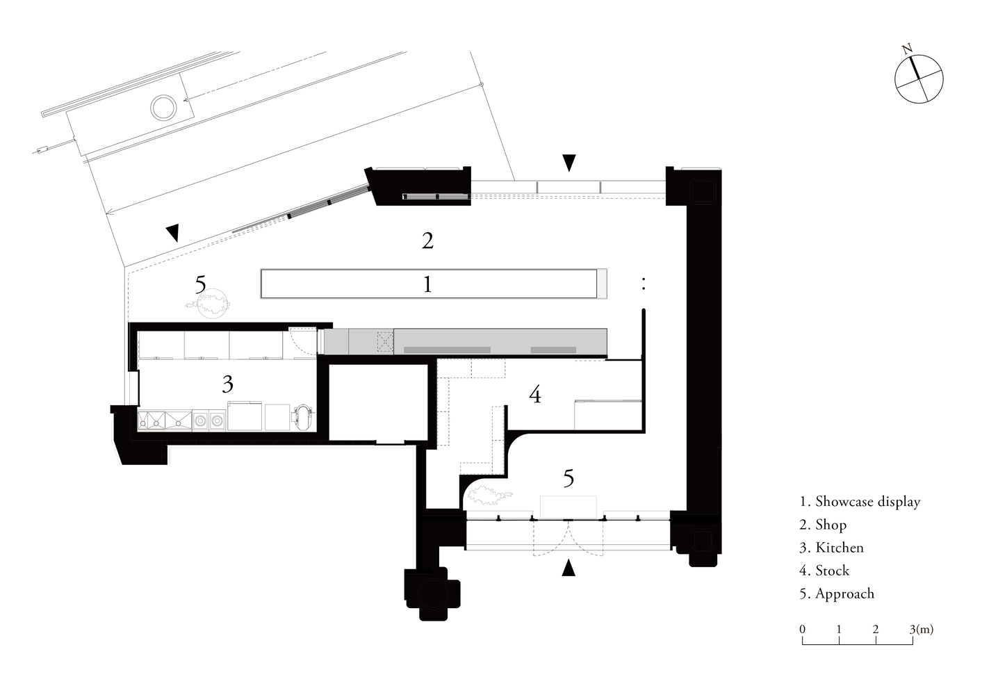
總部設在福岡的和果子(日本甜點)商店“Suzukake”的麻武台Hills分店的計劃。利用商店兩側入口的獨特地塊形狀,目標是創造一個與日本甜點氛圍相協調的空間。
該空間位於建築物的內部和外部通道之間,周圍有兩條路線。在這個計劃中,主展示架最初被放置在內部通道一側,以確保更大的空間。同時,對於那些從外部通道進入的人,在入口處創造了一個邊緣,具有傳統的日本房屋美學,以確保氛圍感。另一方麵,對於從內部通道的進近,在廚房牆壁周圍應用了大尺寸的蛇紋石,在商店的正麵給人一種綠色背景的印象。
整體材料包括地板的洗漆飾麵,牆壁使用石膏和稻草,以及將日本白蠟木用於門檻、踢腳線和固定裝置,以創造一個有質感但中性的空間。同樣,陳列櫃使用白蠟木,而底座則采用耐用的灰色石灰石。該方案平衡了整個空間與和果子的兼容性,旨在合理組合必要的功能,同時尋求合適的材料感覺。
∇ 平麵圖
版權聲明:本站所有文章除投稿授權發布外,其他文字內容均為原創,享有著作權保護,未經許可不得以任何形式進行轉載(包括且不限於:媒體、網站、公眾號等)。所有項目照片/設計圖形版權歸原作者所有。本站部分內容源自網絡公開資源或用戶分享,如若侵犯了原作者的合法權益,可聯係我們進行處理。





























