英文單詞“stay”的意思是“繼續留在某個地方而不離開”,在韓國已成為取代“感官住宿”的名詞。該項目首先關注的是,是什麼讓這個市場在酒店、汽車旅館、旅館和度假村等各種類型的住宿中具有獨特性。“Stay”是一棟設施齊全的單戶住宅,為夢想居住在房子裏的人們提供服務。由於韓國的主要住房市場是公寓,因此許多人夢想建造並居住在家裏或擁有一棟周末別墅。然而,這需要大量的時間和金錢投入。因此,“住宿”市場可以成為滿足人們居住欲望的一個有吸引力的點。消費者可以選擇各種周末度假屋。
玻璃屋
食物、衣服和住所是我們每天享受的元素。因此,有時候每天必須有令人愉快的元素可以享受,但也有一些時候需要獨特的衣服、食物和地方。“stay”是這個特定時刻的市場。1949年,菲利普·約翰遜在康涅狄格州新迦南占地19萬平方米的土地上建造了一座玻璃屋。他創造了美麗的風景,並稱他的玻璃牆為“非常昂貴的壁紙”。
ASI
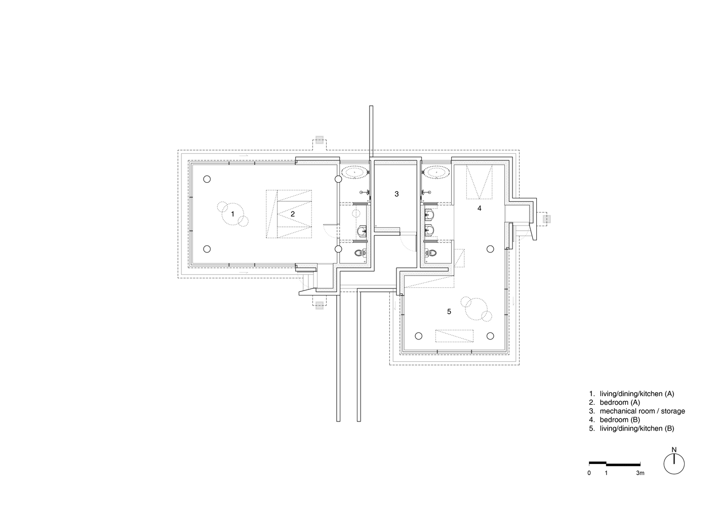
在2538平方米的土地上,一座老房子已經就位。客戶希望在這座老房子裏擁有自己的家和入住大廳。他們還想為這裏的客人提供早餐。因此,必須在現有架構和新架構之間進行安排。老房子和兩座玻璃屋之間近距離不能有任何幹擾。早期,客戶想要兩棟玻璃房子。然而,為了節省建築成本,它變成了一個有兩個單元的獨立住宅。他們都可以充分享受玻璃房的優勢。機械室放置在兩個房間之間,以提高機械效率來分隔單元。各單元與機房互不幹擾。
∇ 平麵圖
版權聲明:本站所有文章除投稿授權發布外,其他文字內容均為原創,享有著作權保護,未經許可不得以任何形式進行轉載(包括且不限於:媒體、網站、公眾號等)。所有項目照片/設計圖形版權歸原作者所有。本站部分內容源自網絡公開資源或用戶分享,如若侵犯了原作者的合法權益,可聯係我們進行處理。




































