項目位於南京新區商品房底商,快速造城運動導致的文脈困惑,與酒吧是基於對西方文化的空間想象,有著某種本質的暗合。不滿足於空洞的布景,讓我們決定從內部入手,塑造項目的核心精神場域。
空間的顯學
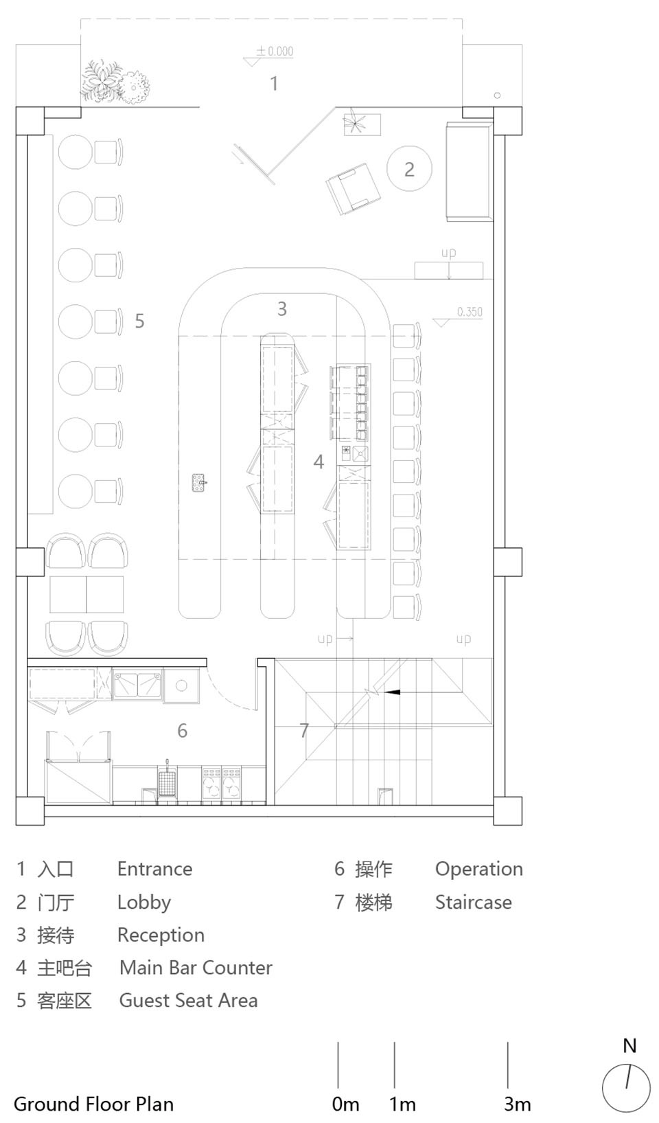
酒吧的焦點永遠是吧台,平麵上軸心布局U形吧台,垂直軸線便是酒牆。拆除兩間商鋪單元的樓梯,形成了中心區域的局部通高空間,讓一種精神象征空間成為可能。人字坡頂的置入,讓空間在剖麵上形成切割、貫穿與賦形,是空間的顯學。成型之時,突然感覺一種類似筱原一男的象征空間,創造了一種空間深度。
空間的隱學
酒吧的時間永遠是夜晚,當夜幕降臨,隻有燈光可以照亮和重塑空間。靈感來自於詹姆士・特瑞爾的藝術創作,空間可以是光的裝置藝術。漸變燈光膜讓光成為一種彌散介質,模糊了真實空間,類似酒精的致幻作用,帶來感官放鬆和快感。此時,空間仿佛失去了物理深度,去往純粹且抽象的精神世界,這便是空間的隱學。
我們一直在探索空間的可能性,從場所、時間、材質等去探討空間的本質。如果說Farvahar Lounge是一種新的嚐試,燈光可以是一種語言,訴說了酒吧文化在這片土壤的新精神。
∇ 一層平麵圖
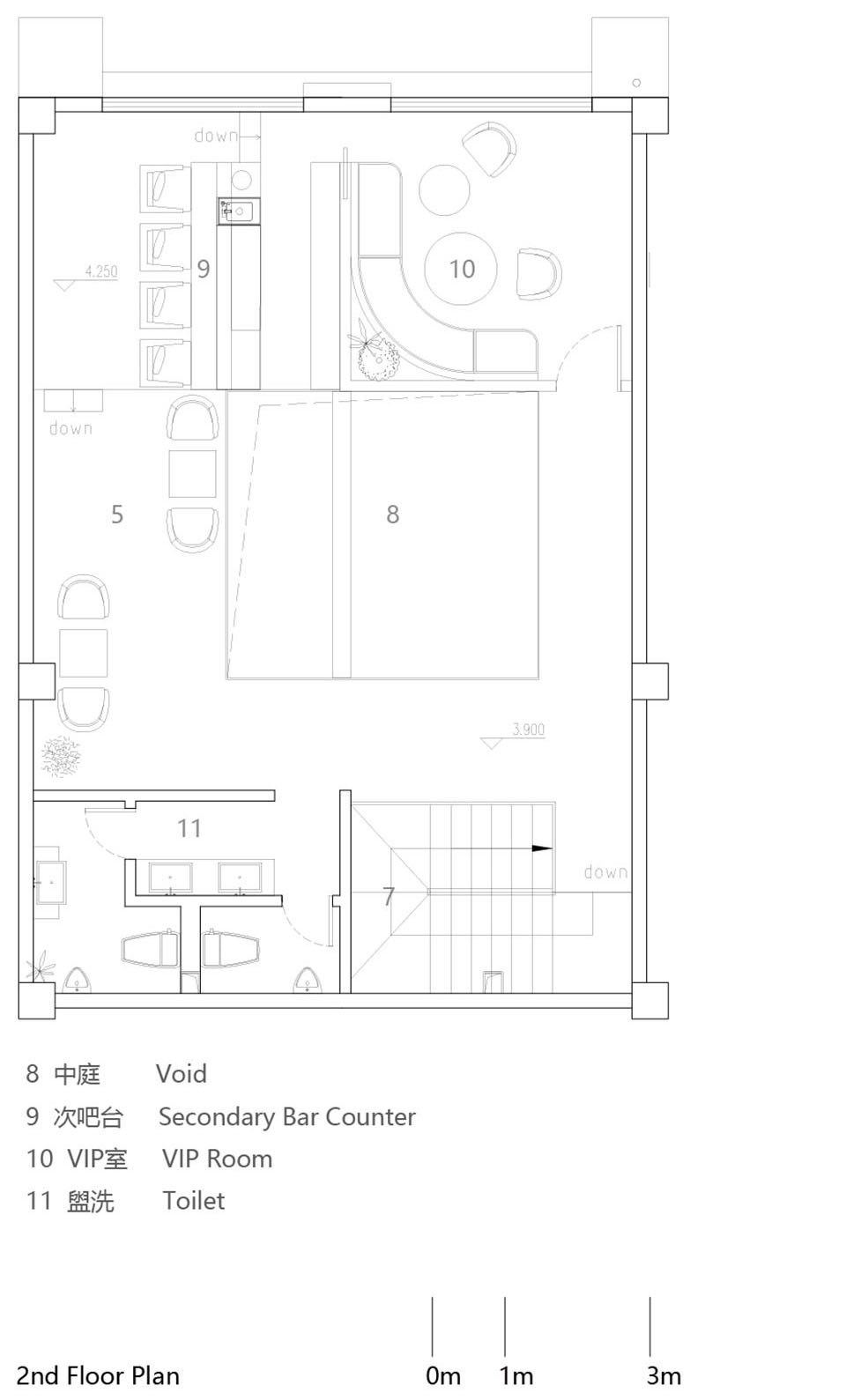
∇ 二層平麵圖
項目信息
項目名稱:Farvahar Lounge酒吧
設計公司:南京悅設空間設計
設計主創:常辰
照明顧問:光維設計
綠植景觀:植地雅栽
設計時間:2023.7-2023.12
施工時間:2023.9-2023.12
項目地址:定康街40號,南京
建築麵積:200㎡
攝影版權:Ingallery、馬傑睿、棲則
主要材質:玻璃磚、發光軟膜、水波紋不鏽鋼
品牌:光維、沭然、奧妙
版權聲明:本站所有文章除投稿授權發布外,其他文字內容均為原創,享有著作權保護,未經許可不得以任何形式進行轉載(包括且不限於:媒體、網站、公眾號等)。所有項目照片/設計圖形版權歸原作者所有。本站部分內容源自網絡公開資源或用戶分享,如若侵犯了原作者的合法權益,可聯係我們進行處理。


























