該教堂從最初的社區教堂和劇院轉型而來,經曆了非凡的複興,成為一座三層的當代閣樓住宅,將現代生活與其列入遺產名錄的磚和砂岩外牆的曆史魅力完美地融為一體。教堂保留了原有建築的完整性,成功地保留了其曆史悠久的外觀,同時在內部引入了現代美學。建築幹預巧妙地平衡了傳統與現代設計之間的平衡,通過幾何形狀、材料選擇和照明進行了深思熟慮的重新詮釋。
通過堅持現有的占地麵積,教堂提供了寬敞的內部空間和令人印象深刻的體積。建築反應巧妙地對比了傳統和現代元素,為結構注入了新的生命,同時尊重其曆史根源。最小的隔斷、浮動夾層和改良的玻璃窗為這座曾經休眠的建築營造出明亮、通風的氛圍。引入的寬敞玻璃拱門反映了現有開窗的格式和規模,勾勒出花園、港口和天空如畫的景色。這種設計選擇保留了裸露屋頂結構的原始韻律,輔以持久存在的磚砌扶壁和豐富的木桁架銅綠。
為了體現教堂的本質,教堂新住宅的核心是廚房,它的位置巧妙地吸引了人們的注意,就像宗教環境中的祭壇一樣。居中排列的廚房島台成為焦點,以其高聳的高度和一致的材料強調了空間的體積。島台上的弧形拐角向拱形窗戶致敬,與後麵的磚砌結構形成視覺聯係。從社區劇院到私人住宅的適應性轉變需要重新構思室內規劃以及建築響應的相應轉變。對曾經寬敞的規劃進行戰略性插入,並錨定關鍵的社交和私人空間,將曾經的教堂空間重塑為一個家庭生活無縫展開的住宅。
內置細木工製品和精心挑選的家具之間的平衡在空間內建立了清晰的功能層次。這種設計方法不僅反映了居住者進步的生活方式,而且支持他們的家庭抱負,創造了一個既實用又美觀的住宅。總之,教堂是曆史保護與當代設計成功結合的證明,提供了一個獨特而充滿活力的生活空間,在尊重過去的同時擁抱未來。
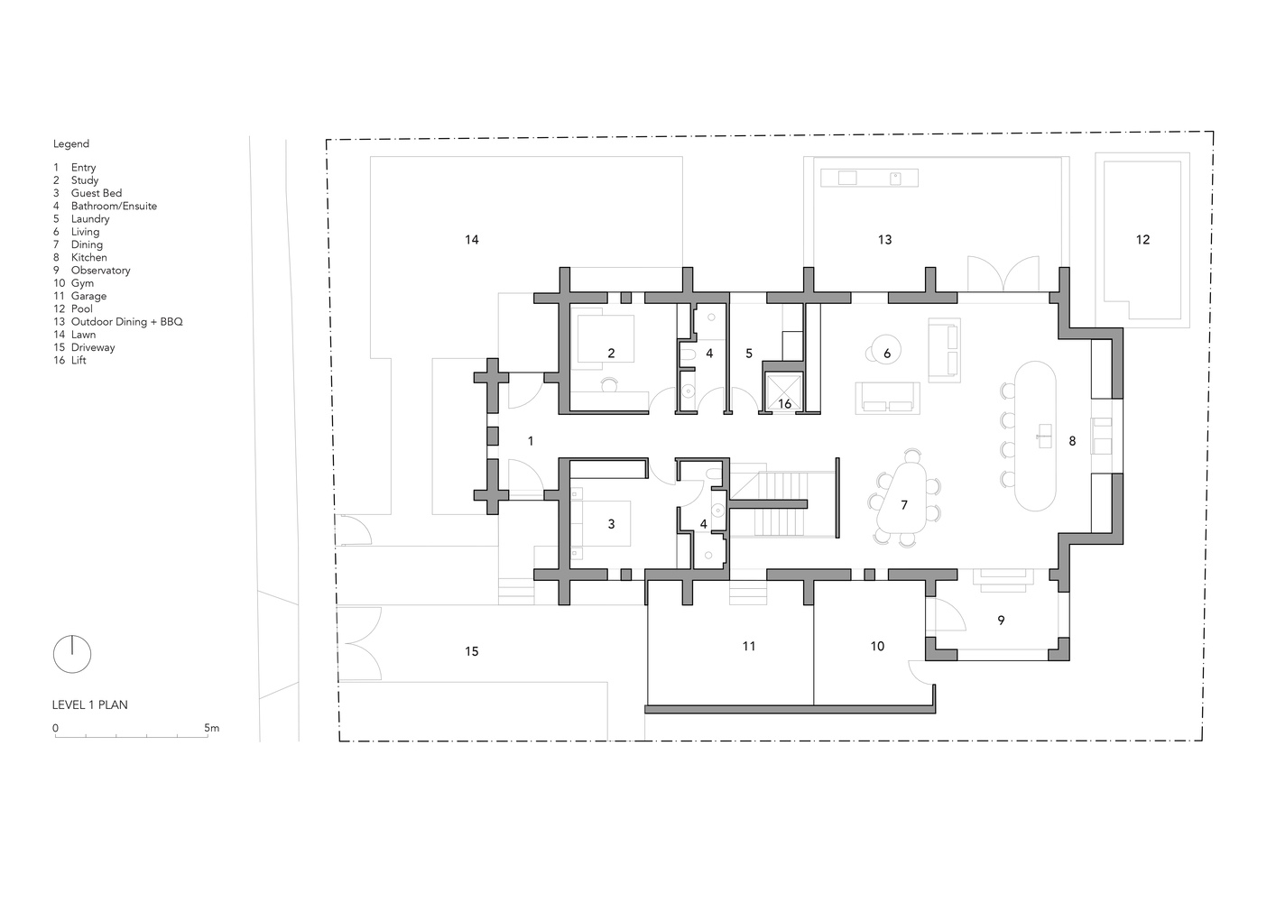
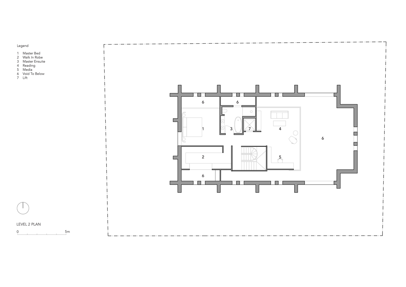
∇ 平麵圖
版權聲明:本站所有文章除投稿授權發布外,其他文字內容均為原創,享有著作權保護,未經許可不得以任何形式進行轉載(包括且不限於:媒體、網站、公眾號等)。所有項目照片/設計圖形版權歸原作者所有。本站部分內容源自網絡公開資源或用戶分享,如若侵犯了原作者的合法權益,可聯係我們進行處理。



























