女裝品牌Jedda Studio 從印尼語“jeda”中汲取靈感,意思是“暫停”,就像工作室的理念一樣細致入微、富有成效且不斷進步。Office Shabrina Artiandi對 Jedda Studios 的態度也受到了這種對比的啟發,這種對比源於我們在真實而莊嚴地展示樸素時尚時所觀察到的寧靜和精致的品質。這種綜合指導了 Jedda 在工作室建設過程中創作首個係列的方向。
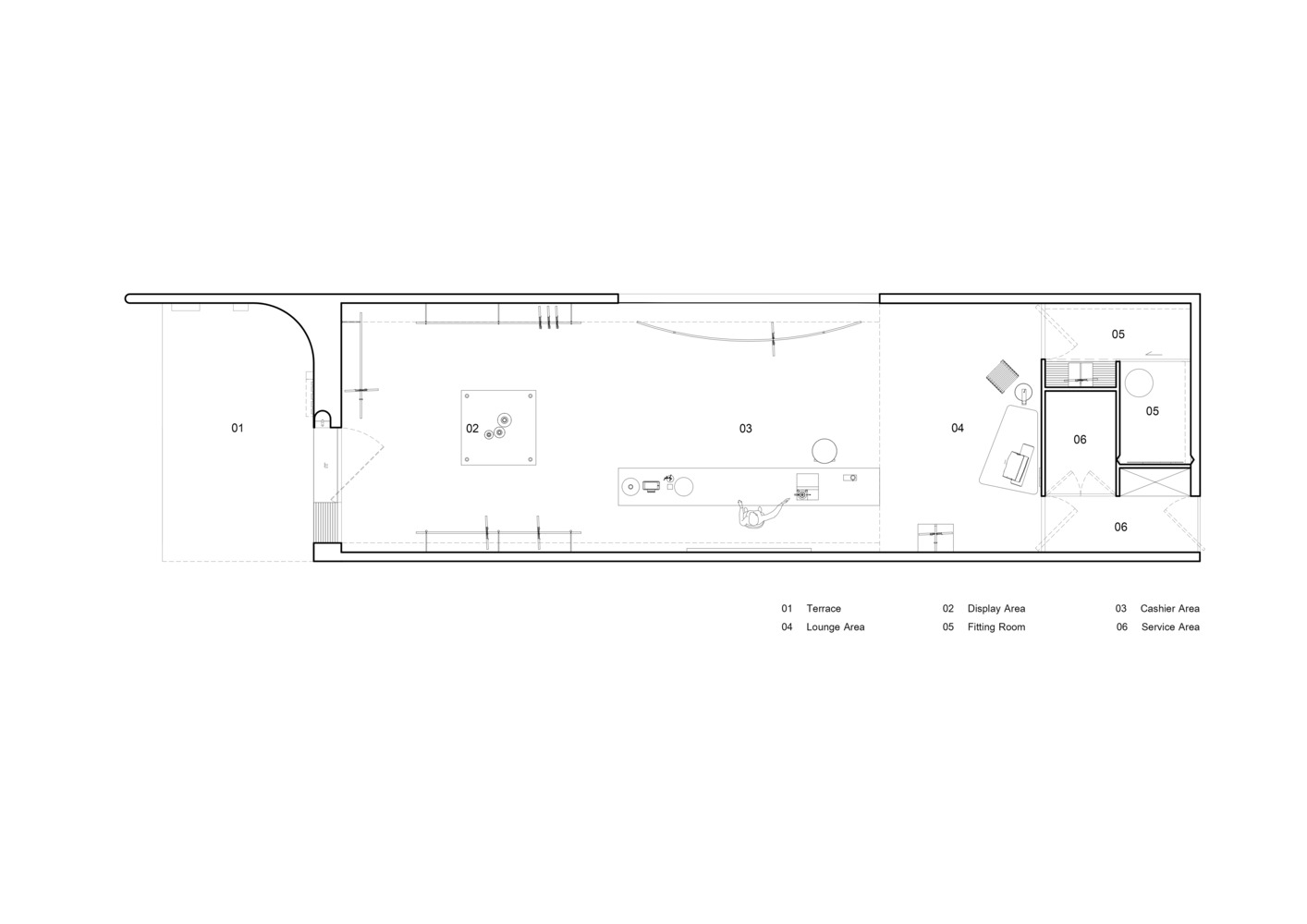
Jedda Studio 被認為是 Jedda 可穿戴係列的容器,以熱情好客的態度作為其主要功能。茶吧位於零售空間的中心,作為一項必要的服務,體現了謙遜的價值觀,有意背離了現代零售業的交易方式。在堅持最小化展示的同時,讓每件衣服都脫穎而出,一幅由藝術家加利赫·阿迪卡 (Galih Adika) 委托創作的大型畫作《汙漬》(Stain) 被安裝並突出顯示,與零售櫃台上的茶具對齊。這幅畫反映了茶葉中單寧、兒茶素和展開的深琥珀色和棕色,釋放出一種對主要用於零售構造的不鏽鋼和固體表麵冰冷本質的破壞感。
∇ 平麵圖
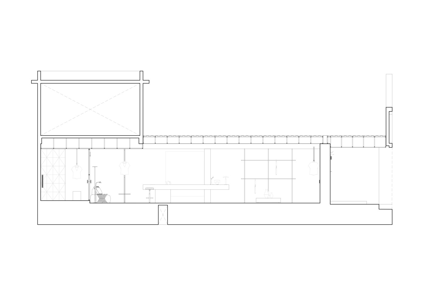
∇ 剖麵圖
版權聲明:本站所有文章除投稿授權發布外,其他文字內容均為原創,享有著作權保護,未經許可不得以任何形式進行轉載(包括且不限於:媒體、網站、公眾號等)。所有項目照片/設計圖形版權歸原作者所有。本站部分內容源自網絡公開資源或用戶分享,如若侵犯了原作者的合法權益,可聯係我們進行處理。























