城市中心與城市觀察中心
這裏是複雜城市空間的觀察裝置,這裏聚集建築敏感、藝術敏感、城市敏感的人群…
當獨立的個體在特定的時空中彼此產生「聯係」,那麼我們希望這種聯係是特別的、持久的、印象深刻的…
這裏是Space1·一所
在設計中,我們試圖保留著空間最基礎的原始空間構造,相對質樸的材料與顏色形態各異的椅子塑造了空間的性格。隨著光的加入,不同時間賦予空間不同的感受;智能化燈光係統,為空間提供多樣的可能性。大量的黑作為空間的「留白」,在黑色的襯托下,讓每一個人和每一次事件都成為主角。
∇ 日常采光分析圖
∇ 黃昏采光分析圖
複合功能的房子與房子
在層高7米的大房子裏,為了最大程度的保留建築內部坡屋頂,同時考慮了暖通、采光等基礎問題,我們決定把一個大尺度的空間劃分成幾個不同功能項的小尺度單元。
利用「在房子裏蓋房子」的空間嵌套手法,我們縮小了空間的尺度,利用體量差排列出錯落有致的獨立空間:設計空間、會議空間、材料室、會客空間、模型室與公共空間Space1。
∇ 空間分析
廊道中的多樣片段
建造好這些「房子」,一條回形廊道也就自然形成了。設計利用蒙太奇的方法,在外廊中將不同場景切片進行排列組合,完成空間敘事場景轉換流暢連貫的表達。內廊則是用於事務所內部的多功能空間,即提供日常的交流、休憩、茶歇等日常活動。最終內外兩條廊道在Space1完成相交,自然地串聯起空間內的動線。
∇ 內外廊動線
自然型的係統
在這個大挑高空間的房子裏,我們首先利用縮小空間尺度的方法,有效解決了能耗問題。
∇ 能耗分析圖
置於內廊窗邊的工業風扇降低能耗的同時提供更大的空氣流動。但「在房子裏蓋房子」之後,空間的采光受到一些遮擋,因此我們透過杜邦紙解決采光問題,來實現自然光的最大程度的進入房間。
作為內部空間的劃分,杜邦紙的高反射率總能使空間中的光線形成漫反射,而材料本身在一天的不同時刻也會呈現出豐富的視覺效果。同時杜邦紙的輕質與混凝土的厚重形成虛實對比。
同樣與混凝土形成呼應的還有陶磚。陶磚自帶的野性和原生感與粗糲的混凝土自然過渡,相互呼應。
以內外回形廊道為依托,我們建立了自然性係統,在Space1和內廊空間我們預留了沿牆的種植箱,形成可以環繞整個空間的自然景觀。為了與空間整體相融合,在植物配置上,我們選擇了在室外景觀常見的多年生植物。
∇ 綠植係統分析圖
複合的顏色狀態
空間整體色彩協調,加之導視係統中少量的撞色、不同質感的材料選擇在相同色係中融合,形成富有層次感的色彩體係。
ZOO建築設計事務所以“仟物棲所”作為核心理念,麵對高度城市建築發展,試圖從福利角度從新定義建築對於所有生物的意義與價值。有機、可持續、自然、創造力是我們關鍵詞。
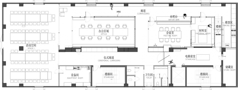
∇ 一層平麵
∇ 二層平麵
項目信息
項目名稱:仟物棲所事務所改造
項目類型:建築/室內/改造/景觀
設計方:仟物棲所
項目設計:2023年5月
完成年份:2023年10月
設計團隊:溫佳鑫、蔣明辰、薛鈺蓉、李步密、耿仲強、張書儀、彭真、王雨萱、白宇晨、胡奇軒
項目地址:天津市和平區津灣廣場
建築麵積:700㎡
攝影版權:©Daily建築攝影-劉國威
材料:杜邦紙、陶磚、混凝土








































