思無邪精品酒店的誕生源於兩個年輕主理人之間的愛情,希望能遠離城市喧囂,尋覓一處屬於兩人的心靈之所。於是於2016年在西海風景區遊客碼頭西南側,麵對西海開設了第一個思無邪,主要是供兩人度假及研究詩詞歌賦,傳播國學文化為目的,順帶開設了幾間客房,用來接待友人和學生之用,酒店的概念還沒有真正形成。可那時候正是全球疫情前,全國度假旅遊旺盛時期,客房供不應求,為滿足大量思無邪品牌愛好者的需求,自然就有了建設二期的計劃。
新一期的思無邪坐落於江西省九江市廬山西海風景名勝區內,場地置身於小鎮大片橘林之中,緊鄰湖水碧光,視野開闊,可直接擁抱遠山近水,是一塊難得的避世之地。
∇ 場地區位
雖然場地周邊環境優美,但場地自身雜草叢生的荒蕪,有微高差。現狀建築為四層,開間3.9米開間,爛尾狀態。建築結構是混合型,首層是鋼筋混凝土框架結構,2-4樓是磚混結構,典型的當地鄉村自建房做法,沒有經過科學的結構計算。這樣的結構現狀,不論在改造空間劃分的靈活度上還是在功結構荷載預留上都遠遠不夠,在結構的加固及優化方麵是一項巨大挑戰。另外原建築外牆封閉封閉,與一層小平房分離,孤立與場地與環境之中,我們急需打破僵局,建立新的場所關係。
∇ 空間軸測圖
融合場地與自然:
改造的核心理念是將原本建築單一功能所形成的單調方塊體量轉變成複合功能又富有層次的空間集合體,將封閉又孤立的筒子樓變成一個融合場地與自然山水的開放公共建築。我們采用了水平分解的策略,添加了一個水平屋蓋,將原本四層的立麵按1:3比例水平切分,不僅解決了原本不協調的建築比例問題,獲得可延展的富有張力的簷下空間,回應日曬雨淋的氣候問題,同時劃分出“被打開的首層空間”,為整個項目提供了最大的開放式公共配套區域,成為景觀庭院的一部分。二樓提供了一個水平私家觀景平台,更好地拉近與山水對話的距離。
∇ 建築改造策略分析圖
收納山海:
“一個收納山海風景的精神家園”。即使建築現狀有諸多難題,設計堅持實現一個理想的願景,希望所有來到這裏的客人都能直接享受到這片山水,我們將所有的客房和公共活動空間朝向最優的風景麵。空間規劃上將服務空間麵向村莊,方便後勤作業;被服務空間麵向風景,讓客房、咖啡廳、餐廳、圖書館與其它公共空間麵向風景,獲取180°—270°的最優觀景視野。
∇ 打開的首層空間軸測圖
客房設計以循序漸進的方式展開,從走廊到房門,從衣帽間間到觀景陽台,是一個從私密到開放,由動到靜,由暗到明、最終到與風景相融的空間序列與精神體驗。
逍遙遊:
我們根據項目特征結合運營思路提出了莊子“逍遙遊”的主題概念,希望在大自然當中能像“逍遙遊”一樣,表達一種追求絕對自由的人生觀,忘卻物我的界限,達到無己、無功、無名的境界,無所依憑而遊於無窮。所以項目以逍遙遊的無意識,不設限為特征,著重對精神層麵的追求,指向自然,以樸實無華、克製真實為設計基調,以簡潔適合的狀態呈現建築風貌,空間和裝飾。
∇ 屋頂套房空間軸測圖
∇ 總平麵圖
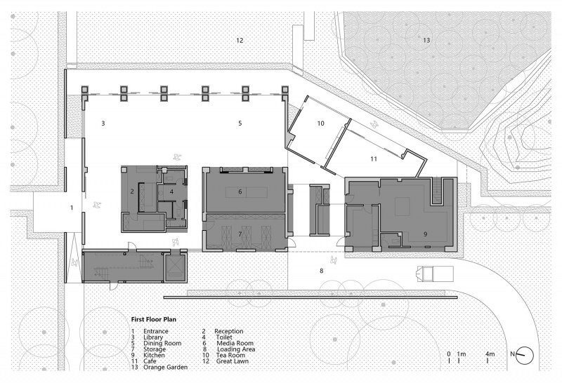
∇ 首層平麵圖
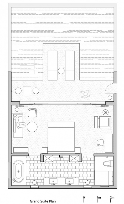
∇ 屋頂套房平麵圖
∇ 軸測圖
∇ 草圖
項目信息
項目名稱:廬山西海思無邪·逍遙遊精品酒店
項目位置:江西省九江市廬山西海風景名勝區柘林鎮
委托方:江西思無邪旅遊文化有限公司
項目完成:2023年12月
建築麵積:1300平方米
設計範圍:建築、室內、軟裝、景觀設計
設計單位: 互建築+上觀設計
項目主創:馮玉海 李日中
主要設計師:張曉 劉文倩 歐新陽 賴新星 袁健
甲方代表:李良 高夏
結構設計:鄧鵬
施工單位:薑磊團隊
攝影師:肉山
材料:鋼、藝術塗料、木板、玻璃









































