在一個倉庫的建造過程中,建築師發現了在空間中建造一個閣樓以享受大自然所包圍的寧靜時光的機會,於是這間用於度假的附屬建築就誕生了。
該附屬建築設計舒適且自然融為一體的魅力,有中性色調的塗料和白色水泥,有木材、亞麻和棉花等自然質地,在不同的尺度上帶來舒適。一個重視自然照明和與自然聯係的實用環境,包括整個空間。
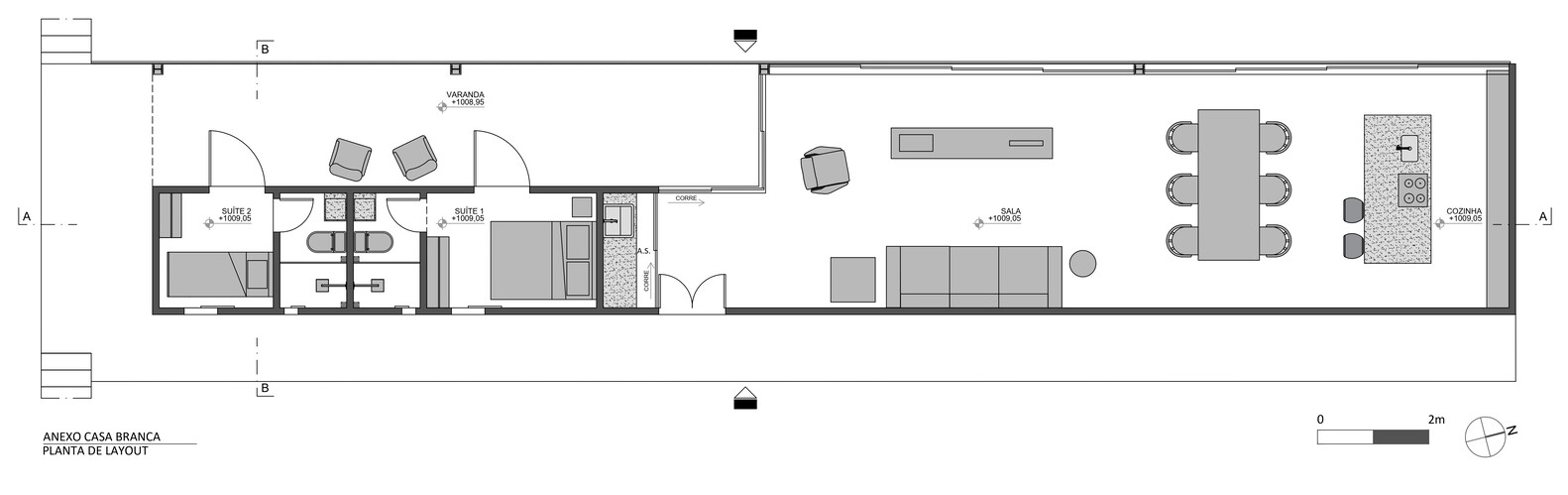
這間110㎡的豪華閣樓有一個線性的布局,從陽台可以將私密區域與社交區域分開。套房的門是隱形式的,打開後,展示了鄉村和優雅的建築。這是一個可以看到社會區域樹頂的位置,創造了一個淨化靈魂的場景。
廚房有一個獨特的白色塗層,提供了一個實驗空間,無論是裝飾還是烹飪。手工製品、陶器和肥皂石餐具通過一種有效的裝飾來點綴空間,這種裝飾尊重米納斯吉拉斯的文化。
∇ 平麵圖
版權聲明:本站所有文章除投稿授權發布外,其他文字內容均為原創,享有著作權保護,未經許可不得以任何形式進行轉載(包括且不限於:媒體、網站、公眾號等)。所有項目照片/設計圖形版權歸原作者所有。本站部分內容源自網絡公開資源或用戶分享,如若侵犯了原作者的合法權益,可聯係我們進行處理。

























