都市裏的自然居所
“蟬鳴忽止而風驟停,不得不撒開滿懷的青翠榆錢兒串,跳下人高的枝椏蹦到幹硬的泥地,從低飛的蜻蜓和遍地的刺蛾裏往大路飛奔。無盡的油綠稻田裏綴著勞作的人們黑色的剪影,家門口參天的櫸樹在不遠處搖曳生姿。轉入水杉林婆娑樹陰的時候,泥地已然浸潤的鬆軟疏糯。穿過棗樹和野場菜圃,躍過石板和高門檻,在狂風攜雨呼嘯卷到後背之際,用全身力氣合上吱呀而粗糙的舊木門板,奮力旋下插銷,把自然的風暴擋在門外。終於可以抹一抹沾泥的赤腳,蹭著青樹皮的胳膊,在高而小的斜天窗微弱搖曳的光與塵裏,在潮濕土腥味的彌漫裏,算算全村的開放野外電影的日期,並等待雨停了。”
這是九零年蘇中鄉村一個普通夏天的下午,是農業時代關於原野、生產、居所不自知的深刻印記。在快速迅猛的增量城市化進程中,雖然不得不讚歎於設施提升、材料進步、高效互聯和急速擴張的奇觀場景,那樣自然、平衡、深刻、簡練、富有創意和適應性、令人振奮且持續協同創造的田園詩歌日漸消失,而其核心特質對於可持續人居環境的真實作用被忽視低估或謬用約束。矯飾、過度、冗餘、片麵、僵化的各類美學和方法披著刺激和驚奇的外衣、掩去真實目的輪番登場,強行塑造單調同質、格格不入而周期極短的“塑料玫瑰”。時過境遷,三十餘年的城市化進程終於轉入結構調整、存量更新和鄉村複興並行的轉型階段。“鄉野之家”緬懷於農業生活的浪漫和積極特質,實驗在都市生活的技術框架裏去除繁瑣、重新融入自然人文。
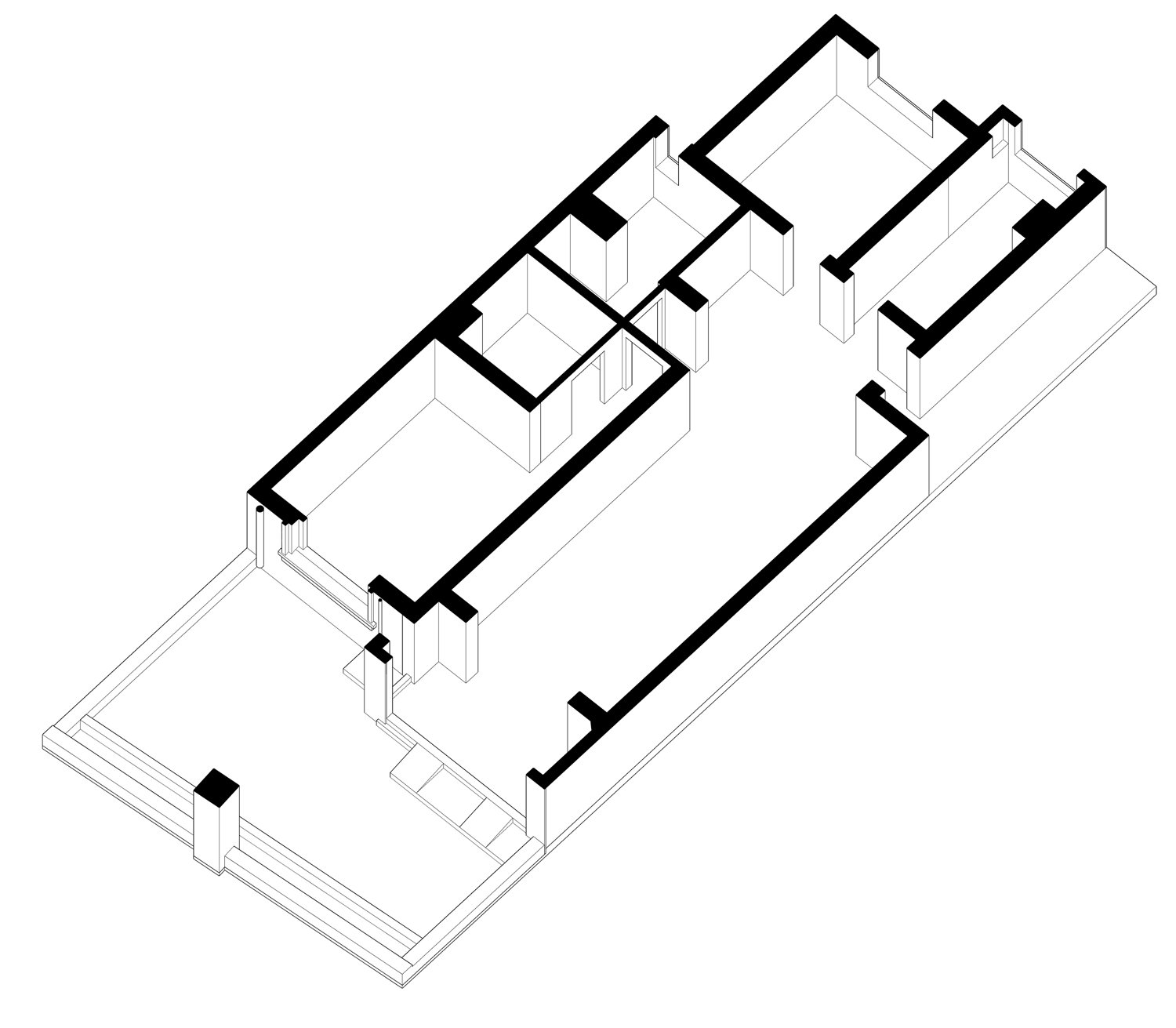
∇ 平麵草圖
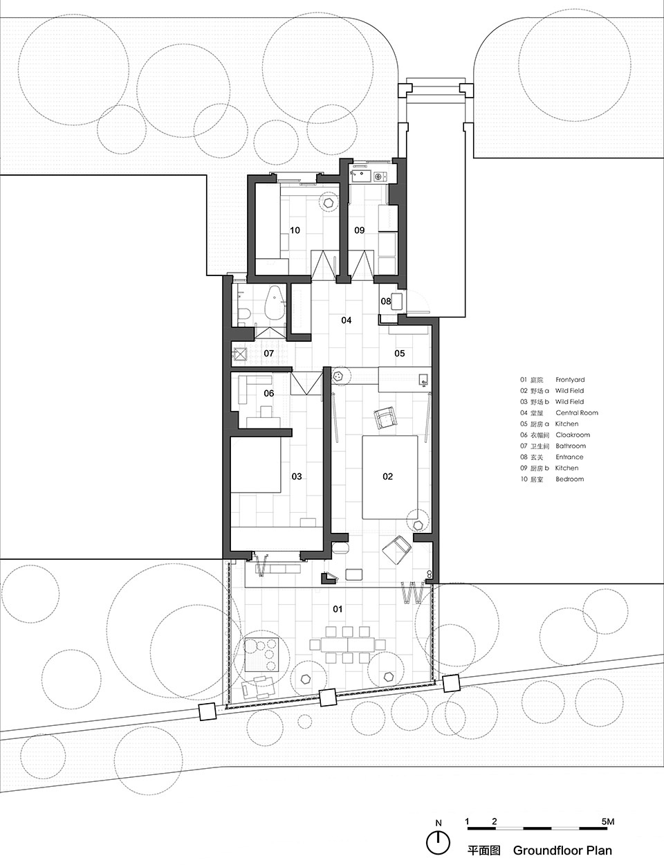
原房屋是2000年典型的聯排多層住宅,底層100㎡,帶南向30㎡小院。通過戶內外比例調整、建立過渡空間、不平整地麵、明暗調節、尺度徐變和空間適應性設計等方法的交叉運用,改變此類住宅的典型使用方式。
野場
項目首先拆除了原廳堂通向小院的門檻,在原主臥對著院子的窗口內外設置地台踏步並新增雨棚,院落和這兩部分整合成為80㎡洄遊自由、無需過度照看的戶外場所,我們稱之為野場。從比例來看,戶內外麵積發生了轉換。全折疊的係統門窗僅在暴雨等極限天氣關閉,日常使用裏,除了椅子,地台和地毯外,植被、陽光、風和各類昆蟲充滿這個場所,自然的生發賦予樸素鮮活而雋永的特質。巨大的空曠鼓勵了木工手作、家具刷漆、好物擺拍、長桌野餐、瑜伽健身、簷下聽雨、林間閱讀、棋牌遊戲、衣物晾曬、翻土澆灌、草木修剪、果實收獲等一係列活動,兩個巨大的升降投影幕帶回了露天電影場景,黑色背光板同時作為高效的遮陽調節裝置。兩個高懸的三角形亞克力燈形同星月。這裏也是貓的樂園。每日景象絕不相同,人通過常態化的適應性改造和自然、居所發生深層次的連結融合。這一行為本身吸引了鄰裏和臨界廠區的關注興趣,雖然隔著圍牆和樓層,大家開始討論建造方法、盆栽經驗、鄰裏生活和事務,家重新成為信心、給養和認同的居所,而非隔離之地和形式的囚徒。
∇ 野場空間改造示意圖
工藝方麵,室內外通鋪米黃色啞光地磚,牆地滿塗淺咖色無機灰泥,老化的院牆瓷磚經同色保護漆重新覆蓋,鐵鏽欄杆保持同樣高度由土黃色聚氨酯空心磚加固。刺激複雜的形式色彩讓渡與簡單溫和的氛圍,以匹配鬆弛自然的狀態。
堂屋
原入門區域的方形餐廳被抬高18公分,並向五個方向伸出五個觸手,建立由戶外向戶內轉換過渡的序列。平麵上呈風車形,共計25㎡,我們稱之為堂屋,與野場以宏大的淺咖色烤漆偏軸旋轉門相隔。由野場進入堂屋再到其他居室都有踏步和斜坡,整個地麵並不平整,所以這一過渡空間序列更多由腳底壓力的轉變得以感知而非視覺。沒有單純的交通空間,伸向野場的地方組合了水泥澆築的原色中島台和開放餐邊櫃,是日常的餐桌,可以完成簡單的西餐製作,能為戶外活動提供酒水咖啡,也是工作台和討論桌。斜坡則並置了一組深古銅色烤漆鐵藝開放衣架和梳妝台,也適合安靜的單人工作。伸向廁所的部分放置了沙漠色透明樹脂台盆,伸向廚房的區域密集排布了冰箱洗碗洗衣烘幹等設施,伸向入戶門的位置是鞋櫃與無線設備,而中心區域的地台與壁龕宜於讀書喝茶和小憩。中島台常被用作高凳,台階用作觀影和高難度俯臥撐,坡道是貓的跑酷場,充滿野趣。堂屋麵積不大,層次多功能繁複,日常裏經常出現類似電影分鏡和大景深的場景,一個實際被壓縮且分區的空間,在心理和使用上反倒被放大和延伸了。
∇ 堂屋空間改造示意圖
雖然並沒有作為設計的目標,但有一個有趣的結果隨著不平整地麵和過渡空間的建立呈現。野場區域門窗洞口均達到2.4m高且寬度很大,堂屋部分的門洞僅有1.8m高且寬度較小,尺度隨進落徐徐變化。從院落北望視線略微抬高,透視效果被放大,空間深且遠且暗。而從堂屋回望需要略微俯瞰,透視效果被抵消,庭院光亮和綠意如畫在眼前。種種非常規尺度和視覺的偏差調動對於變化的細微感官,加深空間印象。
居室
其餘的25㎡包含廁所、中式廚房和一間臥室,是真實意義上的私密居室。廁所和中式廚房極小極簡,而臥室將床鋪、儲藏櫃、空調、燈、窗簾、電視投影幕整合成一組高低錯落的家具。所有標高皆可坐臥,所有方向都可以投影,絕大部分的野餐桌椅、樂器音響、被褥軟墊和生活雜物都被收納在此,為野場和廳堂的拓展使用和變化提供可能。
明暗調節
如果我們回顧起自然生活裏令人記憶深刻的瞬間,必然有與光影相關的時刻。炎炎大日從密林縫隙投入的斑駁,皎白月色在原野灑落的清輝,螢火蟲在暗中起舞,磷火於墓間遊蕩。黑影幢幢裏遠處的暖色盞燈,風雨飄搖中竹葉在天窗的剪影,蜜蜂鑽透的磚牆流入的點點昏黃,破舊椽子和門縫裏削入的如刀光亮,光和影相生相伴,日和夜交替輪轉。
鄉野之家尋求這樣均衡的明暗氛圍。野場日間光照充足,光影斑駁變化多端,兩塊落地投影幕用以調節光照。入夜時整體昏暗,僅有兩盞星星一樣高懸的三角錐形led燈渲染80㎡的大空間,明確標誌夜晚的到來,這也是全屋唯一有直接照明的地方。堂屋和居室進深較深,白天光照柔和,可以通過門扇的關閉達到全暗的效果。夜間所有的燈光均經過灰泥遮罩石膏板或者淺咖色噴塗鋁板過濾和導向,模擬自然光從各個角度、高度以各種形式滲入屋內的場景,單體燈光照功率不高但數量眾多,可以隨需要改變。從院落看來,穿過深沉的黑暗的野場,鄉野之家在不遠處燈火搖曳。
適應性調整
讓我們暫且拋開關於從農業生活到如今都市商品房得與失的冗長考據與討論,就可持續住宅所需具備的若幹特質作如下歸納:居所形式應調整至恰如其分符合真實需求,而非強製推銷千人一麵的商品屬性亦或浮於表麵毫無實指的籠統風格。唯其確認基本身份,多樣性得以保存,長久活力才具備可能。其願景絕不浮誇,結構力求簡練,避免失衡的目的和冗餘的修飾妨害自然生發的過程。在基本結構裏,務必保留具備“野場“屬性的未定義場所,不僅僅是通過日常生活和居所發生高度連結和深刻體驗,更應具備激發創意、持續演變的動力和可行性。可持續的居所不在建造之初得以完成,而在日複一日的適應性調整裏趨於完善,最終獲得相對長久而接近永恒的的周期。
鄉野之家的創造,才剛剛開始。
∇ 平麵圖
項目信息
項目名稱:鄉野之家
項目類型:建築
設計方: 上海一絎建築工作室
項目設計:2023
完成年份:2024
設計團隊:姚文軒 龍慧燕
項目地址:上海市控江路1169
建築麵積:103㎡
攝影版權:龍慧燕
材料: 瓷磚 灰泥 鋁合金 木飾麵板 玻璃



































