一個房間最動人所在,即當光線從這房間的窗欞穿過,並成為這房間的一部分。太陽從不知道自己有多偉大,直到它照到建築物。
—— 路易 · 康
本案位於南平建陽區,由兩套平層打通,打破、重組,在建構,將空間化繁為簡,元素之間和諧而寧靜,恰到好的的設計語言簡約而不簡單,極致的細節體驗,詮釋最純粹的美感與力量。
01 重塑秩序
靈感與細節交融
藝術是美的內核,是空間濃縮的本質,任其自然發酵產生新的秩序,收獲意想不到的美;尋找光,尋找本質印象,追求自由,永無止境。
天地無界,
光影跳動。
在空間中遊走,自然光透過百葉窗進入室內,光線或近或遠,忽明忽暗,既溫柔又熾烈。
空間的縱橫與開合,在光影的配合下,有序、豐富且層次分明。
打開原始封閉房間架構,協調建築體塊與室內陳設。
梳理平麵動線,明確高開放度的公區,休閑區,客廳與餐廚彼此相通。感受空間最大限度交融,目之所及處關注彼此的生活動態。
02 流動空間
共鳴與自在的呼吸
在自己喜歡的時間裏,按照自己喜歡的方式,去做自己喜歡做的事,對我而言這便是自由。
—— 村上春樹
拋卻冗餘的裝飾陳設,追求簡素設計語言,讓空間成為裝載情感與溫度的容器,在不同時間容納業主的各種生活方式,閱讀、烹飪、辦公、休閑……
03 極致細節
是極簡也是人間煙火
形式融入功能,體塊間自由組合,呈現幾何美學的藝術氣息。整體的係統家居貫穿空間美學,開放自由的收納空間,預留未來讓業主自由裝飾的更多可能性。
空間的一致性,是設計細致入微的考量。一體化岩板吧台、包豪斯風格家具,金屬質感與婉約木色碰撞,極簡設計讓空間氛圍更加純淨。
04 靜謐棲居
質感營造
舒適自由的視覺,源於設計對細節的敏銳洞察與悉心刻畫。通過設計手法的把控、材料工藝的建造,精心呈現如藝術品般一體質感的生活場景。
相較公區的靈動,臥室更加靜謐。純淨之餘,舒心依靠窗畔,在與自然的交互中,舒緩情緒。
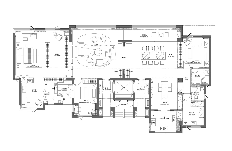
∇ 平麵圖
項目信息
項目名稱 -逐光踏影
設計機構 -HHD恒合立創設計機構
主創設計 -潘自立、林祥棋
設計團隊 -張弓、楊洋、陳榕、陳明強、王俊傑 、潘宏偉
項目麵積 -300㎡
項目地址 -福建 南平
施工單位 -吳勇軍
主要材料 -藝術塗料 天然木皮 岩板
項目攝影 -徐義穩


































