分子藥局 · 亦近亦遠,試驗性裝置零售概念店
資訊爆炸而感官快速消化刺激的時代,身心維持長效高速運作實則過度耗能,當意識因能量枯竭而遲鈍,需要能沉澱降噪、活絡機能的情緒留白。
雖是藥局,卻努力顛覆藥局的空間意義與行為脈絡,分子藥局自2016年設立品牌旗艦店,以健康選物概念出發,希望由源頭打造對生活型態的覺察,讓尋求健康也能成為美的途徑,近日將於中國台北設立第一間品牌新據點。
∇ 分子藥局概念圖
迂回切入,縮放有別
猶記旗艦店翻轉空間樣態及材質來突破傳統藥局印象,以及人們對「自然」指涉的視覺框架。進化至分子藥局2.0版本,水相設計實驗的概念將從具象符號、材料提升為對行為和情境的掌控力,凸顯空間與個人感受的相依狀態。
由於店鋪位處百貨地下商場,鄰近電梯出入口及用餐區,空間高度、人造光源均受限商場規定,周圍環境紛雜難控。因此需先厘清:空間作為品牌的第一印象,將如何塑造觀者對內部的期待及理解?
設計師想像日常事務淹沒自我的感受,皆如身處沙漠,廣袤而難以掌握力量。若有一處予人視覺心境獲得喘息寧靜的時空,能否將之定義為感官的綠洲?品牌與百貨賣場的空間關係恰如綠洲與沙漠,僅管邊際相銜,綠洲仍是地景裏突兀、宛如平行世界的鮮明存在。
透過設計,設計師希望創造帶有透視性、同時亦與外圍拉開距離的空間,藥局將如情境載體過濾紛擾、淡化情緒並引導行為,利用感受的轉折建構澹然意境。
微小構建鏈結聚合,圍塑彈性皮層
首先,設計師采用現有規格、管徑不一的金屬管計算模組化係統,重複編排,點線麵如分子鏈接聚合形成展架,再拉高至2米強化立麵圍塑性。向內斜切通道式入口,利用繞、折動線在有限坪數裏複雜化空間層次,使由外至內的視線、路徑與情緒期待不直接觸及答案,未能揭示全貌。
建構空間與動線的展架結構俐落穿透,仍須半透皮層屏蔽內部行為、提高隱密感。從分子穿透細胞的概念發想,設計師選擇玻璃纖維線水平纏繞作為背板,遠望如半透明薄膜霧化後方實體細節、模糊場域意圖,必須真正穿入才能完整感受全貌及內容。
薄膜不僅於視覺表麵形式區隔內外,更像斷開時空關聯性的介質,使用者進入所感受的環境對比元素,將從各層麵滲入個人經驗。例如整體色調非鎖定人們對綠洲字義及認知之「綠」,而是從象征純粹、科技的品牌藍色定調,以環境形成秩序真空的理想情境,讓「綠洲」化為更具詮釋彈性的寓意,讓設計語言跳脫具象符號的選擇限製。
∇ 分子藥局概念爆炸圖
有機聚散,尋得屬於自己的島嶼
別於外圈半透立麵的量體感,內部動線以展台分流,從細胞形狀及依偎的曲麵間隙延伸為動線關係,想像空間蓬鬆與緊密的活動感,將此概念演化成平麵分布,多元出入口、斜切發展的通道、展架之間收放疏密空間感,替品牌帶來一致但細節多樣的畫麵。
不同於外圈層架穿透結構,中央展台設計了半身高厚實量體,各截麵帶著不同尺度轉折的階梯,領著視線穿鑿起伏。展台如一座座微型建築因時間之流衝刷、逐步融入地景,殘留文明輪廓透露古老的線索。
圍塑與滲透、隔絕與共存、自然與文明,不願被一眼看透卻同時期待被理解,這些對比在日常也在個人經驗裏,透過空間聚合成一體兩麵的共時感受,是設計師想實驗的進化手法。
一間不像藥局的藥局,一處顛覆印象的綠洲,穿越表麵形式賦予的邊界,在有限場域扭轉距離感受,以此建構心靈的內外之別。突破藥局與人的供需框架,擴充想像來鬆動思考的慣性,從行為與美感扮演保養身心的精神補給地景。
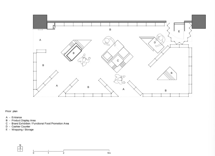
∇ 項目平麵圖
項目信息
項目業主|分子藥局
空間設計|李智翔、林其緯、林佳靖/水相設計
空間性質|零售店
座落位置|中國 台北
室內麵積|52㎡
空間格局|產品展示區、品牌區、機能飲食推廣區、結帳櫃台
設計時間|2023.10~2023.12
施工時間|2024.04~2024.05
主要材料|金屬管、玻璃纖維線、透明玻璃、水染木板、藍色手工漆
項目攝影|李國民空間攝影事務所




































