為“大堂咖啡吧”注入新的篇章
由香港豐富的咖啡文化孕育而成的品牌Nodi,在上海繁忙的靜安嘉裏中心呈現了其最新創意。Nodi這個名字源自拉丁語:“結”,象征著人與人、地點與地點之間的連接,以及對咖啡的熱情。這個年輕的精品咖啡品牌通過享用咖啡的簡單行為,轉化為促進人際互動和創造力的渠道,為自己在市場上創造了一席之地。
隨著它在大中華區的首次亮相,Nodi的首家店鋪坐落在高端的靜安嘉裏中心辦公樓內—這裏常有時尚編輯、銀行家和各界專業人士光顧。在Blue Bottle、%Arabica、Fuel和Starbucks Reserve等巨頭的包圍下,Nodi為咖啡體驗引入了一種全新的見解。
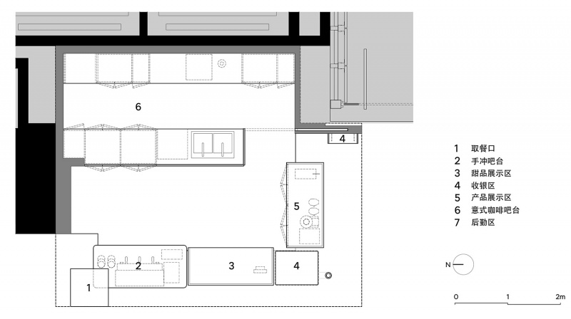
Nodi店鋪占據嘉裏中心辦公樓12米高的大堂一角,並精心劃分出三個區域:咖啡吧台、室內座位區和一個向南的室外庭院,這個戶外座位區遠離了繁忙的街道,也帶領人們通往嘉裏中心的商場入口。
反映Nodi品牌價值觀——靈感賦予、多樣性、活力表達和成熟的規劃,Office AIO以一個亭式結構的方式,在開敞的大堂裏體現了有趣且充滿細節的呈現。
∇ 概念圖
實現高效與品牌信仰的完美結合
咖啡吧台被進一步劃分為前場和後勤兩個區塊,旨在確保咖啡製作區域優雅且整潔的同時,實現專業的高效運作。在這兩個部分之間,團隊從傳統中國屏風中汲取靈感,創造了一種既提供隱私又保持透明度的隔斷。這個格子狀的木製隔斷乍看平凡,但近看可以發現由品牌字母“n”所構成的圖案,增添了豐富性和微妙性。並在後勤區的背牆,安裝了與屏風協作的燈箱元素,暖色調的燈光為咖啡師提供了柔和的照明,也映出了咖啡師忙碌的剪影。
考慮到大堂咖啡吧日常的接待量,前吧台采用了經典的L形配置,同時期望為它注入獨特的風格和體驗:吧台內的每個功能都以獨立的模塊表現,每個模塊有著自己的形狀與細節,豐富了傳統的單一造型吧台,展現出活力和趣味,強化了品牌的俏皮而精致的理念。
定製單品塑造場景一體化
座位安排提供了多樣化的選擇,包括HAY品牌的座椅和由Office AIO為此項目定製的桌椅,可容納不同形式的聚集。通過紋理豐富的綠色大理石(Persian Green Marble)和深綠色木飾麵與吧台區的材料組合產生互動,盡管地板的材料不容許更改,也達到了統一品牌空間感的目的。
一個特別有創意的動作是商場入口處的超大尺寸結繩裝置,兼作室外座位,以俏皮的方式回應Nodi的品牌含義。由Office AIO精心打造,使用真實的繩子捕捉結的自然形態,然後按照符合人體工學的尺寸進行放大調整。攜手比利時品牌Sixinch – 以其獨特彈力塗層技術的泡綿產品而知名 – 打造這一套室外座椅。這個結繩裝置不僅在視覺上引人注目,而且耐用兼多功能,完美封裝了Nodi的根源和其促進交流的承諾。
∇ 超大尺寸結繩裝置
隨著Nodi在上海紮根,它帶著成為不僅僅是一個咖啡品牌的雄心壯誌。它是靈感的避風港,創意的熔爐,也是Nodi通過咖啡這一普遍語言連接人們旅程的新篇章。
∇ 平麵圖
項目信息
客戶: Nodi
項目地址: 中國上海
麵積: 121㎡
設計任務:室內設計 、產品設計
主創設計師:關穗棋
設計師:楊霄、趙雪、孫運萱、解估漁
項目委任: 2023
項目完成: 2024
攝影: Wen Studio
燈光設計: Office AIO & 喬燕莎
工程公司: 北京億達和信裝飾工程有限公司

























