這家酒吧是沉浸在雞尾酒和音樂世界中的當代文化的體現。它位於基輔曆史中心布爾薩酒店一樓的波迪爾中心。我們工作室的任務是創建一個小而舒適的音樂酒吧,每個周末都會吸引黑膠唱片愛好者和現場表演愛好者,成為來自世界各地的音樂家和黑膠唱片收藏家的中心。
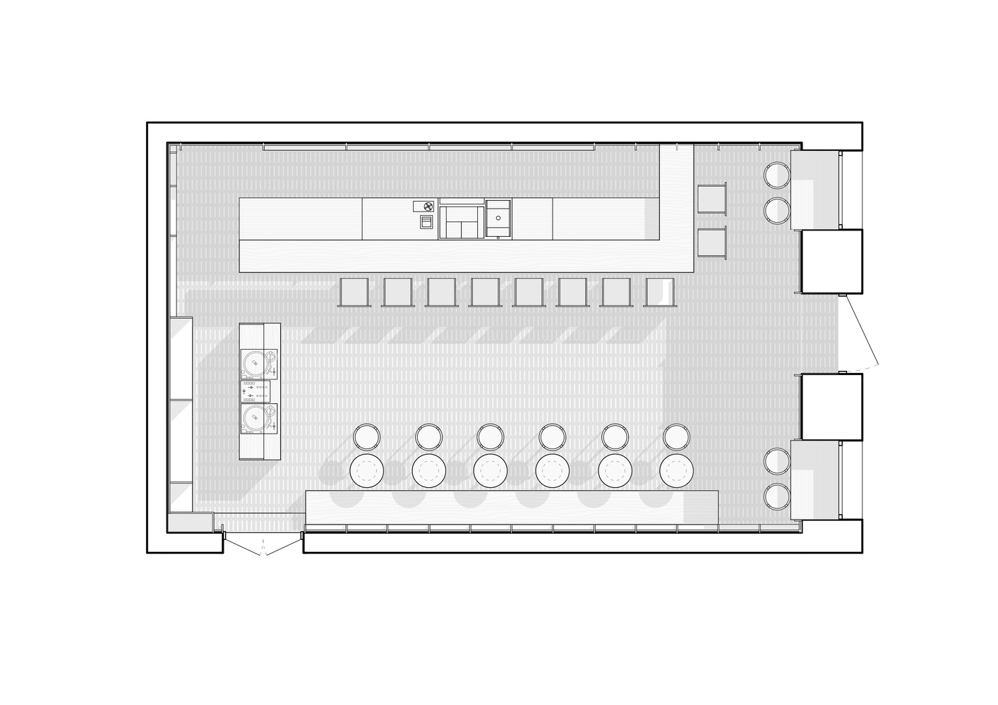
該空間具有簡單而實用的分區:一進門就是 DJ 台和黑膠唱片收藏區,中間是供客人自由活動的舞池,兩側是供應雞尾酒和小吃的吧台。特別注重聲學設計。聲音是使用一些最好的聲學係統 – devonojas 創造。建築師的想法是創造一個讓人聯想到樂器的空間,每個訪客都會感覺自己置身於一個巨大的音樂揚聲器中,周圍是膠合板的舒適氛圍。
在我們的設計中,我們旨在巧妙地實現東方風格的特點:正交線條、幹淨的形狀、物體的水平方向、牆壁的垂直節奏和正交天花板。使用的主要材料是膠合板,作為牆壁、天花板和家具裝飾的基礎,營造出獨特的氛圍。此外,不鏽鋼還用於窗戶台麵和椅子腿。照明在營造夜晚氛圍方麵起著至關重要的作用。我們結合了客人座位區的重點照明,創造了小亮點,並使用柔和的線性照明來強調乙烯基貨架和精致的飲品。這樣,每位客人都會感到特別。可以調整照明強度,為場所的不同區域營造不同的氛圍。
∇ 平麵圖
版權聲明:本站所有文章除投稿授權發布外,其他文字內容均為原創,享有著作權保護,未經許可不得以任何形式進行轉載(包括且不限於:媒體、網站、公眾號等)。所有項目照片/設計圖形版權歸原作者所有。本站部分內容源自網絡公開資源或用戶分享,如若侵犯了原作者的合法權益,可聯係我們進行處理。





























