人類體內的每個原子都來自幾十億年前的恒星,宇宙大爆炸的星塵組成了我們所有人。
Every atom within the human body originates from stars that date back billions of years, as the stardust of the Big Bang forms the essence of our existence.
當我們說起“度假”時,想到的不僅是空間維度上的逃逸,也是時間維度中的遊離。告別世俗與具體,穿越時空仰望星光,自由漫步於冰川與海洋、藝術與曆史——不沉浸於過度飽滿的感官轟炸中,而在人與人和自然、人與過去和未來的連接中,獲得安定的幸福和持久的能量。
When we talk about “vacation”, it entails not only escaping in terms of space but also drifting through time: Departing from the ordinary and the tangible, journeying through space and time while gazing at the starlight, freely wandering among glaciers and oceans, art, and history—discovering serene happiness and lasting energy not amidst overwhelming sensory bombardment but in the connections between humans and nature, between the past and the future.
秉持著這樣的認知,北京對角線新作——武漢曲水蘭亭度假酒店,以地質學概念“深時”為主題,窺探隱藏億萬年的地球往事。從結構、肌理到照明設計,以建築的秩序感讚美自然的廣闊與神秘。
Embracing this perspective, DJX Design’s latest project—the Wuhan Qushui-Lanting Resort Hotel, themed around the geological concept of “deep time” —delves into the concealed history of the Earth spanning billions of years. From structure and texture to lighting design, it extols the expansiveness and enigma of nature through an architectural sense of order.
深時之旅,地球往事的投影
A Journey into Deep Time, A Projection from the Earth’s Past
關鍵詞:深時/Deep Time
地質學中的時間概念,
指地球那“令人眩暈的漫長曆史”,
以“世”和“宙”為計時單位。
Keywords: Deep Time
This geological concept of time
refers to the Earth’s “vertiginous extensive history,”
measured in terms of epochs and eons.
言及“深時”,人們首先想到的是斯堪的納維亞的冰川、岩石、火山與海床。實際上,超越人類度量衡的“深時”既通往過去,也麵向未來。那些關於“未來廢墟”的想象,總是伴有洞穴坍塌的巨石、未經修飾的粗糙紋理和神秘幽暗的光線。
When discussing deep time, thoughts of Scandinavian glaciers, rocks, volcanoes, and sea beds often come to mind. Deep time, transcending human metrics, extends into both the past and the future. Visions of “future ruins” are consistently accompanied by collapsed boulders in caves, untouched rough textures, and mysterious dim light.
酒店大廳的設計就營造了類似的氣氛——在超現實的瞬間中人們得以與遠古和未來對話,時空暫失平衡。傾斜的“岩壁”碎裂成兩塊搭靠在一起,形成庇護感很強的服務區。“岩壁”中散落下來的碎石,則自然堆疊成為前台。
The design of the hotel lobby captures this atmosphere—a surreal moment where one can engage in a dialogue with the distant past and the future, momentarily disrupting the equilibrium of space-time. The tilted “rock wall” fractures into two pieces leaning against each other, creating a shelter for the service area. While the fallen debris naturally stacks up to form the reception desk.
長長的弧形牆麵如風化的山石,尺度宏大、厚重古樸、不加裝飾,具有滄桑的力量感。約四層樓高的極致灰色體量,在寸縷天光的照射下讓人想起信仰空間的神聖以及柏拉圖的“洞穴隱喻”,彰顯出沉靜而深邃的磅礴之勢。
The long, curved wall, reminiscent of weathered mountains and rocks, is grand in scale, heavy, rustic, and unadorned, emanating a sense of vicissitude. This gray volume, approximately four stories high, evokes the sacredness of religious spaces and Plato’s “allegory of the cave” when bathed in subtle daylight, displaying a serene and profound momentum.
在“岩壁”造型與有機的弧形牆麵以及上層玻璃幕牆之間,產生了大小不一、形態迥異的垂直縫隙。柔和的自然光線傾灑其間,微妙的內嵌燈帶氤氳其裏。在大廳緩緩漫步,仿佛置身於詹姆斯·特瑞爾的光影藝術作品中。
Vertical gaps of diverse sizes and shapes emerge between the “rock wall”, the curved wall, and the upper-level glass façade, allowing natural light to softly pour through. Subtle embedded light strips diffuse within, creating an atmosphere where strolling through the lobby is akin to experiencing the light and shadow artistry of James Turrell.
由此,時與光的物理存在以感官的形式表現出來。
Thus, the physical presence of time and light is manifested in sensory forms.
室內景觀,人類世空間秩序
Interiorscape, Spatial Order in the Anthropocene
關鍵詞:人類世 /The Anthropocene
2000年提出的地質年代劃分,
類似於“寒武紀”,指地球的最近代史,
人類活動對氣候及生態係統造成全球性影響。
Keywords: The Anthropocene
The Anthropocene, a geological epoch proposed in 2000
and comparable to the Cambrian, refers to the Earth’s most recent history,
marked by global impacts on climate and ecosystems due to human activities.
室內景觀並非拙劣地、割裂地複製室外環境的片段,而是通過人類“建築的有序”來抽象地、整體地組織排列原始“自然的無序”。除了大廳象征的“對未知自然的崇拜”,這種秩序還常常以對稱的形式出現,善借純粹的幾何符號矩陣來創建空間序列。
The interior landscape is not merely a crude and fragmented replication of outdoor environments, but rather an abstraction and holistic organization of the primal “natural disorder” through the artificial “architectural order.” Beyond symbolizing a “reverence for the unknown nature” that the lobby embodies, this order often manifests itself in symmetrical forms, utilizing pure geometric symbols to create spatial sequences.
沿著酒店空曠的大廳行進,梁結構投下的陰影曆曆可數。倏爾,紀念碑式的混凝土圓筒結構與玻璃電梯並峙,漫長而嚴肅的高塔盡頭是天窗裏的白雲藍天。與大廳幾何化的“岩壁”一樣,這樣的“人工化”的界麵會同時帶來抽離感和安定感,不經意間引導人的運動與靜駐。
Navigating through the expansive hotel lobby, shadows cast by beam structures are neatly delineated. Suddenly, monumental concrete cylindrical structures stand juxtaposed with glass elevators, and at the end of the elongated and solemn tower, a skylight opens to reveal blue skies and white clouds. Similar to the geometric “rock wall” in the lobby, such “artificial” interfaces evoke both a sense of detachment and security, subtly guiding the flow and stillness of occupants.
二層餐廳通過光的“物質化”來增強空間的情感力量。半高的牆麵限定了光的路徑,餐廳的光量、溫度和方向由此得到精準控製。與此同時,微妙的光照與不均勻的、節奏恰切的“牆框”隔斷,營造了更具有層次的親密感和舒適感。
In the second-floor restaurant, the emotive power of the space is intensified by “materializing” the light. Half-height walls define the path of light, precisely controlling its intensity and direction, as well as the room temperature. Simultaneously, the subtle illumination and the uneven but rhythmically placed “wall frames” acting as partitions create a more nuanced sense of intimacy and comfort.
這種人工化的自然氣氛,在三層酒廊體現得更加淋漓盡致。倒錐形的巨型方柱仿佛冰島的黑色玄武火山岩,幽暗的光斜斜地漫射在垂直百葉上,堪稱異世之景。建築立麵結構的窄縫將自然光削切成具有方向性的薄片,薄紗般縹緲變幻,仿佛在沉靜地低語。
This artificial yet natural atmosphere is exemplified on the third-floor lounge. Inverted cone-shaped colossal pillars resemble the black basalt rocks of Icelandic Hekla volcano, with dim light slantingly diffusing onto vertical louvers, creating an otherworldly scene. Narrow slits in the building facade cut natural light into directional slices, ethereally shifting like thin veils, as if whispering in silence.
光與形,觸覺與聽覺,以整體的方式同時向所有感官開放。
Light and form, touch and sound, holistically open up to all the senses simultaneously.
社交式康養,城市度假新體驗
Social Wellness, A New Experience of Urban Vacations
關鍵詞:社交式康養/Social Wellness
為城市度假酒店重新定義“奢華”:
通過空間設計創造歸屬感、促進有意義的聯係,
經由共享社交體驗提升身心狀態。
Keywords: Social Wellness
Reimagining “luxury” for urban resorts
involves creating a sense of belonging and fostering meaningful connections through space design,
thereby enhancing mental and physical well-being via shared social experiences.
關於城市度假酒店的設計,北京對角線設計師一直在思考:以往,人們去度假酒店隻是追求奢華的體驗和情緒放鬆;如今,人們希望寧叢中汲取能量並建立聯係和平衡。豪華奢闊的大堂吧、健身房和單一的客房設計,似乎已經不能滿足今天的國人了。
In contemplating the design of urban resort hotels, the designers at DJX Design have been pondering a shift in preferences. In the past, people visited resort hotels primarily in pursuit of luxurious experiences and emotional relaxation. However, contemporary individuals seek to derive energy from tranquility and establish connections for a more balanced experience. The traditional elements of grand lobby bars, gyms, and standard room designs seem inadequate for the preferences of today’s Chinese vacationers.
於是對角線在設計中融入了對當下時代和地域文化的觀察,在度假酒店中著意添加了許多“社交式康養”的內容:在相對靜止的空間體驗中,促進有意義的社交與服務。如鬆弛的水療美容與養生,私密的交談與放空,愜意的飲茶與品香,都複合在客房和SPA區域的設計中。
Consequently, DJX Design has incorporated observations of current trends and regional cultures into their resort hotel designs. The inclusion of numerous elements of “social wellness” aims to promote meaningful social interactions and services within serene spatial experiences. Relaxing spa treatments, wellness activities, intimate conversations, moments of unwinding, as well as leisurely tea-drinking and fragrance appreciation, are seamlessly integrated into the design of guest rooms and spa areas.
穿過安靜的長廊到達地下一層SPA區,人們急躁的情緒也慢慢寧靜下來。天光經過四層過濾滲透到SPA區,清澈無瑕、溫柔似水。在低矮素雅的弧形天花的庇護下,在宛若藍洞的“露天”溫水池畔,從容開啟一段忘卻時間的身心療愈。
Venturing through the tranquil corridors to the underground spa area, one’s restless emotions gradually subside. Natural light filters through four layers, permeating the clear and flawless spa area, creating a gentle watery ambiance. Sheltered under the low, elegant arched ceiling, next to the “open-air” warm-water pool resembling a blue hole, vacationers can serenely embark on a therapeutic journey, forgetting the passage of time.
純粹的有機弧形山石“洞穴”形成安全的繭房,柔軟的輪廓在提供自由的同時給予親密擁抱,在隔絕嘈雜的同時削弱壁壘。通過設計重塑的人工自然環境,真正融合了東方詩學與深時之美。北京對角線相信,這是對未來城市度假酒店模式探索的一次有益探索。
Organic arched rock creates secure cocoon-like “cave,” with soft contours providing freedom and an intimate embrace, simultaneously weakening barriers and isolating from noise. The artificial natural environment reinvented through design is a true fusion of Eastern poetics and the timeless beauty of deep time. DJX Design believes this exploration represents a beneficial direction for the future model of urban resort hotels.
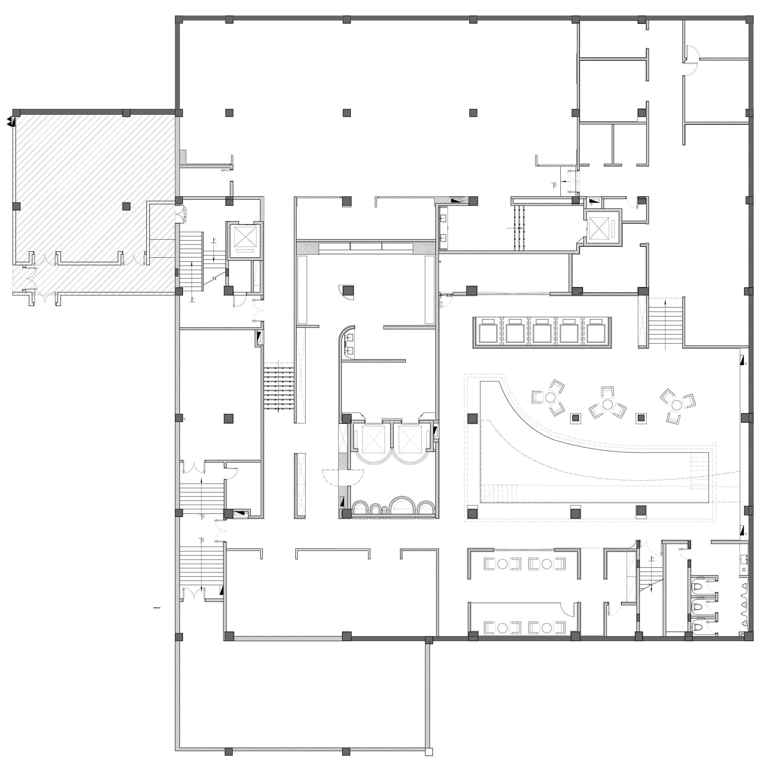
∇ B1 F-Plan
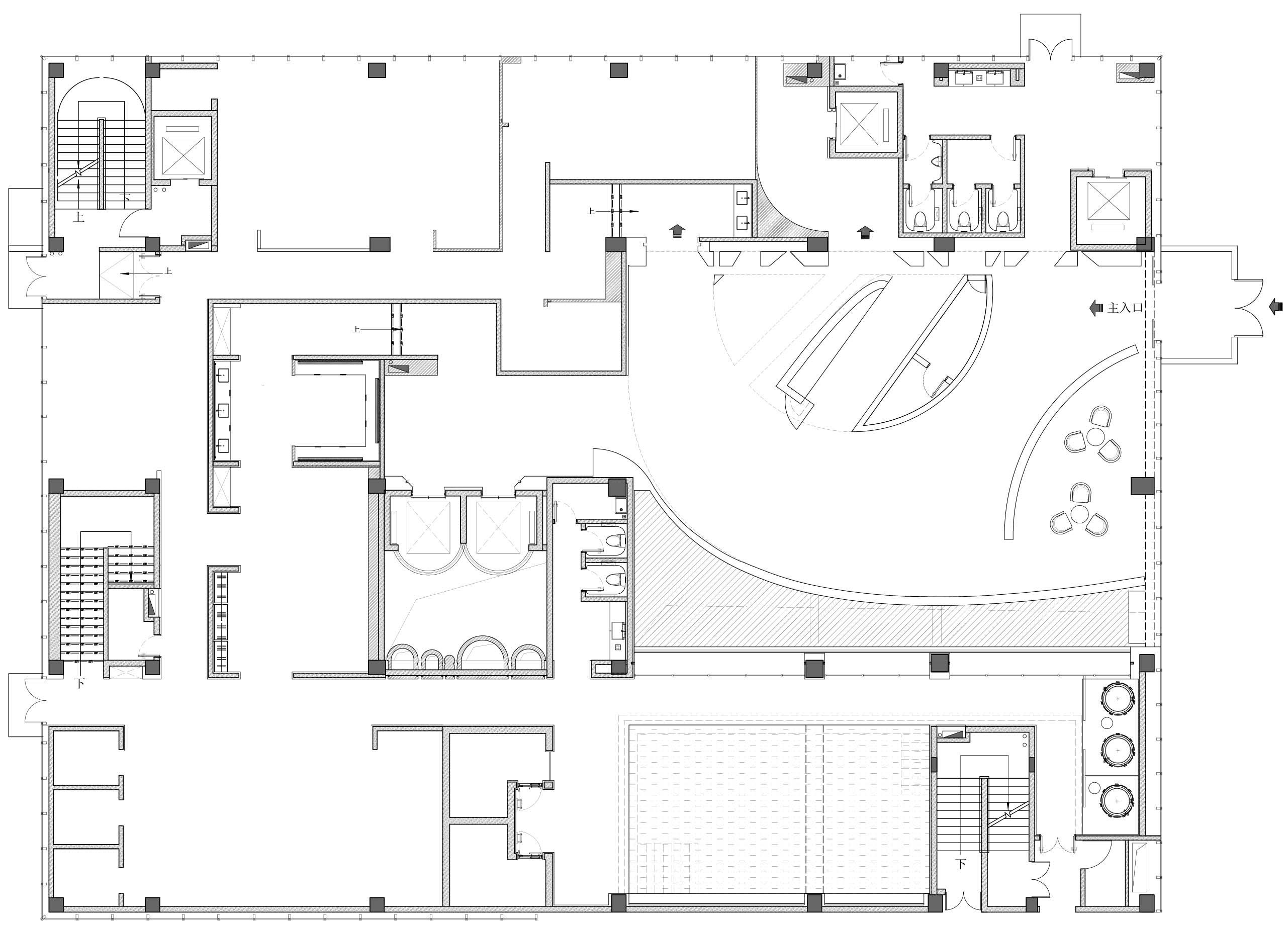
∇ 1F-Plan
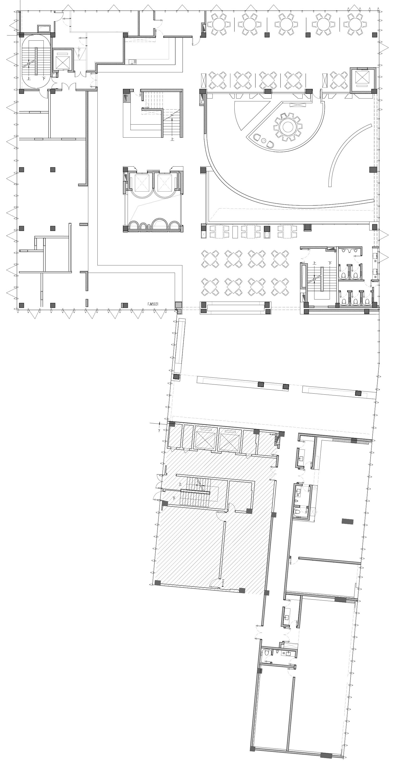
∇ 2F-Plan
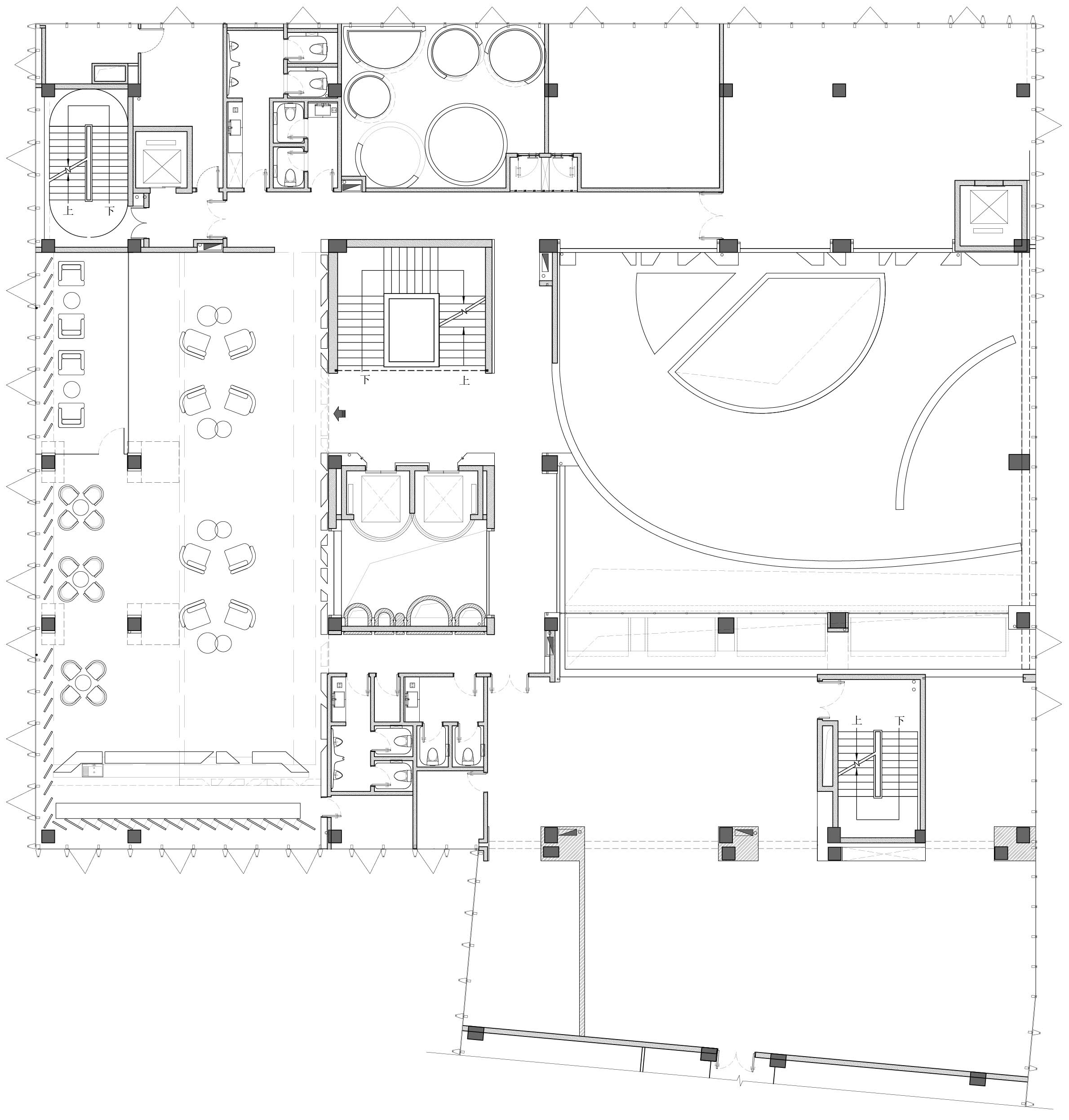
∇ 3F-Plan
項目信息
項目名稱:武漢曲水蘭亭度假酒店(光穀店)
項目麵積:10277㎡
完工時間:2023年11月
設計範圍:建築/室內/燈光
設計公司:北京對角線設計
空間攝影:歐陽雲
Project Name: Wuhan Qushui-Lanting Resort Hotel (Guanggu Branch)
Project Area: 10,277 square meters
Completion Date: November 2023
Scope of Design: Architecture / Interior / Lighting
Design: DJX Design
Photo Credits: Ouyang Yun



















































