terra firma 源自拉丁語,意為“堅實的地麵”,是水手們用來描述他們對陸地和堅實立足點的懷念的一種表達方式。海上生活受製於巨大的洋流、不斷變化的潮汐和凶猛的風;回到港口,安全的港灣給人一種穩定和永恒的對比感。
這棟別墅的居民都是水手;他們的船停泊在距離他們前門僅幾米的地方,他們潛意識裏渴望他們的家能夠滿足對堅實地麵的渴望,即建築中的堅實土地。
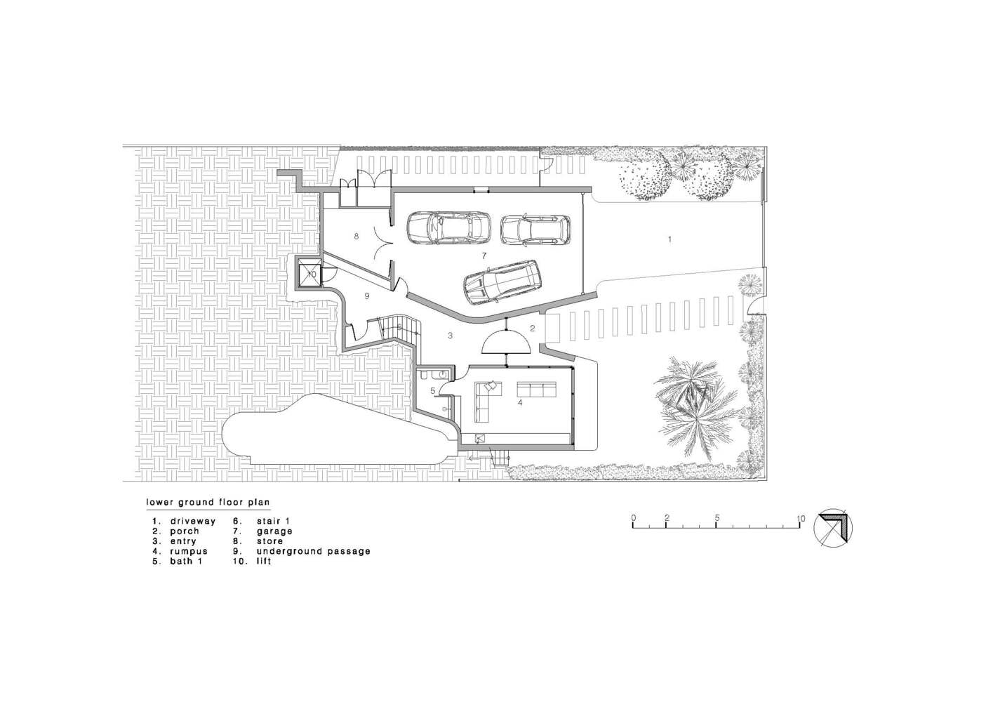
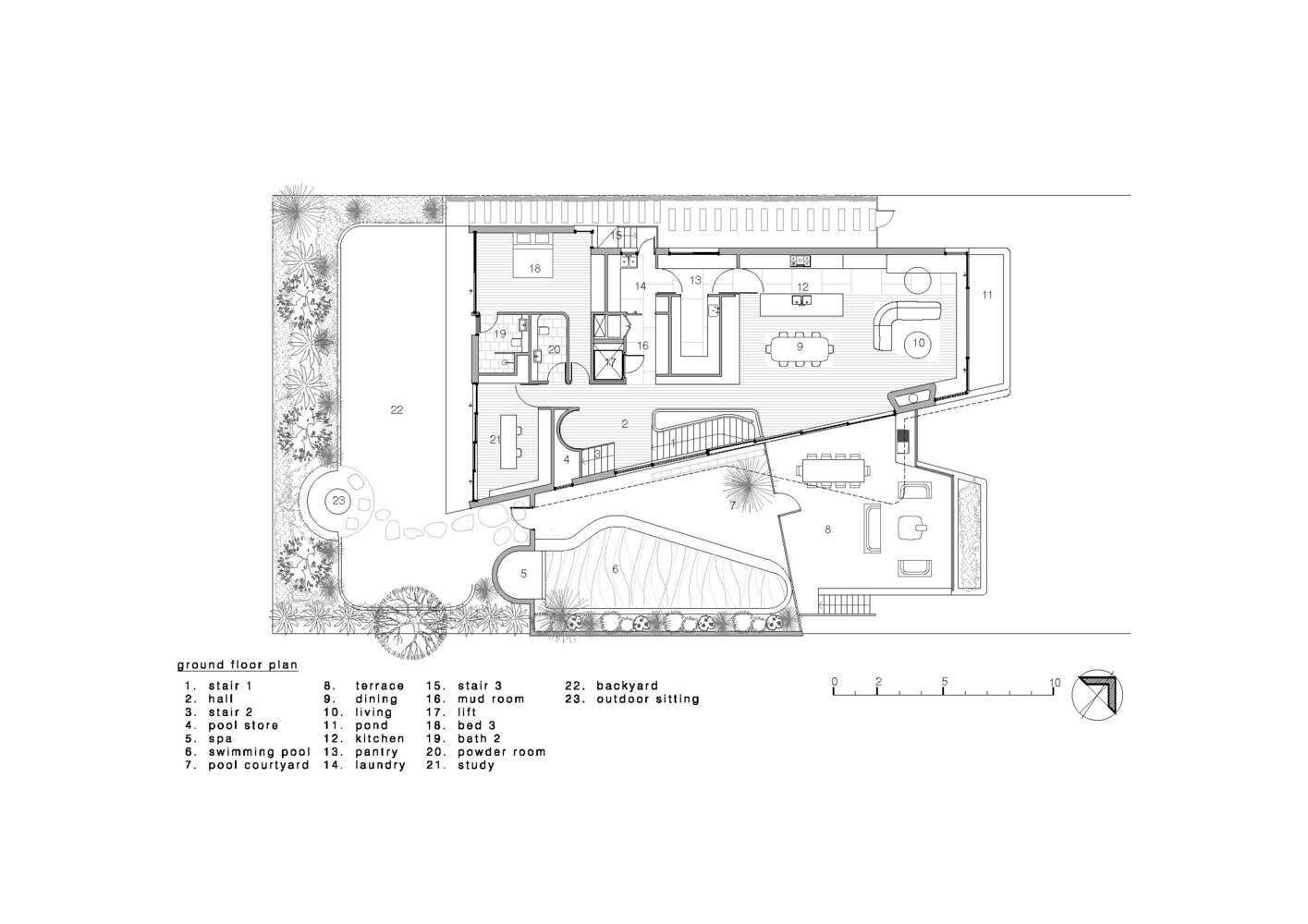
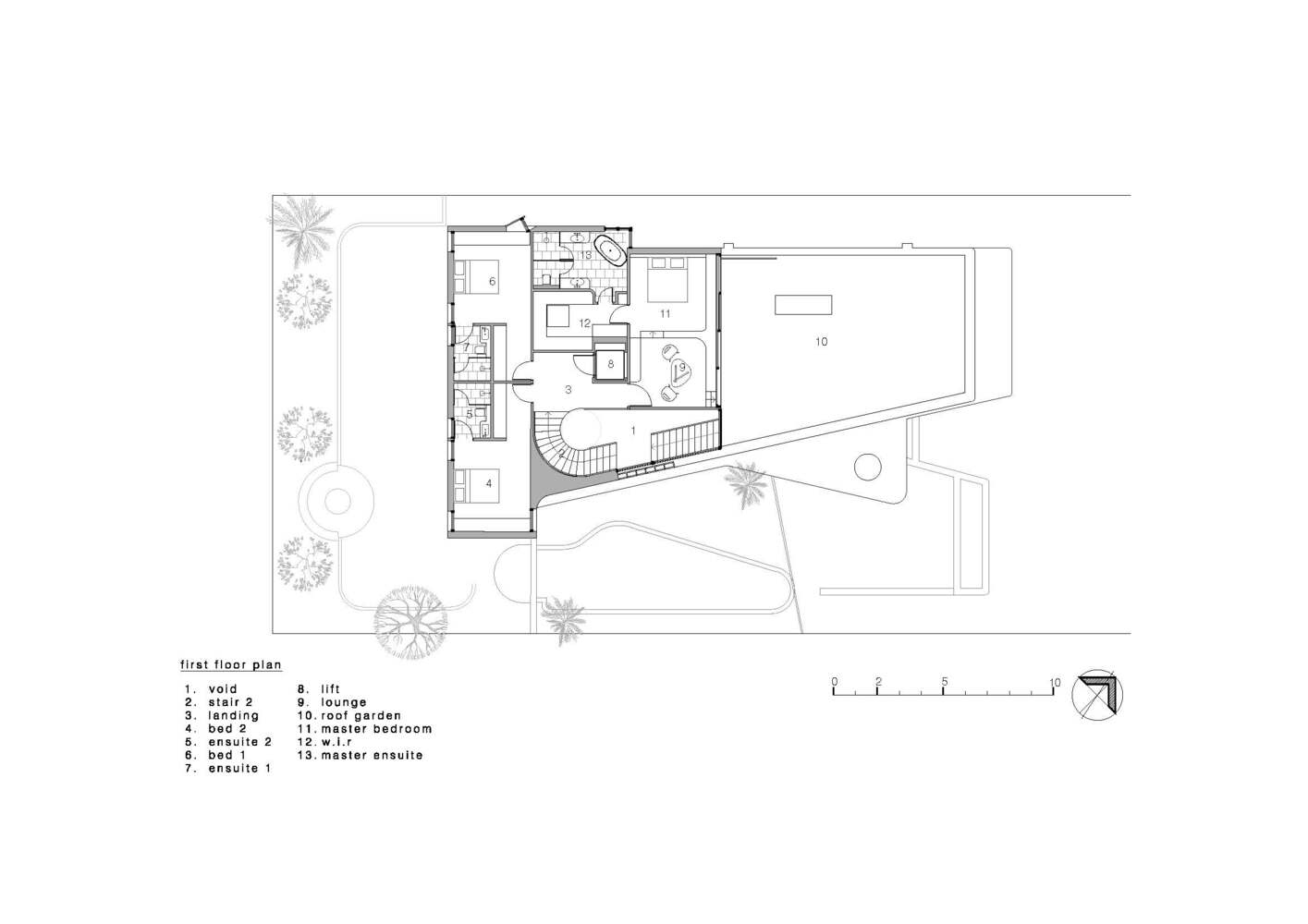
∇ 平麵圖
版權聲明:本站所有文章除投稿授權發布外,其他文字內容均為原創,享有著作權保護,未經許可不得以任何形式進行轉載(包括且不限於:媒體、網站、公眾號等)。所有項目照片/設計圖形版權歸原作者所有。本站部分內容源自網絡公開資源或用戶分享,如若侵犯了原作者的合法權益,可聯係我們進行處理。




































