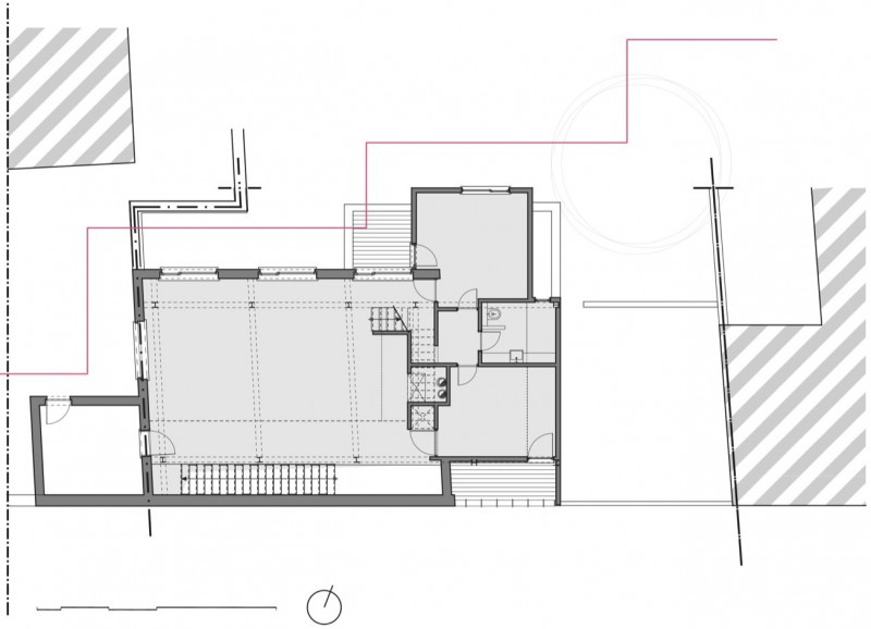
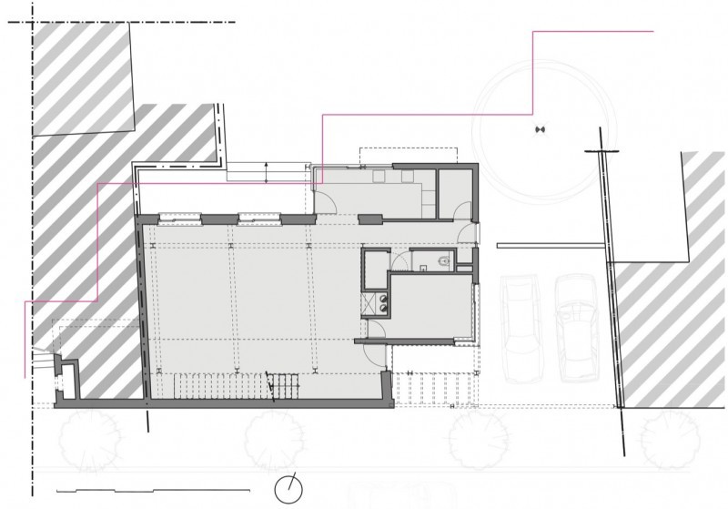
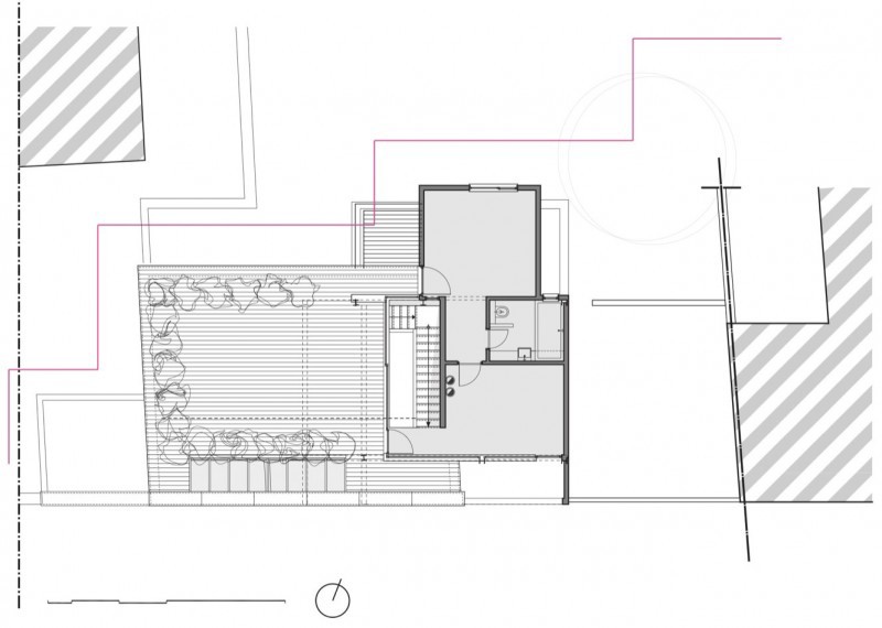
這間閣樓位於比利時布魯塞爾伊克塞勒,建築麵積為300平方米,由一棟舊木工車間建築改造而成,設計師為Bekhor Architecte。
這是一個典型的加建建築,利用原有建築的基礎擴建出新的建築空間,主要建築材料為工型鋼、木板材、塗料、不鏽鋼構件。對於要做鋼結構閣樓的朋友這是一個很不錯的參考形式,這種鋼結構閣樓設計的施工簡單且實用,安全性也高。
Bekhor Architecte設計師官方網站: Bekhor Architecte
Photos © Laurent Brandajs
Content Copyright © www.online4teile.com
版權聲明:本站所有文章除投稿授權發布外,其他文字內容均為原創,享有著作權保護,未經許可不得以任何形式進行轉載(包括且不限於:媒體、網站、公眾號等)。所有項目照片/設計圖形版權歸原作者所有。本站部分內容源自網絡公開資源或用戶分享,如若侵犯了原作者的合法權益,可聯係我們進行處理。



























