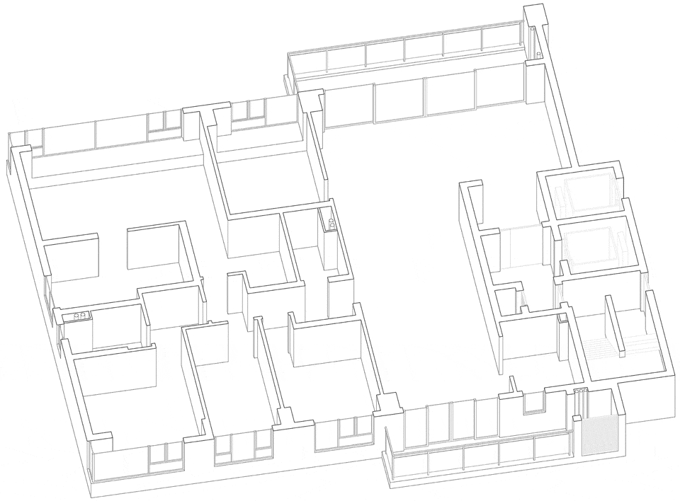
這所住房位於順德大良新區,毗鄰順峰山公園。樓層視野極佳,站在陽台,不遠處靈秀的山湖美景盡收眼底。業主一家人把這個房子作為第二居所,男主人是一位企業家, 希望房子能有靈巧的空間安排並可以體現出一種誠樸、自然的氣象。麵對既定的動靜分區戶型布局,在厘清業主居住需求後;我們思考的是如何重構空間秩序,並將東方美學意趣賦予其中。
∇ 空間秩序重構設計過程
我們將入戶門口移至過廳,入門後動線先聚於此點再散開,讓去向不同空間的路徑分明,客廳的完整性與門廳的過渡空間也得以保證。一舉多得的調整使過廳成為動區的核心,充當著“橋”的作用聯合餐廳、客廳縱向延展形成連續而開敞的一體化起居空間。移步靜區,重新整合的空間疏密有致。開放式書房帶來外部自然的光與風,藝術掛畫點綴牆間,原本黯淡的走廊空間被激活,邊界也被消解、模糊。
為了突破客廳的空間界限,近8米長的陽台被設計成榻榻米並納入客廳成為“家的舞台”。作為“舞台”背景的落地玻璃窗引入外部風景,仿佛一幅延綿不絕的山水畫卷環繞著客廳展現四時之景。窗簾的作用不僅能過濾光線,亦能調節隱現外部風景。律動的光線,若隱若現的景色等自然介質讓空間煥發生機,充裕而盈動。連接“舞台”的是“廣場”,現代人居家的休閑生活不再是以圍坐電視為主,一組背靠背沙發的放置結合榻榻米將客廳分隔成多個功能區。
∇ 日常生活場景上演於“舞台”
隱藏內容
此處內容需要權限查看
會員免費查看版權聲明:本站所有文章除投稿授權發布外,其他文字內容均為原創,享有著作權保護,未經許可不得以任何形式進行轉載(包括且不限於:媒體、網站、公眾號等)。所有項目照片/設計圖形版權歸原作者所有。本站部分內容源自網絡公開資源或用戶分享,如若侵犯了原作者的合法權益,可聯係我們進行處理。













