這是我在台中的第一間自宅,室內隻有60㎡,但我希望能夠有2+1房的使用彈性,因為設定這邊是周末過去住為主,所以希望公共空間能夠最大化,房間隻是睡覺不需要太大,我希望這個空間對小孩是安全的,基本上可以做導圓的地方都做了導圓或圓弧,另外我們也在房間牆壁挖了一個洞,放了一個可收的溜滑梯,希望這個家是有趣跟充滿想像力的。
– 原有平麵 –
當初會買這間預售屋就是知道低樓層看出去會有一整片的綠樹,所以在設計發想中盡可能讓綠樹帶入室內。原有格局雖然有三房其實也都不大,因為我設定這裏為渡假宅所以其實兩房的需求就夠,除非有朋友或家人要來才會需要第三房,所以我們將第三房及客浴牆壁退縮,讓客廳深度留到六米,希望一進到這個空間就能感受到外麵的綠意帶入室內。
– 平麵設計 –
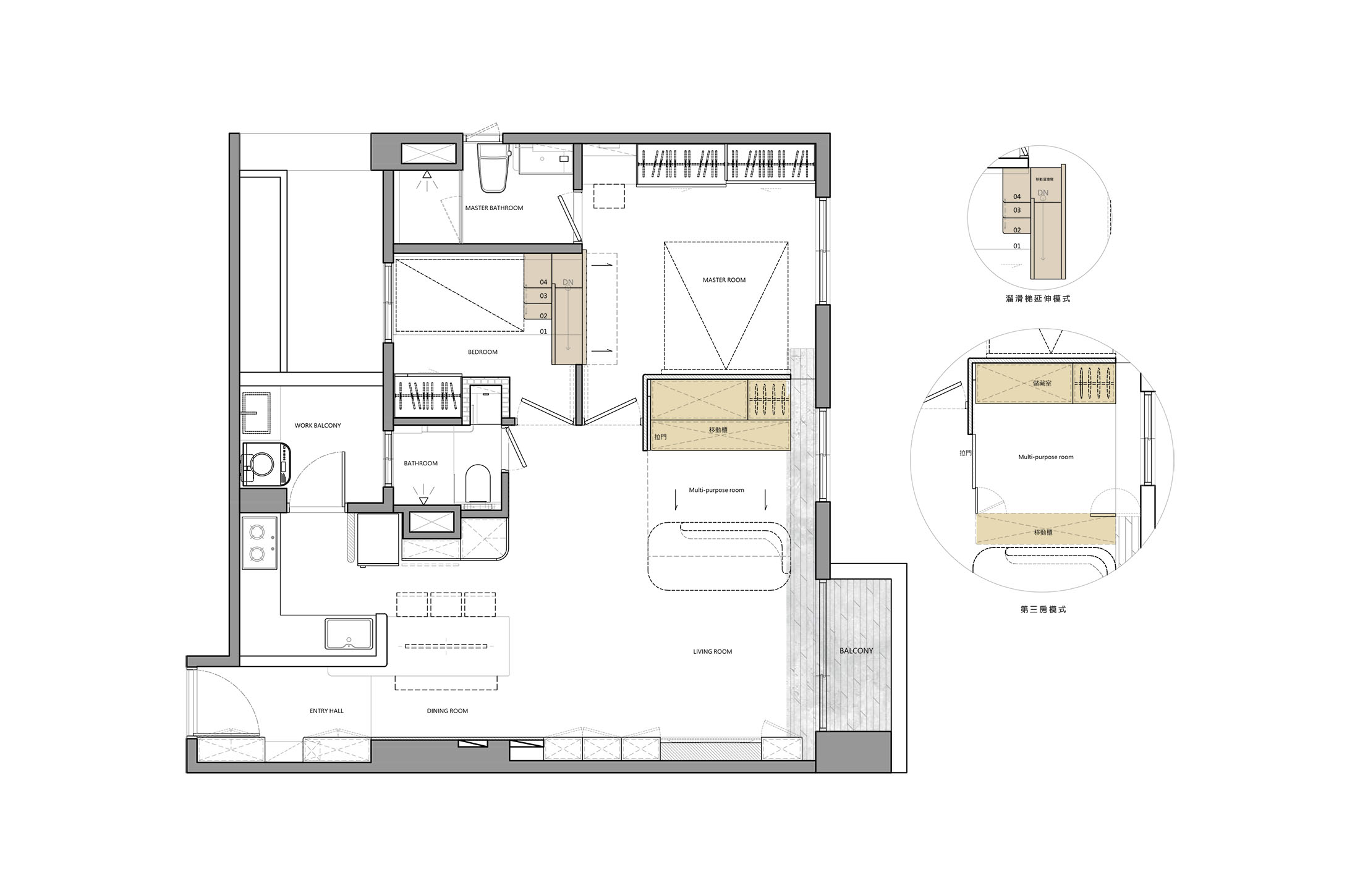
入口將原有廚房牆麵拆掉一半高度讓玄關感覺更開闊,坪數不大的空間就要盡量讓收納集中空間才不會顯小,電視牆我們做了一整麵收納也隱藏了大柱子與電箱,客浴與房間退縮牆麵後讓客廳形成完整的方形空間,另外在主臥與小孩房之間我們開了一個洞,放了一支可移動的溜滑梯,因為小孩年紀還小也希望空間不要被製式隔間切割,兩個房間形成一種可開可關的連結,加上我們在中間儲藏室的隔間做了移動隔間的裝置,讓這空間可以從一大房變成兩房再變成三房的多種生活型態。
– 平麵配置發想 –
公共空間的變化形態,藉由牆體退縮與縫隙讓光線與綠帶入空間。
兩種移動裝置的變化,結合拉門與折門形式,都必須算的精準才會夠密合。
隱藏內容
此處內容需要權限查看
版權聲明:本站所有文章除投稿授權發布外,其他文字內容均為原創,享有著作權保護,未經許可不得以任何形式進行轉載(包括且不限於:媒體、網站、公眾號等)。所有項目照片/設計圖形版權歸原作者所有。本站部分內容源自網絡公開資源或用戶分享,如若侵犯了原作者的合法權益,可聯係我們進行處理。













