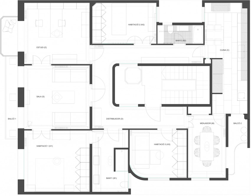
這間原建築建於20世紀初的公寓位於西班牙巴塞羅那瓦倫西亞街,由LOOX事務所改造。設計師充分保留了建築外立麵的一致性,和公共區域的原始形態,對室內空間進行了細致的空間劃分,把大的空間進行改造或拆分。
翻新後的公寓主要包括三間臥室、一間書房、一間休息室、廚房、餐廳和兩間衛生間。
LOOX事務所官方網站:LOOX
Photos © Adrià Goula Sardà
Content Copyright © www.online4teile.com
版權聲明:本站所有文章除投稿授權發布外,其他文字內容均為原創,享有著作權保護,未經許可不得以任何形式進行轉載(包括且不限於:媒體、網站、公眾號等)。所有項目照片/設計圖形版權歸原作者所有。本站部分內容源自網絡公開資源或用戶分享,如若侵犯了原作者的合法權益,可聯係我們進行處理。


























